Deutsches Architektenblatt Logodab-logo Deutsches Architektenblatt Logodab-logo-description
Zwei Personen in formeller Kleidung stehen nebeneinander vor einer modernen Gebäudefassade

Andrea Gebhard im Gespräch mit Uwe Schneidewind

Derzeit wird über Stadt, Infrastruktur und Bauen in den Begriffen „beschleunigen“, „vereinfachen“ und „skalieren“ gesprochen. In der planerischen und kommunalen Praxis zeigt sich jedoch ein anderes Bild.

Berufspolitik Bundesweit
21.01.2026

Aktuelle
Meldungen

Chance oder Risiko für die Architektur? Wie Wandel zu Obsoleszenz führen kann

Teil 1 von 3: Die Polykrise dominiert als Thema die Diskussionen – auch in der Stadt- und Regionalplanung. Doch das alte Gewissheiten verschwinden, um Neuem Platz zu machen, ist so alt wie die Menschheit selbst. Es lohnt ein konstruktiver Blick auf Transformation, abseits des grassierenden Pessimismus.

Baukultur Bundesweit
28.01.2026
Bauarbeiter in gelber Schutzkleidung arbeiten auf Gerüsten an einer Betonplatte mit herausragender Bewehrung; im Hintergrund ein gelber Turmkran und Baustellenstrukturen im warmen Gegenlicht.

Warum der ikonische Entwerfer ausgedient hat und was an seine Stelle tritt

Ich bin Architekt. Ich entwerfe und leite Projekte. Ich trage Verantwortung für Teams, Budgets und Entscheidungen. Dabei merke ich immer wieder, wie wenig das Bild, das wir von unserem Beruf im Kopf haben, noch zu dem passt, was wir im Alltag tatsächlich tun.

Nachwuchs Bundesweit
29.01.2026

Die obsolete Stadt – Wege in die Zirkularität

Das Forschungsmanifest zeigt auf, wie tiefgreifend die großen Megatrends die urbane Infrastruktur verändern und welche bislang ungenutzten räumlichen Potenziale daraus entstehen.

Meldungen Bundesweit
30.01.2026

Darf man Referenzen mitnehmen?

Die eigene Qualifikation und Erfahrung bei der Bewerbung für öffentliche Aufträge zu belegen, ist nicht immer leicht – vor allem, wenn man bisher angestellt war. Wann „Fremdreferenzen“ zulässig sind und was dabei zu beachten ist.

Recht Bundesweit
15.01.2026
Schwerpunkt im Januar
Verkehrsberuhigte Straße mit Fahrradfahrern und Begrünung sowie Sitzgelegenheiten.

Die Neubewertung von Infrastrukturen und öffentlichem Raum

Was die Mobilitätswende heute schon über morgen verrät.

Berufspolitik Bundesweit
22.12.2025
Luftaufnahme des Tempelhofer Feldes mit umliegender Stadt.

Der ehemalige Berliner Flughafen Tempelhof bleibt Experimentierfeld für alle

Das Tempelhofer Feld war – wieder einmal – Gegenstand eines Wettbewerbs. Aus 164 Vorschlägen kürte die Jury sechs Konzepte, die der Landschaft mehr Nuancen geben, aber kaum etwas abzwacken. Sie bleibt ein weites Feld inmitten der Stadt, eine Spielwiese für alle, auch für die Planenden.

Baukultur Bundesweit
13.01.2026
Begrünte Wohnstraße mit Bäumen, Wildpflanzen, parkenden Autos und Radfahrenden auf gepflasterter Fahrbahn.

Blau-grüne Infrastruktur: Eine Farbe für die Zukunft unserer Städte

Blau, grün und grau. Es ist die richtige Farbmischung, die über die Resilienz unserer dichter bebauten und von Hitzeperioden gestressten Städte heute entscheidet.

Nachhaltigkeit Bundesweit
22.12.2025
Bunt bemaltes Containergebäude mit großflächiger Street-Art und Passanten.

Infrastruktur: Kommunen fordern mehr Geld und weniger Bürokratie

Städte und Gemeinden kämpfen mit maroden Schulen, bröckelnden Brücken und leeren Kassen. Das Sondervermögen allein wird den kommunalen Instandhaltungsstau bei der Infrastruktur nicht auflösen können.

Berufspolitik Bundesweit
06.01.2026
Innenansicht eines Rechenzentrums

Wo das Internet wohnt

Eigentlich dachten wir, dass mit der Digitalisierung alles nur handlicher, platzsparender würde. Doch gerade die schnell wachsenden Cloud- und KI-Anwendungen sind auf leistungsfähige Rechenzentren angewiesen. Und die fressen richtig Fläche. Über den derzeit einzigen Bauboom im Lande.

Meldungen Bundesweit
22.12.2025
Große Straßenbrücke im Bauzustand über einen Fluss; ein Brückensegment ist abgesenkt, Baumaschinen arbeiten im Wasser und am Ufer, im Hintergrund sind historische Gebäude, Grünflächen und eine Stadtansicht zu sehen.

Infrastruktur: Das System, das alles zusammenhält.

Infrastrukturen gelten oft als Hintergrundrauschen des Alltags: Sie sind oft unsichtbar, werden als selbstverständlich hingenommen und sind erst im Störfall mit voller Wucht erfahrbar. Gleichzeitig prägen sie Städte und Landschaften über Generationen hinweg. 

Berufspolitik Bundesweit
22.12.2025
Multifunktionaler Innenraum: Holzpodeste, Pflanzen, Treppen und Menschen in Bewegung, kombiniert mit Spiel- und Arbeitszonen.

Dritte Orte als soziale Infrastruktur in Metropolen des 21. Jahrhunderts

Zwischen privatem Raum und klassischem Arbeitsplatz entstehen neue Orte des Alltags. Sie ermöglichen soziale Nähe, flexible Nutzung und erweitern das Spektrum dessen, wo und wie Stadtleben stattfindet.

Baukultur Bundesweit
22.12.2025
Außenansicht eines Schulgebäudes mit goldfarbener Rasterfassade auf freiem Gelände, Fernsehturm im Hintergrund.

Schule statt Leerstand: Impulse für den Schulbau

Mit „Schule statt Leerstand“ erprobt Nürnberg die Umnutzung eines Bürogebäudes zur Berufsschule. Schulbau Open Source dokumentiert den komplexen Planungsprozess und macht das Wissen für Kommunen und Planende frei zugänglich.

Baukultur Bundesweit
22.12.2025
Mann mit dunklem Hemd und beiger Hose steht vor einer Glasfront mit Blick auf Garten und Bäume.
Geschwungene Holzstruktur mit parallelen Linien, die eine organische, fließende Form bilden.
Freitreppe mit grasbedeckten Seitenflächen vor einem modernen, geschwungenen Gebäude mit weißer Fassade und dunklem Unterbau.
Blick über eine große, gepflasterte Fläche auf ein modernes Gebäude mit schrägen Stützen und Glasfassade, im Hintergrund Stadtgebäude und Bäume.

Neues Wissen,
smarte Projekte und
inspirierende Ideen

Entdecken Sie die Welt der Architektur – 
jetzt im exklusiven Newsletter!

Bitte gültige E-Mail-Adresse eingeben. Bestätigung der Datenschutzerklärung ist erforderlich.

Weitere Beiträge

Filter nach:

Archicad 28: Ganzheitlich planen mit Lebenszyklusanalyse

26.02.2025

Smino: Datenaustausch unabhängig vom BIM-Programm

10.01.2025

Forma: CO2-Analyse optimiert

10.01.2025

Vectorworks 2025: Neues BIM-Klassifikationssystem

10.01.2025

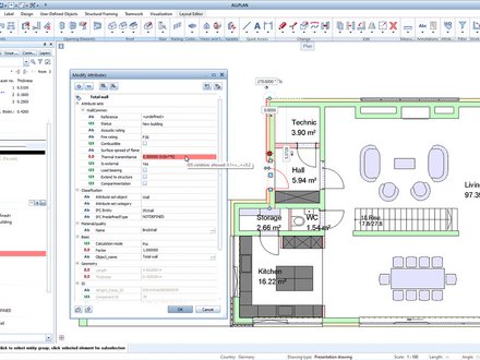
Allplan: Regelbasiertes Management von Attributen

10.01.2025

RIB iTWO: 6D-BIM für mehr Nachhaltigkeit

10.01.2025

Entdecken Sie unsere Wissenspakete

Alles rund um KI in der Architektur

DAB Wissenspaket Kompakt. Kuratiert. Kreativ. Deutsches Architektenblatt Logodab-logo

Alles rund um Gebäudetyp E

DAB Wissenspaket Kompakt. Kuratiert. Kreativ. Deutsches Architektenblatt Logodab-logo

Alles rund um Holzbau

DAB Wissenspaket Kompakt. Kuratiert. Kreativ. Deutsches Architektenblatt Logodab-logo

Alles rund um Weiterbauen

DAB Wissenspaket Kompakt. Kuratiert. Kreativ. Deutsches Architektenblatt Logodab-logo

Alles rund um Wohnungsbau

DAB Wissenspaket Kompakt. Kuratiert. Kreativ. Deutsches Architektenblatt Logodab-logo

Alles rund um Zirkuläres Bauen

DAB Wissenspaket Kompakt. Kuratiert. Kreativ. Deutsches Architektenblatt Logodab-logo
Person mit lockigem Haar hält ein großes Blatt mit technischen Zeichnungen oder Plänen vor sich.
Mann in blauem Hemd hält zwei Papprollen und steht in einem Büro mit Computer und Kleidung im Hintergrund.
Person mit weißem Schutzhelm und orangefarbener Warnweste hält ein Tablet in einer Baustellenumgebung mit Gerüst im Hintergrund.

Bauen Sie Ihre
Zukunft – jetzt
Stellen entdecken