Dieser Beitrag ist unter dem Titel „Schule machen“ im Deutschen Architektenblatt 12.2024 erschienen.
1. Bauumfang verkleinern
Sanieren oder gleich neu bauen, das ist die Frage für Gemeinden und Städte. So auch im rheinland-pfälzischen Essenheim. Die dortige Grundschule, gebaut 1983 und über die Jahre erweitert und ausgebessert, hatte undichte Dächer, eine schlechte Energiebilanz und Akustik.

Das Architektenteam von mamuth tüftelte für die sanierungsbedürftige Grundschule in Essenheim lange an niedrigen Kosten.
mamuth
Undichtes Dach, aber räumliche Qualitäten
Eine Sanierung schien kompliziert, einen Neubau aber kalkulierten Fachleute auf rund acht Millionen Euro – zu teuer für eine kleine Landgemeinde. Nach Starkregen stand das Wasser auf dem Dach, leckte ins Innere und forderte eine Entscheidung.
Architekt Timm Helbach, Geschäftsführer des Mainzer Architekturkollektivs mamuth und ehemaliger Schüler der Essenheimer Grundschule, war überzeugt, dass eine Sanierung machbar, günstiger und nachhaltiger wäre. Die räumlichen Qualitäten sprachen in seinen Augen für den Bestand: Die Essenheimer Klassen liegen in einzelnen Häusern und haben unterm Steildach eine enorme Raumhöhe.

Statt eines Neubaus der Grundschule in Essenheim gab es „nur“ neue Flurdächer aus vorgefertigten Holzelementen.
Sven Hasselbach Fotografie
Die Flurdächer waren das Problem
„Das sind große und helle Klassen, die im Neubau deutlich kleiner wären“, sagt Helbach und ergänzt: „Es waren nicht die Klassenhäuser, die die größten Probleme machten, sondern die gefangenen Flurdächer dazwischen, deren Dachentwässerung und die Anschlussstellen, die schlechte Akustik und das fehlende Tageslicht in den Fluren darunter.“
Statt eines Neubaus plante das Team am Ende für 1.962 Euro brutto pro Quadratmeter Bruttogrundfläche die Erneuerung der Flurüberdachung mit Holzmodulen, einer Begrünung darüber und Akustikelementen darunter, mit Oberlichtern und Lichtkuppeln, sowie die Sanierung der Fluroberflächen und die Aufdämmung der bestehenden Steildächer von außen.
Bestandswände und Fenster blieben unberührt. „Spätestens bei der Kostenkalkulation von 1,6 Millionen Euro hatten wir die Aufmerksamkeit des Gemeinderates“, erinnert sich Helbach.

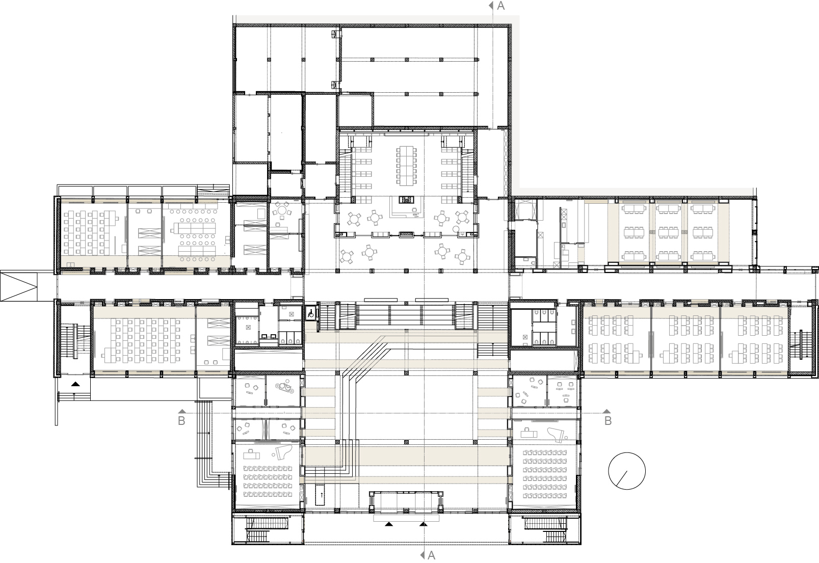
Der Grundriss der Grundschule in Essenheim erinnert an ein Baukasten-System. Die neu überdachten Zwischenbereiche halten das Gefüge zusammen.
mamuth
2. Anforderungen und Wünsche früh klären
„Es wird viel zu viel abgerissen“, findet auch der Architekt Peter Brückner vom Architekturbüro Brückner & Brückner. Sein Team sanierte das Gymnasium in Neustadt an der Waldnaab, ein Sichtbetonbau von 1977 mit unzureichend gedämmter, undichter Hülle und dunklen, abgenutzten und verbauten Innenräumen.
Viele Gründe sprachen für einen Abriss. Peter Brückners Ehrgeiz jedoch war geweckt: „Wir wollten beweisen, dass eine Sanierung auch bei einem ungeliebten Bau der 1970er geht und nachhaltig wie wirtschaftlich ist.“

Im Betonkoloss des Neustädter Gymnasiums von 1977 steckt auch heute noch viel nutzbare Fläche.
mju-fotografie, Marie Luisa Jünger, Hümpfershausen
Baustellenbegehungen auch für Kinder
Um zu überzeugen, brauchte es gute Argumente und „positiv besetzte Beispiele, die sind unersetzbar“. Daher ging es für die Planenden, das Kreisamt und die Schulgemeinde zunächst per Bus zu vergleichbaren Projekten.
Dann ergänzte Peter Brückners Team den Planungs- und Bauprozess mit Workshops und Baustellenbegehungen, auch für die Kinder. Außerdem kamen die Fachplanenden früh dazu, denn Brückner weiß: „Ein Brandschutzkonzept kann alles zunichtemachen.“
Von Anfang an lagen alle Anforderungen und Wünsche auf dem Tisch. Diese offene Kommunikation war entscheidend, wie er sagt: „Wir haben früh gemeinsam abgewägt, was wirklich wichtig ist, und dann den Planungs- und Bauprozess so geordnet wie intensiv durchgeführt.“

Aus der niedrigen Aula wurde durch Entfernen der Geschossdecke eine helle Eingangshalle mit Galerie.
mju-fotografie, Marie Luisa Jünger, Hümpfershausen
Neue Eingangshalle und neue Bibliothek
Das Team befreite die Aula von ihrer niedrigen Geschossdecke und schuf eine zweigeschossige, helle Eingangshalle mit Galerie. Es optimierte die Grundrisse, ergänzte einen neuen Eingang und überdachte den alten Innenhof mit einem Glasdach, unter dem jetzt die Bibliothek Platz findet.

Die neue Eingangshalle dominiert den Grundriss des sanierten Neustädter Gymnasiums.
Brückner & Brückner Architekten
Materialien aufgearbeitet, Dächer energetisch saniert
Die niedrigen Bruttobaukosten von 2.074 Euro pro Quadratmeter Bruttogrundfläche sieht man der Schule nicht an – auch weil die Architekten nutzten, was an Qualität da war: Natursteinböden wurden geschliffen, Klinkerwände geschlämmt, vorhandene Wanddämmungen partiell aufgedämmt. So blieb Budget für die energetische Sanierung der Dächer, für neue Fenster und Einbauten in hochwertigem Holz.

In einige Rillen der Fassadenplatten wurden spiegelnde Metallleisten eingelegt.
mju-fotografie, Marie Luisa Jünger, Hümpfershausen
Sichtbetonfassade trifft auf Spiegelglas
Die Sichtbetonfassade sollte bleiben, trotz der Vorbehalte, berichtet Peter Brückner: „Wir haben deshalb die Schwere des Gebäudes durch spiegelnde Elemente aufgelöst und nicht eine, sondern 365 Fassaden im Wechsel der Tages- und Jahreszeiten geschaffen.“ So treten die bisher versteckten Qualitäten des Bestands hervor: seine Waldlage und die weiten Innenräume.
3. Bestand kennen und Maßnahmen priorisieren
Die Qualitäten von Raum und Bausubstanz zu erkennen, das war bei der Sanierung eines anderen Gymnasiums, nämlich des Hölderlin-Gymnasiums in Heidelberg, gar nicht so einfach, wie das Team von ap88 Architekten merkte.
Das Gymnasium zieht sich über mehrere Gebäude im engen Blockrand, gebaut zwischen 1877 und 1978. „Die gewünschte Generalsanierung“, sagt die projektleitende Architektin Anna Krüger, „war nur mit einer gründlichen Bestandsaufnahme überhaupt definierbar.“

Bei der Sanierung des Hölderlin-Gymnasiums in Heidelberg mussten die Architekten Gebäude aus sehr unterschiedlichen Bauzeiten mit aktuellen Nutzungsansprüchen unter einen Hut bekommen. Der neue Theatersaal im Hof fügt eine neue Zeitschicht hinzu.
Thilo Ross
Größerer Schulhof und neue Fahrradgarage
Sechs Monate Zeit nahm man sich für die Begutachtung und Analyse der Bausubstanz und die Ermittlung der Maßnahmen und Kosten. Dazu kamen Gesprächsrunden mit allen Beteiligten, um vorweg alle Anforderungen zu klären. „Kostengünstig bauen braucht einen soliden Anforderungskatalog“, so Anna Krüger. Wer hier nicht sorgfältig und sachverständig genug arbeite, könne teure Nachträge kaum vermeiden.
So gelang es dem Team, statt einer geforderten Generalsanierung, die sich so pauschal wie teuer über die Gebäude gezogen hätte, die Maßnahmen zu priorisieren: Es verlegte die Tiefgaragenzufahrt vom Hof in den Blockrand und schuf so mehr Fläche und Aufenthaltsqualität im Pausenhof und Platz für eine Fahrradgarage.

Betonte Sockel und Böden sowie geschossweise Farbakzente schaffen im Hölderlin-Gymnasium Einheit und Orientierung.
Thilo Ross
Einfache Gebäudetechnik
Im Innenhof bauten ap88 Architekten den sehr gewünschten Theaterraum und vergrößerten zugleich über eine Dachterrasse und eine Freitreppe die Hoffläche. Dabei setzten sie auf hochwertige Bühnentechnik, bei der Gebäudetechnik aber kostensparend auf Lowtech. Hier wurden Gebäudeteile kernsaniert oder statisch ertüchtigt, dort nur oberflächlich aufgearbeitet und additiv mit Akustikdecken und Medientechnik ausgestattet.
Keine energetische Sanierung an der Fassade
Die historische Fassade wurde farblich, aber nicht energetisch erneuert. So erreichte man am Ende Bruttobaukosten von 1.641 Euro pro Quadratmeter Bruttogrundfläche. Anna Krüger sagt: „Wir haben so um die Kosten gerungen und nach vielen Diskussionen das meiste aus dem Budget herausgeholt.“

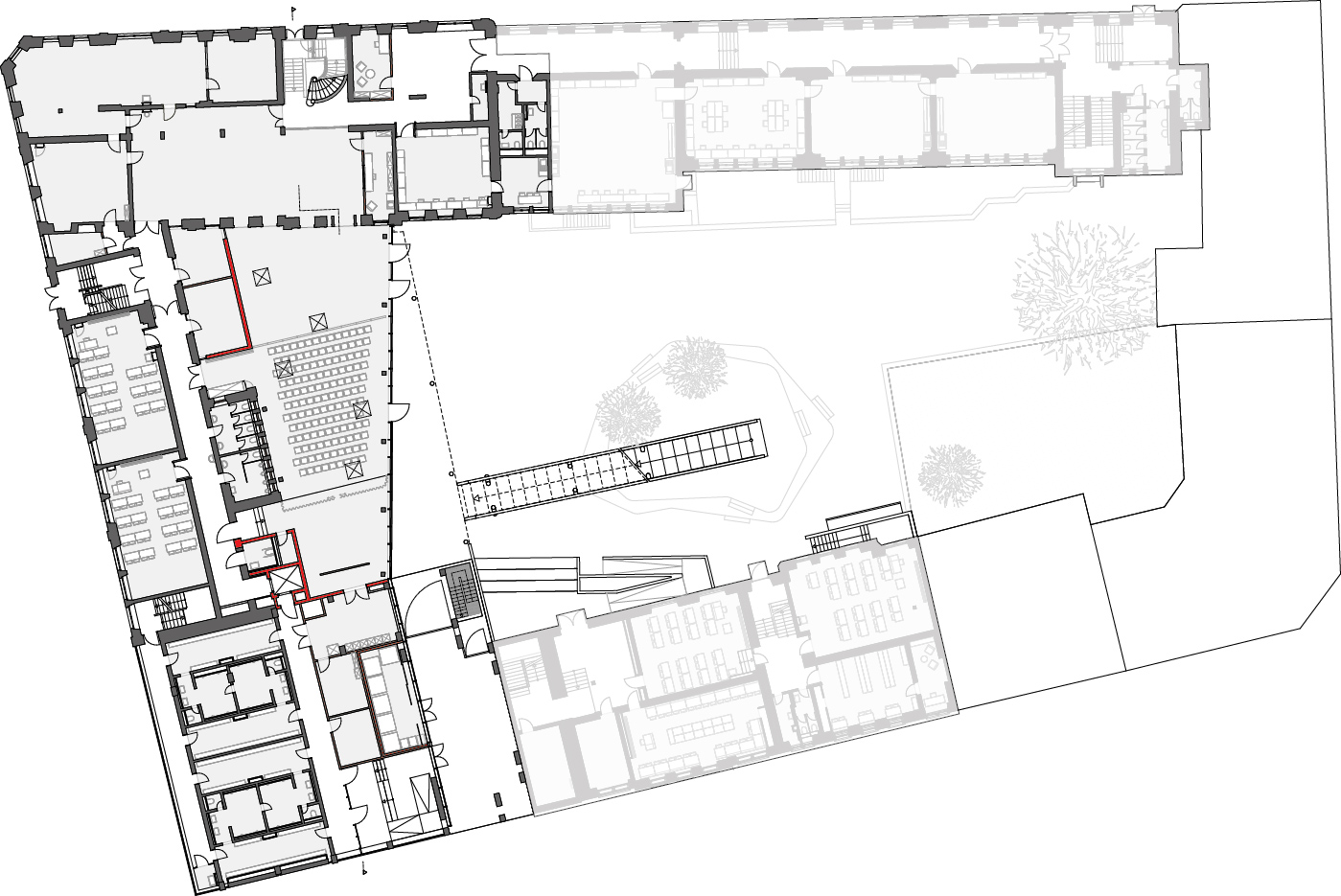
Im EG-Grundriss des Heidelberger Hölderlin-Gymnasiums ist der in den Hof eingeschobene Theatersaal gut zu erkennen.
ap88 Architekten
4. Schnell bauen, denn Zeit ist ein Kostentreiber
Trotzdem haben sich alle Projekte am Ende verteuert. Unvermeidbar, denn äußere Faktoren sind schwer bezifferbar. Zeit ist ein Kostentreiber, denn die Baupreise steigen rasant und unkalkulierbar.
Eine Einpreisung der Verteuerung vorab ist politisch meist nicht gewünscht. Patrick Lubs, Geschäftsführer bei ap88 Architekten, bemängelt: „Im Vergabeverfahren gibt es beim Preis eine gewisse Schallmauer, darüber werden Aufträge nicht vergeben.“
Das Budget reicht fast nie
Er spricht vom „Fluch der ersten Zahl“, an der Büros und Projekte gemessen würden und die sich an fertiggestellten Projekten orientiere. Sie berücksichtige nicht den jeweils aktuellen oder gar zukünftigen Baupreisindex.
Absurd findet das auch mamuth-Architekt Timm Helbach: „Jeder weiß am Anfang, das festgelegte Budget wird nicht reichen.“ Er setzt deshalb auf Geschwindigkeit: „Eine relativ kurze Bauzeit verhindert, dass Projekte sich stark verteuern können.“
Sanierung bei laufendem Schulbetrieb statt Geld für Interimsgebäude
In Essenheim entschied man sich deshalb für die serielle Vorfertigung der Holzdachkonstruktion und für eine Baustelle im Schulbetrieb, was teure Interimsgebäude ersparte.
Auch in Neustadt verzichtete man auf Containerklassen, wie Peter Brückner erklärt: „Das Geld für die eingesparten Interimsgebäude konnte in die Sanierung fließen und kommt so der Schulfamilie auch in den nächsten 50 Jahren zugute.“
Allerdings beeinträchtigt die Sanierung im laufenden Betrieb sowohl den Unterricht als auch die Baustelle. „Es erfordert viel Kommunikation und Rücksichtnahme“, sagt Peter Brückner. Reibungspunkte mit dem Schulbetrieb seien pädagogisch durchaus wertvoll, findet Timm Helbach: „Die Kinder merken: Wenn wir aus unserer Komfortzone kommen, gelangen wir zu tollen Ergebnissen. So funktioniert Nachhaltigkeit.“

Im Gymnasium Neustad Waldnaab holten die Planer Licht ins Gebäude, ließen den Naturstein aufarbeiten und ergänzten hochwertige Holzeinbauten in den breiten Fluren und Räumen.
mju-fotografie, Marie Luisa Jünger, Hümpfershausen
Am Stück statt etappenweise gebaut
Auch in Heidelberg war der Baubetrieb ein Störfaktor im Schulablauf und bedeutete viel Koordinationsaufwand. Am Ende sparte es viel Zeit und Geld, wie Patrick Lubs und Anna Krüger sagen: „Wir haben verschiedene Szenarien für die Sanierung kalkuliert. Häppchenweise hätte es voraussichtlich acht Jahre gedauert.“
So aber war man 2022 nach drei Jahren und vor der letzten steilen Baupreisverteuerung fertig.
5. Standards und Verfahren verändern
Aber nicht nur Bausubstanz, Wünsche und Wirtschaftslage, sondern auch Gesetze und Richtlinien verteuern Sanierungen. Anna Krüger kritisiert: „Es gibt so viele Anforderungen von sehr unterschiedlichen Seiten bis hin zur Unfallversicherung. Aber die vielen Normen widersprechen sich oft“ (ein Problem, das die BAK mit dem sogenannten Gebäudetyp E angegangen ist).
Für Schulgebäude müssten die Vorgaben weniger und sinnvoller werden, da sind sich alle Büros einig. Zu den technischen Anforderungen sagt Peter Brückner: „Wir sollten in den Standards wieder auf ein gesundes Maß hinuntergehen. Die hohen Anforderungen kosten viel Geld und rentieren sich nicht.“

Im Hölderlin-Gymnasium waren die historischen Treppengeländer für heutige Normen zu niedrig.
Thilo Ross
Treppengeländer zu niedrig
Wer Geld sparen will, muss im Bestand Standards und Vorgaben abwägen. So entschieden sich zum Beispiel beide Gymnasien für eine Barrierefreiheit nur in den zentralen Gebäudebereichen.
Das birgt Konfliktpotenzial, oft geht es um die äußersten Zentimeter des Machbaren. Das gilt im übertragenen Sinn, aber auch konkret bei Geländern, die im historischen Bestand, wie in Heidelberg, zwar erhaltenswert, aber nach heutigen Anforderungen wenige Zentimeter zu niedrig waren. Hier sichern nun zwei Geländer die Treppe, denn bei der Sicherheit möchte keiner sparen.
Gewährleistung kontra Wirtschaftlichkeit und Nachhaltigkeit
Haftungsfragen und Gewährleistungsfragen ringen mit den Ansprüchen an Nachhaltigkeit und Wirtschaftlichkeit. Das erlebte auch Timm Helbach in Essenheim: Er hatte die Idee, bei den Klassenhäusern mit den alten Dachziegeln der jeweils abgedeckten Dachseite die gegenüberliegende, schon fertig gedämmte Seite zu decken.
Das sparte Arbeit, Zeit, Lagerfläche und Material. Doch welcher Dachdecker übernähme dafür die Gewährleistung? Die Paketausschreibung von Dachdecker- und Zimmermannsarbeiten half: Keine Verzögerungen beim Warten auf die verschiedenen Gewerke, kein gegenseitiges Zuschieben von Verantwortlichkeiten, auch das sparte Zeit, Geld und Nerven.
Alle drei Büros kritisieren die deutsche Ausschreibungspraxis, die zu oft den günstigsten, nicht den qualifiziertesten Anbieter bevorzuge, was im Bauablauf viel Geld kosten könne.

Am Gymnasium in Neustadt Waldnaab erstrahlt der alte Sichtbeton dank spiegelnder Glasflächen in neuem Glanz.
mju-fotografie, Marie Luisa Jünger, Hümpfershausen
Bauen im Bestand immer Mehrarbeit
Wenn unerfahrene Unternehmen nicht die Qualität liefern, wird die Nachbesserung teuer. Für manche Firmen sei es eine Geschäftsstrategie, berichtet Anna Krüger: „Was anbietende Firmen bei der Vergabe am Preis drücken, holen sie sich oft über Nachträge wieder herein.“ Das produziert Frust und die Schlagzeilen von Mängeln und Kostenexplosion, die keiner möchte.
„Bauen im Bestand ist immer Mehrarbeit“, sagt Timm Helbach. Die und das hohe Risiko wird den Büros selten angemessen vergütet. So sind es auch Architekturbüros, die zu oft den weniger nachhaltigen Abriss empfehlen.
Schulen pragmatischer sanieren
Damit sich Gemeinden häufiger für die Sanierung öffentlicher Gebäude entscheiden, brauchen sie mehr Kostensicherheit und ermutigende Beispiele. Dafür müssen sich alle Beteiligten bewegen, die Auftraggebenden, die Schulgemeinden, die Planungsbüros und die Gesetzgebenden. Peter Brückner jedenfalls ist stolz: „Wir haben bewiesen, dass es möglich ist, im Schulbestand sehr gut zu bauen.“