Deutsches Architektenblatt Logodab-logo
Finden Sie genau die Themen,
die Sie interessieren

Die beliebtesten Themen:

Deutsches Architektenblatt Logodab-logo Deutsches Architektenblatt Logodab-logo-description

Vom Getreidesilo zum Hotel

In Bremen hat das Wiener Büro Delugan Meissl Associates ein ehemaliges Industriesilo revitalisiert und dabei konsequent auf den Bestand gesetzt.

DAB Redaktion
26.02.2026 6min
Ruhiger Fluss im weichen Morgenlicht; am rechten Ufer Industrie- und Speicherbauten mit hohem Silo und „Kellogg’s“-Schriftzug. Ein kleines weißes Schiff fährt vor der Kaimauer, links liegt ein Hausboot; die Gebäude spiegeln sich im Wasser.
Industriekultur im Wandel © Piet Niemann

Neben tief gründenden Baustellen ragen große Zylinder an der Kaimauer der Weser in die Höhe. In den massiven, gewölbten Beton sind horizontale Öffnungen gefräst. Oberhalb der runden Siloröhren leuchtet der markante Schriftzug in knalligem Rot in den Stadtraum: Kelloggs. Wo einst 5.000 t Weizen, Mais und Hafer lagerten, übernachten heute Gäste aus aller Welt. Die Revitalisierung des ehemaligen Getreidesilos zeigt, wie man kreislaufwirtschaftliche Prinzipien auf komplexe Industriestrukturen anwenden kann. Nicht umsonst erhielten Delugan Meissl Associates (DMAA) dafür den Sonderpreis des Deutsches Städtebaupreises 2025. 

Vom Industriebau zum Hotelprojekt 

Bevor die Entscheidung für ein Hotel fiel, standen alternative Nutzungskonzepte zur Diskussion – darunter eine Kletterhalle, ein Tiefseetauchbecken oder eine Ausbildungsanlage für Offshore-Mitarbeiter. Die Idee, das Silo in ein Hotel umzuwandeln, entstand bei einem abendlichen Brainstorming. Die runde Zimmerstruktur ist ungewöhnlich für ein Hotel, machte die Aufgabe für DMAA jedoch besonders reizvoll. Sie entschieden, die Geschichte des Ortes zu bewahren und den industriellen Charakter des Silos zu erhalten. 

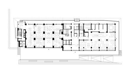
Grundriss Erdgeschoss 1:200, langer Riegel; mittig Erschließungskern mit Treppen/Aufzügen, links kleinere Räume, rechts offene Bereiche mit Tischen und Theke; Beschriftung „Kellogg’s Bremen – destilat“.
Grundriss Erdgeschoss © DMAA
 Standardgrundriss 1:200; links Reihen runder Zimmermodule (Silo‑Formen) mit Flur, mittig Kern mit Treppe/Aufzug, rechts offene Büro- und Besprechungszonen.
Grundriss Regelgeschoss © DMAA
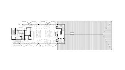
Dachgeschoss/Eventfläche 1:200; große offene Saalfläche in runden Segmenten mit Möblierung, links Nebenräume und Treppen, rechts anschließende große Dachfläche/Terrasse schraffiert.
Grundriss Dachgeschoss © DMAA
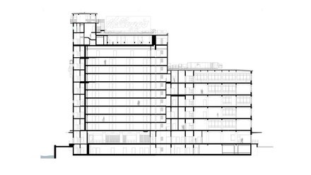
Zwei vertikale Schnitte SW/NE 1:200; Turm mit vielen Geschossen, Treppen- und Aufzugskern, Dachaufbau, Untergeschoss – Figuren zur Maßstabsangabe.
Schnitt Ost-West © DMAA
Längsschnitt Südost 1:200; links hoher Turm mit Dachaufbau und „Kellogg’s“-Schriftzug, rechts niedrigerer Flügel mit regelmäßigen Geschossdecken und Erschließungskernen.
Schnitt Nord-Süd © DMAA

Bautechnik und Umsetzung 

DMAA zogen 14 Geschossdecken in das 40 m hohe Gebäude ein. Die Arbeiten an den Zwischendecken mussten aufgrund der baulichen Gegebenheiten manuell ausgeführt werden, was einen erheblichen Zeit- und Personalaufwand erforderte. Auch die Betonschneidearbeiten stellten die Ausführenden vor besondere Herausforderungen. Sie frästen die acht Betonröhren im Inneren auf, um Zugänge zu den 117 kreis- und halbkreisrunden Zimmern zu schaffen. Um den Blick auf die Bremer Innenstadt und die Weser freizugeben, schnitten DMAA horizontale Öffnungen in die 16 cm dicken Betonringe. 3.500 cbm Beton wurden in Schubkarren abtransportiert. Die Spuren dieser aufwendigen Eingriffe sind noch heute in den Hotelzimmern ablesbar. In der Lobby sind die einstigen Trichterauslässe noch sichtbar – ein bewusstes Zitat der industriellen Vergangenheit.

Fabrikhalle mit rausgebrochenen Fenstern und Schutt auf dem Boden. Im Hintergrund ein weißer Turm mit einem Kellogs Schild
Abriss des früheren Reislagers. Im Hintergrund steht das ehemalige Silo. © Andreas Müller Fotografie
Werksgelände mit hohen weißen Silotürmen mit rotem „Kellogg’s“-Schriftzug; in der Mitte Haufen aus verbogenem Metall und Bauschutt, rechts gelbe Dockpuffer, links ein Bürotrakt und seitlich ein erhöhter Laufsteg.
Abbrucharbeiten auf dem Gelände des Kellogg-Pier. © Andreas Müller Fotografie
Braunes Gebäude mit vier Säulen links und einem grünen Bagger im Vordergrund
Das an das Silo angrenzende Vitaminlager wurde auch komplett revitalisiert. © Andreas Müller Fotografie
Baustelle in einem Betonschacht: Ein Arbeiter mit rotem Helm blickt auf eine dunkle Öffnung, in der bei Schneid- oder Schweißarbeiten helle Funken sprühen; ringsum Bewehrungsstäbe und Gerüstteile.
Neue Öffnungen werden im Silo geschaffen. © Andreas Müller Fotografie
Langer, dunkler Betongang mit hintereinanderliegenden rechteckigen Durchgängen; staubiger Boden, Kabel rechts entlang und Leitung von der Decke; am Ende ein warm beleuchteter Raum mit rotem Element an der Wand.
Blick in den Flur zu den Hotelzimmern. © Andreas Müller Fotografie
Rohbau-Innenraum mit rund ausgeschnittener Betonöffnung; dahinter weißer Trennwandflur und ein Raum mit gebogener Außenwand und Fenster; freiliegende Kabel an Decke und Wänden, unfertiger Boden.
Blick in ein Hotelzimmer, Rohbau. © Andreas Müller Fotografie
Rundes Gebäude in Grau mit zwei Reihen an Fenstern in denen Spiegelungen zu erkennen sind
Mock-up der neuen Fensterelemente für das Silo. © Andreas Müller Fotografie
 Leerer Industrie-Innenraum im Umbau: Reihen grauer Betonstützen, rot‑weißes Absperrband sperrt den Mittelgang, hinten Bauschutt; vorn lehnt ein Bauplan an einer Säule.
Die Trichterauslässe blieben im Erdgeschoss. © Andreas Müller Fotografie
Raum mit Sofa in der Mitte. Es hängen bunte Lampen von der Decke ein Mann sitzt auf dem Sofa
Heute sind die Trichterauslässe in das Design des Foyers mit integriert. © Piet Niemann
Rohbau-Etage mit gelben, schrägen Stahlstützen entlang einer verglasten Fassade; nasser Betonboden, gestapelte Metallteile und Paletten mit verpackten Bauteilen.
Vorher: Sanierung des Dachgeschosses. © Andreas Müller Fotografie
Raum mit einer Bar und weißen Balken. Es hängen bunte Blumen von der Decke
Nachher: Im Dachgeschoss bietet nun ein Restaurant mit Bar einen Ausblick zur Bremer Innenstadt. © Piet Niemann

Eine Eislaufbahn auf dem Eisspeicher 

Die kreislaufwirtschaftliche Haltung beschränkt sich nicht nur auf das Gebäude. Das Energiekonzept für das neue Stadtentwicklungsviertel der Überseeinsel mit dem Kellog-Pier als zentralem Quartier setzt auf die Weser als zentrale Energiequelle. Ein Nahwärme- und Nahkältenetz, gespeist durch eine Flusswasser-Wärmepumpe, versorgt die gesamte Insel. Rund 70 % der Heizenergie werden dabei über einen Wärmeübertrager direkt aus dem Fluss gewonnen. Eine Wärmepumpe sowie Strom aus Wind- und Solarenergie ergänzen die Versorgung für Heizung und Kühlung. Ein Eisspeicher übernimmt in den Wintermonaten die Kühlung der Freiflächen im Norden des Hotels und ermöglicht den Betrieb einer Eislaufbahn. 

Erweiterungsbauten und Quartiersentwicklung 

Ergänzend errichteten DMAA auf dem Gelände des Kellogg-Pier einen Neubau auf dem Reislager mit Gastronomie, Büros sowie einer Brauerei mit eigenem Hopfenanbau in der benachbarten Gemüsewerft. Auch das sogenannte Vitaminlager, ein Anbau des Silos, haben DMAA revitalisiert. Auf fünf Etagen beherbergt es heute Büros, Konferenzräume sowie ein Restaurant mit Café, das Hotelgästen offensteht. 
Das Kellogg-Areal ist eingebettet in ein größeres Stadtentwicklungsprojekt: die Überseestadt, die nur wenige Kilometer von der Bremer Innenstadt entfernt das ehemalige Hafenareal neu belebt. Die Denkmalstadt GmbH betreut die 41 ha große Fläche der Überseeinsel und entwickelt sie zu einem gemischt genutzten Quartier. Neben dem Kellogg-Pier wird konsequent mit dem Bestand gearbeitet: Das ehemalige Verwaltungsgebäude von Kellogg’s wurde zur Schule umgewandelt, ein altes Industriegebäude dient 150 Kunstschaffenden als Atelier- und Werkstattfläche. Eine ehemalige Werfthalle wird zum Klima-Campus umgebaut, die Flakes-Fabrik sowie das einstige Maschinen- und Kesselhaus zu Büroflächen und Wohnräumen. 

Vogelperspektive eines 3D‑Stadtmodells an einem breiten Fluss: langes Uferquartier auf schmaler Halbinsel mit Blockbebauung, Baumreihen, Parks und Promenade; weiße Gebäudemodelle, kleine Boote im Wasser.
Westlich der Innenstadt entsteht mit der Überseeinsel ein neues Quartier in Bremen. © SMAQ Architektur und Stadt
Drei Türme an einem Fluss. Die Gebäude spiegeln sich im Wasser und der Himmel ist rosa und orange
Nach über 50 Jahren stellte Kellogg’s 2018 die Produktion ein. © Piet Niemann
Innenansicht eines Hotelzimmers mit einem Bett und einem Schreibtisch auf der Rückseite des Bettes
Blick in ein Hotelzimmer. Die Fräsarbeiten in die 16 cm dicken Betonröhren wurden sichtbar gelassen. © Piet Niemann
Fassaden-Nahaufnahme: links ein Backstein‑Bürohaus mit Rasterfenstern, rechts mehrere zylindrische Silotürme mit umlaufenden Fensterbändern; im Hintergrund ein Kranarm vor hellem Himmel.
Die Rundung ist das entwurfsprägende Element bei diesem Projekt. © Piet Niemann

Ein Modell für die Zukunft 

Das Bremer Kellogg-Silo zeigt exemplarisch, was kreislaufwirtschaftliches Denken im Städtebau leisten kann: Aus industriellem Erbe wird lebendige Gegenwart – und ein Bauwerk, das nicht für die Ewigkeit gedacht war, gewinnt eine neue, zukunftsfähige Identität.

Revitalisierung eines ehemaligen Getreidesilos in ein Hotel

Ort: Überseeinsel, Bremen 

Bauherr: denkmalstadt GmbH (bis 2025 Überseeinsel GmbH) 

Architektur: Delugan Meissl Associated Architects, Wien 

Lichtplanung: Die Lichtplaner, Limburg-Staffel 

Tragwerksplanung: Wittler Ingenieure, Bremen 

Fertigstellung: 2024 

Baubeginn: 2020

Planungsbeginn: 2018
 

Weitere Informationen zum Projekt gibt es bei DMAA.

DAB Redaktion

Berlin
Person mit lockigem Haar hält ein großes Blatt mit technischen Zeichnungen oder Plänen vor sich.
Mann in blauem Hemd hält zwei Papprollen und steht in einem Büro mit Computer und Kleidung im Hintergrund.
Person mit weißem Schutzhelm und orangefarbener Warnweste hält ein Tablet in einer Baustellenumgebung mit Gerüst im Hintergrund.

Bauen Sie Ihre
Zukunft – jetzt
Stellen entdecken

Das könnte Sie auch interessieren

Luftaufnahme eines ehemaligen Industrieareals mit langem Backsteingebäude und angrenzenden Straßen.

Prinzipiell interdisziplinär: Axel-Bundsen-Studienpreis 2025 verliehen

In gemischten Teams entwickelten Studierende aus Schleswig-Holstein Konzepte für die Markedshallen Nykøbing auf der dänischen Insel Falster. Sechs von ihnen erhielten einen Preis.

Nachwuchs Schleswig-Holstein
23.01.2026
Ein kompakter, monolithisch wirkender Neubau mit ruhiger Fassadengestaltung steht in einem begrünten Hinterhof zwischen alten Mauern, die reduzierte Architektur tritt bewusst zurück und ordnet sich dem Ort unter, wodurch das Bild Nachverdichtung im Bestand zeigt und für respektvollen Umgang mit gewachsenen Strukturen und neue Wohnformen im innerstädtischen Kontext steht.

Vorrang für den Bestand: Wohnungsbau, Klimaziele und Verantwortung

Wie lassen sich Bestandserhalt, Aufstockung und Klimaziele verbinden? Der Vorstand der Architektenkammer Nordrhein-Westfalen diskutierte politische Initiativen, EU-Vorgaben und klare Leitplanken für nachhaltiges Bauen.

Meldungen Nordrhein-Westfalen
26.01.2026

Weiterbauen als Kirchen-Botschaft

Das IBA’27-Projekt Evangelisches Gemeindehaus Stuttgart-Feuerbach zeigt, wie klimagerecht und kreislauffähig Bauen im Bestand geht – Pilotprojekt mit BSSR-Förderung.

Projekte Baden-Württemberg
25.02.2026
Mann mit dunklem Hemd und beiger Hose steht vor einer Glasfront mit Blick auf Garten und Bäume.
Geschwungene Holzstruktur mit parallelen Linien, die eine organische, fließende Form bilden.
Freitreppe mit grasbedeckten Seitenflächen vor einem modernen, geschwungenen Gebäude mit weißer Fassade und dunklem Unterbau.
Blick über eine große, gepflasterte Fläche auf ein modernes Gebäude mit schrägen Stützen und Glasfassade, im Hintergrund Stadtgebäude und Bäume.

Neues Wissen,
smarte Projekte und
inspirierende Ideen

Entdecken Sie die Welt der Architektur – 
jetzt im exklusiven Newsletter!

Bitte gültige E-Mail-Adresse eingeben. Bestätigung der Datenschutzerklärung ist erforderlich.