
Zwei Holzhäuser erweitern das Kinder- und Jugenddorf Klinge in Seckach im Odenwald. Hier leben drei Wohngruppen und deren Hausleitungen.
Brigida González
Dieser Beitrag ist unter dem Titel „Schutzräume“ im Deutschen Architektenblatt 01-02.2025 erschienen.
Klar, ein Haus ist ein physischer Schutz. Doch inwieweit es auch psychisch und emotional Schutz bietet, ist oft abhängig von der Empathie der Planenden; ein Grundlagenfach ist die Architekturpsychologie bis heute nicht.
Schutzräume für Körper und Geist
Dabei braucht es dringend mehr und besser gestaltete Schutzräume für die vielen Menschen in prägenden oder prekären Lebensphasen, für Menschen mit körperlichen, kognitiven oder emotional-sozialen Beeinträchtigungen oder für Menschen, deren Psyche nach Heilung und Halt verlangt. Sie alle benötigen einen schützenden Raum nicht nur für den Körper, sondern auch für Geist und Seele, und haben dabei sehr unterschiedliche Bedürfnisse.
Intensive Gespräche mit den Auftraggebenden, den betreuenden Personen und mit den Nutzenden zeigen den Planenden: Schutz ist nicht gleich Schutz und schützende Räume können sehr unterschiedlich aussehen.
Kinderdorf in Seckach: Ecker Architekten
Kinder sind per se schutzbedürftig und finden diesen meist in der Familie. Daran knüpft das Kinder- und Jugenddorf Klinge in Seckach im Odenwald an. Wenn Eltern ihren Kindern kein geschütztes Zuhause bieten können, temporär wegen einer Krankheit oder länger wegen einer komplizierten Lebenssituation, dann finden ihre Kinder im Kinder- und Jugenddorf körperlichen Schutz und mentalen Halt.
Im Kinderdorf Seckach sind die großen Walmdächer auch sinnbildlich ein Schutzschirm.
Brigida González
Von Beginn an kein Kinderheim
Die Häuser des Dorfes wurden in den Nachkriegsjahren für verwaiste, geflohene oder heimatvertriebene Kinder gebaut, als Gegenstück zu den damals üblichen Kinderheimen. Denn die waren, bedingt durch die hohe Zahl der Geflüchteten, oft überfüllt, boten ein Obdach, aber selten mehr.
In Seckach dagegen leben die Kinder in familienähnlichen und altersgemischten Gruppen gemeinsam mit festen Bezugspersonen, den Hausleitungen und deren Familien, sowie später mit zusätzlicher Unterstützung von pädagogischem Personal im Schichtdienst. Das Konzept trägt bis heute, „aber die alten Häuser sind zum Teil baulich und räumlich aus der Zeit gefallen“, sagt die Architektin Dea Ecker.
Familienhaus mit drei Wohngruppen
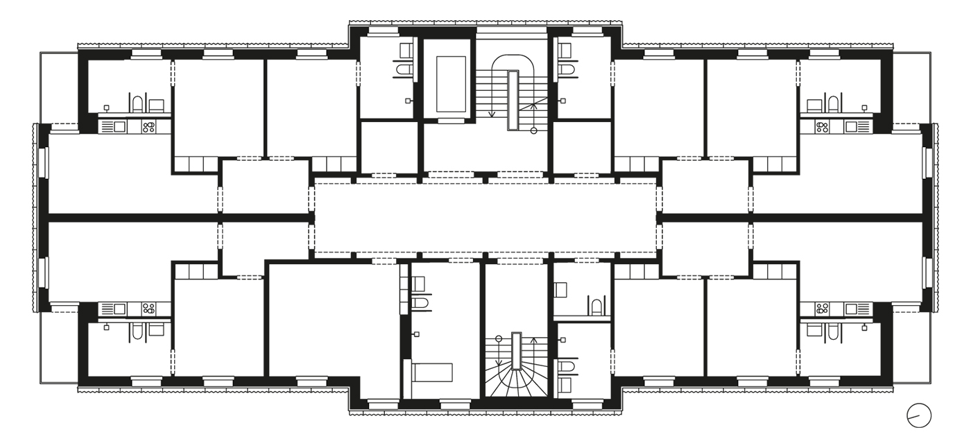
Ihr Büro Ecker Architekten bekam die Aufgabe, das Familienhauskonzept modellhaft und zukunftsfähig mit einem Neubauensemble für drei Wohngruppen zu erarbeiten. Mit Bruttobaukosten von 4,3 Millionen Euro (Kostengruppen 300–400) entstanden zwei Wohnhäuser in Holzbauweise mit 1.850 Quadratmetern Nutzfläche für drei Wohngruppen.
Das Erdgeschoss gehört jeweils der Gemeinschaft mit Wohnküche, zwei Gemeinschaftszimmern und einer großen überdachten Terrasse. Im Obergeschoss liegen die Einzel- und Geschwisterzimmer der Kinder sowie das Bereitschaftszimmer für die sozialpädagogischen Fachkräfte. Nebendran im gleichen Haus wohnt, ebenfalls über zwei Etagen, jeweils die Hausleitungsfamilie in einer eigenen Wohnung mit eigenem Zugang.
Richtiges Maß von Privatsphäre und Gemeinschaft
Eine Tür zum Gemeinschaftsbereich kann bei Bedarf beide Einheiten verbinden oder voneinander abgrenzen. Das ist wichtig, sagt Dea Ecker: „In einer gemeinsamen Wohnsituation ist es wesentlich, das für alle richtige Maß von Nähe und Distanz zu finden. Die Betreuenden müssen bereit sein, sich auf all die mit der Aufgabe verbundenen Emotionen einzulassen, und das kann schön, aber auch sehr kräftezehrend sein.“ Eben ein Familienwohnen, aber mit Grenzen.

An die Kinderbereiche fügen sich eigene Wohnungen für die Hausleitungen an. Das garantiert die richtige Balance aus Nähe und Rückzug.
Ecker Architekten
Die Walmdächer verbildlichen den Schutzgedanken
Neben den räumlichen Anforderungen wurde dem Architekturteam vor allem der psychologische Anspruch zum Leitmotiv, wie Dea Ecker erzählt: „Die Häuser und die Holzflächen geben ein schützendes Gefühl von Geborgenheit.“ Die langen, tiefgezogenen Walmdächer verbildlichen den Schutz, unter dem die Kinder leben, und schaffen ganz praktisch im Innern viel Fläche, ohne dass die Gebäude großmaßstäblich wirken.
Dea Ecker erklärt: „Die Häuser fügen sich in die Landschaft ein, und von außen unterschätzt man, wie groß die Räume darin sind.“
Ausweichflächen für konfliktfreies Zusammenleben
Es gibt viele Ausweichflächen, damit das Zusammenleben konfliktarm funktioniert. Denn die Kinder einer jeden Gruppe unterscheiden sich nicht nur in Alter und Charakter, sondern auch in dem, was sie erlebt haben. Die Flure sind etwas breiter, um Abstand halten zu können, die Zimmertüren mit Nischen zurückgesetzt für mehr Privatsphäre. Und der große Dachraum macht Platz fürs gemeinsame Toben.
Ruhige und harmonische Materialwahl
Die grauen Linoleumböden, die Dübelholzflächen an allen Decken und Wänden, die messingfarbenen Fensterrahmen und die glänzenden Pendelleuchten, das alles wirkt ruhig und harmonisch – aber gar nicht kindlich. Dea Ecker meint dazu: „Wir verniedlichen nicht. Wir schaffen einen robusten, warmen Hintergrund für das bunte Leben im Haus.“ Die Architektur ist hier also der Halt gebende Rahmen, in dessen Schutz sich die Familie und ihre sehr unterschiedlichen Persönlichkeiten entfalten dürfen.
Betreutes Wohnen in Berlin: Modersohn Freieslebeben
Eine ähnliche Idee vom Halt gebenden architektonischen Rahmen, von der richtigen Balance aus Nähe und Distanz, Für- und Selbstsorge liegt dem „Haus im Park“ des Sozialdienstes katholischer Frauen in Berlin-Pankow zugrunde. Die Bewohnerschaft ist jedoch eine ganz andere, ebenso die daraus resultierende Architektur, die das Architekturbüro Modersohn Freiesleben plante.

Im Berliner „Haus im Park“ können Menschen mit kognitiven Einschränkungen selbstbestimmt und in eigenen Wohnungen leben. Sie haben zugleich die Sicherheit durch eine betreuende Person.
Sebastian Schels
Selbstbestimmtes Wohnen, aber betreut
Im „Haus im Park“ wohnen 21 Erwachsene, die kognitiv beeinträchtigt sind, manche sind zudem auf einen Rollstuhl angewiesen. In diesem Haus können sie selbstbestimmt leben und haben trotzdem den Schutz und die Sicherheit einer betreuenden Person im Hintergrund.
Die Architektin Antje Freiesleben erklärt: „Die Menschen, die hier leben, haben ein großes Bedürfnis nach Autonomie und Privatsphäre. Daher sind die kleinschrittigen Übergänge vom Gemeinschaftlichen ins Private entscheidend“ – von den Sozialräumen für Tagesgäste im Erdgeschoss über die Flurgemeinschaften in den Obergeschossen, von dort in die meist zu zweit genutzten Wohnungsflure und Wohnküchen bis ins eigene Schlafzimmer mit privatem Bad.
Auf 2.540 Quadratmetern Fläche können sich die Bewohnerinnen und Bewohner nach Wunsch unterschiedlich weit aus einer begleiteten Situation in die Eigenverantwortung zurückziehen.

Die Wohnräume sprechen mit holzsichtigen Wänden und viel Tageslicht die Sinne an, ohne diese zu überfordern.
Sebastian Schels
Pragmatisches Haus mit einprägsamer Fassade
Auch hier verbildlicht sich die Bauaufgabe im Dach, wie Antje Freiesleben sagt: „Das schützende, weit auskragende Dach war für uns der Aufhänger: symbolisch als Schutz der Menschen im Haus, aber auch ganz praktisch zum Schutz der Holzkonstruktion und der Fassade.“ Denn das Gebäude ist eine Hybrid-Konstruktion, mit einem massiven Sockel und einer Holzkonstruktion darüber.
Die rostrote Holzfassade mit den ausgestellten Wellelementen aus Faserzement entwickelte das Team logisch aus den Anforderungen an den Wetter- und Brandschutz sowie aus dem, was die Industrie an passenden Produkten anbot und wie diese sich modular fügen ließen.
So entstand für Bruttobaukosten von 6,65 Millionen Euro (Kostengruppen 300–400) eine Architektur, die so pragmatisch wie ungewöhnlich ist. Das Haus mit der roten Holzfassade im Park ist eben kein Haus wie jedes andere, sondern eines, das die Bewohnerinnen und Bewohner wiedererkennen und mit dem sie sich identifizieren können.

Die meisten Wohnungen bestehen aus zwei Schlafräumen mit je eigenem Bad, einer gemeinschaftlichen Küche und einem Balkon. Je nach Wunsch kann man sich unterschiedlich weit aus einer begleiteten Situation in die Eigenverantwortung zurückziehen.
Modersohn & Freiesleben
Viel Gestaltung für hohe Wohnqualität
Auch im Innern ist die Wirkung der sichtbaren Holzbauweise entscheidend, wie Antje Freiesleben begründet: „Holz hat eine warme Ausstrahlung. Die Menschen sollen sich darin geborgen fühlen.“ Das Haus solle, trotz der hohen Anforderungen an Materialrobustheit, Brandschutz und Barrierefreiheit, die gestalterischen Qualitäten aufweisen, die man sich für jedes Wohnhaus wünschen würde, so die Architektin: funktionale und schöne Räume, Tageslichtbäder und Balkone.
Barrierefreiheit erst auf den zweiten Blick
Dass die Menschen, die hier leben, etwas mehr Schutz erfahren, sieht man erst auf den zweiten Blick: Teils sind es praktische Dinge, wie die barrierefreien Flure mit Handlauf, der Notrufknopf und ein Verbrühschutz in den Wohnungen, die robuste Haustechnik und die breiten Rettungswege.

Im zentralen Flur sorgt Farbe für Wiedererkennbarkeit, im obersten Geschoss ergänzt durch ein besonders konstruiertes Oberlicht.
Sebastian Schels
Gute Orientierung und Wiedererkennbarkeit
Vor allem aber sind es die architektonischen Qualitäten, die die Bedürfnisse der Menschen nach Orientierung und Halt berücksichtigen: Das Team setzte auf viel Tageslicht und zahlreiche Sichtbezüge, sowohl in den Fluren als auch von den Wohnräumen nach außen. Es wählte nach räumlicher Zuordnung farblich abgesetzte Bodenbeläge und Wandsockel, teilte große Flächen mit geometrischen Mustern und machte mit Fliesen den Eingang, die Treppen und die Etagenzahl ablesbar.
Diese Details haben nicht nur praktische Gründe, sondern sie bleiben auch in Erinnerung und wirken identitätsstiftend.
Übernachtungsheim für Obdachlose in München: Hild und K
500 Kilometer weiter südlich prägt sich die „Heimat auf Zeit“ ebenfalls mit einer roten Holzfassade ins Gedächtnis: Das Übernachtungsheim für Menschen ohne Obdach steht im Norden der Stadt München und wurde vom Architekturbüro Hild und K im Auftrag der Stadt geplant.

Mehrere Gebäudetrakte mit separierten Höfen ermöglichen in der Münchner Großunterkunft, dass Männer, Frauen und Familien eigene Bereiche bewohnen und sich sicherer fühlen.
Michael Heinrich
Obdach nur für eine Nacht
Die BAG Wohnungslosenhilfe schätzt die Zahl der Wohnungslosen in Deutschland auf circa 600.000. Die meisten von ihnen kommen bei Freunden, der Familie oder in sozialen, institutionellen Wohnprojekten unter. Aber manche leben ganz ohne Obdach auf der Straße und können dann in einem Übernachtungsheim Schutz suchen. Hier finden sie ein Bett für eine Nacht, müssen das Haus morgens wieder verlassen und dürfen abends erneut für ein Bett anfragen.
Hemmschwelle für Übernachtung senken
Hild und K sind sehr erfahren im Wohnungsbau, aber ein Übernachtungsheim war eine neue Herausforderung. Matthias Haber, geschäftsführender Architekt bei Hild und K, erinnert sich: „Wir haben uns am Anfang gefragt: Wie fühlt man sich dort?“ Um das herauszufinden, besuchten sie eine alte Kaserne, in der damals Menschen ohne Obdach übernachteten.
Matthias Haber fragte sich: „Würden wir im Zweifel auch dort Schutz suchen oder hätten wir Hemmungen? Und wie lassen sich diese Hemmschwellen senken?“

Das Übernachtungsheim in München soll eine sichere „Heimat auf Zeit“ sein. Aufgrund der Größe des Gebäudes und der unwirtlichen Lage war es eine Herausforderung, eine entsprechend einladende Atmosphäre zu erzeugen.
Michael Heinrich
Mehr als eine Notunterkunft
Die gute Raumatmosphäre und die einladende und sichere Ausstrahlung des Gebäudes wurde zum Gestaltungsziel. Gleichzeitig gab es viele funktionale Aspekte, die im Prozess immer komplexer wurden. In vielen Gesprächen und Fragen zu den organisatorischen Abläufen zeigte sich, dass die ursprüngliche Bauaufgabe, ein einfaches Schutzhaus für Winternächte zu bauen, wenig nachhaltig war.
Matthias Haber erzählt: „Ich finde es erstaunlich, wie stark sich das Projekt inhaltlich verändert hat. Wir merkten, dass unser gesellschaftlicher Anspruch längst weiter geht: Schutz bedeutet heute so viel mehr als nur den Schutz vor Kälte.“ So entstand ein 13.000 Quadratmeter großes Gebäude zur ganzjährigen Übernachtung für bis zu 730 Menschen, mit medizinischer Versorgung und sozial-psychologischem Beratungsangebot und mit tagsüber nutzbaren Sozialräumen.

Der Grundriss mit seinen Höfen erlaubt Zonierungen nach Nutzergruppen. Die Übernachtungszimmer sind jedoch fast alle identisch und ohne eigene Bäder.
Hild und K
Räumlich an funktionalen Abläufen orientiert
Eine Machbarkeitsstudie half, die geeignete räumliche Organisation und Typologie zu finden. Matthias Haber erläutert: „Für die Nutzenden sollte der Ablauf klar ablesbar sein, von der zentralen Aufnahme über den Verteilerhof bis zu den Wohntrakten.“ Die Kammstruktur entspricht dem Prozess im Innern und ermöglicht die einfache bauliche Trennung der Funktionen und Wohntrakte.
Sichere Wohnbereiche für verschidene Personengruppen
Frauen, Männer und Familien haben je ihren eigenen, sicheren Wohn- und Freibereich. Der abgegrenzte, geordnete und gesicherte Raum ist nicht nur funktional und für den Ablauf wichtig; er gibt gerade den Menschen Halt, die sich in sehr vulnerablen und prekären Situationen befinden, wie Matthias Haber erklärt: „Das Gefühl von Heimat ist eng verbunden mit dem Gefühl von Sicherheit. Beides zusammen führt dazu, dass man sich eher wohlfühlt.“ Die räumliche Sicherheit, nicht nur vor Witterung, auch vor Anfeindungen und Gewalt, ist eine Grundvoraussetzung, um wohnungslose Menschen zu schützen.

Vier Personen teilen sich eins der schlichten Übernachtungszimmer.
Michael Heinrich
Langlebiges Wohnhaus statt Containerdorf
Damit sie sich willkommen fühlen, brauche es zudem eine Gestaltung, die liebevoll und durchdacht sei und Identifikation stifte, so Matthias Haber. Statt eines Containerprovisoriums baute das Team also ein langlebiges Hybrid-Gebäude aus einem Betontragwerk und einer modular vorgefertigten, sehr detailreich ausgestalteten Holzfassade.
„Es ist ein Gebäude, das auch in ferner Zukunft ein fester, flexibel nutzbarer Stadtbaustein sein kann“, so Matthias Haber, „und das Wertschätzung und eine gewisse Heimeligkeit ausstrahlt.“ Beides wird von vielen Menschen, unabhängig von ihrer Lebensgeschichte, verstanden und führt dazu, dass sie sich in diesem Haus geschützt und zumindest für kurze Zeit zu Hause fühlen können.
Neiddebatte: Zu schön für einen Sozialbau?
Das ist bei Sozialbauten selbst dann nicht selbstverständlich, wenn alle funktionalen, gestalterischen und architekturpsychologischen Aspekte überzeugen. Denn gesellschaftliche Gräben verfangen sich an sozialen Bauprojekten schnell, und grobschlächtige Meinungen Dritter wirken oft ausgrenzend und bedrohlich.
Da kann eine als schön empfundene Architektur Neiddebatten erzeugen, unabhängig von den Baukosten. Durch eine schlichte Gestaltung kann sich dagegen die Nachbarschaft abgewertet fühlen. Der eine kritisiert einen abseitigen, der andere einen prominenten Bauort.
Jeder hat Recht auf gute Gestaltung
Es ist ein heikler Kommunikationsgrat für die Auftraggebenden, die Betreibenden der Einrichtungen und die Planenden. Dabei ist es doch eindeutig, wie Matthias Haber sagt: „Jeder Mensch hat das Recht auf eine bestmögliche Gestaltung. Das zu leisten, ist eine demokratische Haltung.“
