Dieser Beitrag ist unter dem Titel „Anbschubhilfe“ im Deutschen Architektenblatt 06.2025 erschienen.
Dass Wettbewerbe einen wichtigen Beitrag zur Förderung der Baukultur leisten können, ist bekannt – dass insbesondere offene Wettbewerbe darüber hinaus oft der entscheidende Faktor für die erfolgreiche Entwicklung von Büros sind, die am Anfang ihrer Karriere stehen, nicht weniger.
Dennoch ist die Zahl der offenen Wettbewerbe hierzulande nach wie vor rückläufig; eine Trendwende deutet sich nicht an. Das derzeitige Vergabewesen, so BAK-Präsidentin Andrea Gebhard, „wirkt sich nachteilig auf innovative Architektur und Baukultur aus, weil es zu stark auf formaljuristische, wirtschaftliche und technische Kriterien fokussiert ist“.
Überzogene Forderungen nach Referenzaufträgen und eine zunehmende Beauftragung von Totalunternehmen verhinderten ein faires Verfahren. Umso stärker fallen dann die Positivbeispiele ins Auge, bei denen Wettbewerbserfolge den Auftakt einer Bürokarriere bilden. Hier zeigt sich: Punkten kann manchmal das entschiedene Eintreten für das Prinzip Nachhaltigkeit.
Schule in Davos von CURA
Ein gutes Beispiel hierfür sind die beiden jungen Architekten Otto Closs und Marc Ritz aus Mannheim beziehungsweise dem Rhein-Main-Gebiet, die 2022 einen offenen Wettbewerb im schweizerischen Davos gewinnen konnten. Die Gemeinde des berühmten Kur- und Wintersportortes hatte einen Projektwettbewerb für die Erweiterung einer Schule mitten im Zentrum des 11.000 Einwohner starken Städtchens ausgeschrieben, um zusätzlichen Raum für weitere Klassenzimmer, eine neue Aula, eine Cafeteria und die Verwaltung zu gewinnen.

Im Wettbewerb für die Schule in Davos wurde Abriss und Neubau empfohlen. Die Architekten von CURA setzten sich mutig darüber hinweg – und konnten überzeugen. Jetzt glänzt der aufgestockte und erweiterte 1960er-Jahre-Bau mit einer neuen, grün imprägnierten Holzfassade.
Daisuke Hirabayashi
Sanierung statt Abriss
Statt Abriss und Neubau – wie in der Wettbewerbsausschreibung empfohlen – schlugen die Architekten vor, den vorhandenen Baukörper aus den 1960er-Jahren zu integrieren und in Holzskelettbauweise zu erweitern beziehungsweise zu ummanteln. „Von den gut dreißig Teilnehmern des Wettbewerbs“, erzählt Marc Ritz, „hat kaum einer unseren Ansatz geteilt.“ Konkret sah dieser vor, die Wandachsen des Bestandsbaus an den Längsseiten fortzuführen und ein drittes Stockwerk auf das alte Dach aufzusetzen. Die zusätzlichen Lasten sollten über seitliche Ausbauten abgetragen werden.
1.367 Tonnen CO2 eingespart
Eine neue, grün imprägnierte und geölte Holzfassade mit Holzfaserdämmung (ausreichend für die thermischen Bedürfnisse) signalisiert jetzt nach außen einen gewissen Neuansatz, bleibt aber insgesamt den ortsspezifischen baulichen Erscheinungsbildern treu. Entstanden ist ein den neuen Anforderungen einer Ganztagsschule entsprechender, gut funktionierender Hybrid, dessen Altbauanteil rund 40 Prozent des Volumens des fertiggestellten Gebäudes ausmacht. 700 Kubikmeter Bauschutt und 1.367 Tonnen CO2 konnten so eingespart werden, haben die Architekten ausgerechnet.

Die neuen Schulräume in Holzbauweise besitzen eine angenehme, alpine Atmosphäre.
Daisuke Hirabayashi
Nachhaltiges und einfaches Bauen als Kriterien
Für Marc Ritz und Otto Closs war das Davoser Projekt ein Glücksfall. Nicht nur, weil damit gleich der erste Wettbewerb, an dem beide gemeinsam teilgenommen hatten, in Gewinn und Bau endete. Sondern auch, weil mit ihm die gewünschte inhaltliche Ausrichtung des eigenen Büros konkret werden konnte. „Wir hatten uns eigentlich immer vorgenommen“, so Marc Ritz, „dass, wenn wir uns selbstständig machen, unsere Ziele Nachhaltigkeit und Einfachheit auch konkret umgesetzt sein müssen, damit wir für sie eintreten können.“
So war Davos der perfekte Ausgangspunkt für ihr Büro in München, dessen Name Cura man als Hinweis auf seine nachhaltig bewahrende Programmatik werten darf. Kennengelernt hatten die beiden Bürogründer sich im Studium an der TU Darmstadt, wo Ritz anschließend auch Lehraufträge übernahm. Es folgten Anstellungen bei größeren, teils international arbeitenden Büros – Otto Closs zeitweise bei Herzog & de Meuron in Basel, Marc Ritz bei Dietz-Joppien Architekten in Frankfurt.

Der Altbau der Schule wurde mit neuen Raumschichten umbaut. Schwarz: Bestand, Rot: Erweiterung
CURA
Mehr für junge Architekturbüros offene Wettbewerbe in der Schweiz
Was das Davoser Beispiel allerdings auch zeige, so Marc Ritz, sei die Tatsache, dass die Bedingungen in der Schweiz für junge Büros deutlich günstiger seien als in Deutschland. Hier gebe es noch weit mehr offene Wettbewerbe. Tatsächlich ist laut der Bauzeitung Tec 21 der Anteil offener Wettbewerbe an der Gesamtzahl in der Schweiz von 2018 bis 2022 sogar von 27 auf über 50 Prozent gestiegen.
Und auch in manchem Bearbeitungsdetail sei das Nachbarland die bessere Alternative, berichtet Marc Ritz: „Das betrifft zum Beispiel das Anfertigen von städtebaulichen Modellen, die der Bauherr einheitlich gegen eine Depotgebühr von wenigen Hundert Franken zur Verfügung stellt.“ Dass der ganze Wettbewerb dennoch eine Herausforderung war, steht auf einem anderen Blatt. „Er bedeutete für uns viele Arbeitsstunden abends bis spät in die Nacht“, erinnert sich der Architekt. Es hat sich offenbar gelohnt.
Feuerwehrhaus in Reinbek von Rimpau Bauer Derveaux
Ein offener Wettbewerb – diesmal allerdings in Deutschland – war auch Ausgangspunkt für das Projekt eines neuen Feuerwehrhauses in Reinbek bei Hamburg, mit dem sich das Berliner Büro Rimpau Bauer Derveaux etablieren konnte. Nach knapp drei Jahren Bauzeit wurde der Bau 2023 eröffnet. Der Wettbewerb hierzu war bereits 2015 entschieden, das Projekt infolge von politischen Diskussionen über Standortfragen jedoch für mehrere Jahre auf Eis gelegt worden.

Dass die Feuerwache in Reinbek zum Großteil ein Holzbau ist, entdeckt man erst auf den zweiten Blick.
David Hiepler
Funktional gelungene Feuerwache
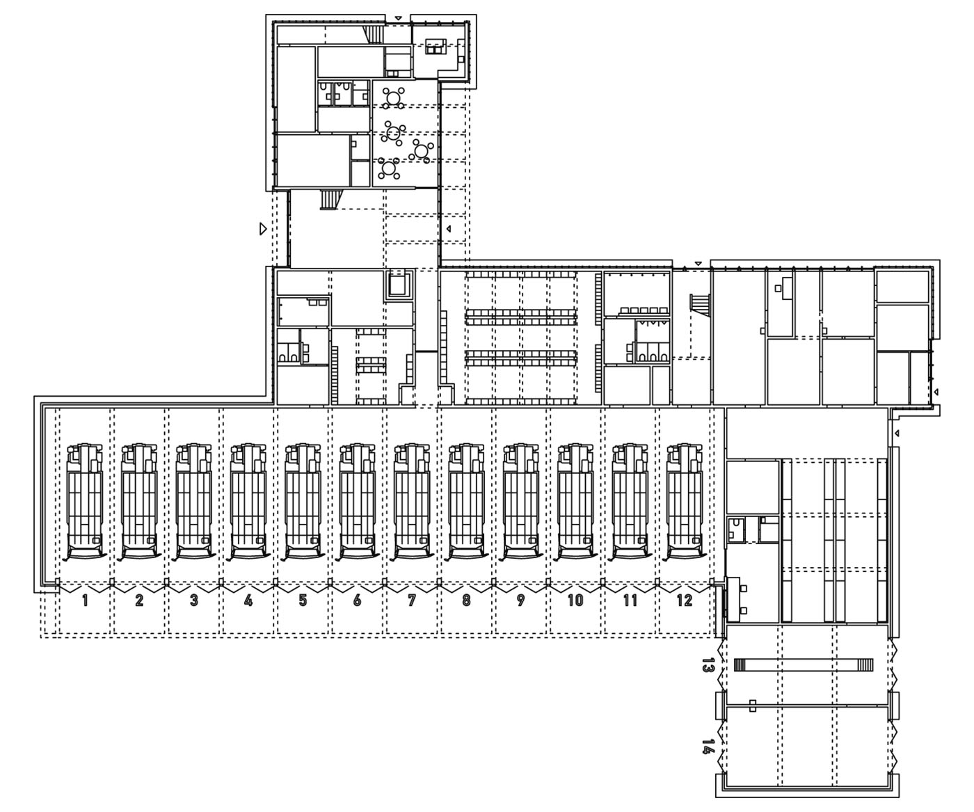
Heute nimmt der ausgedehnte, flache Gebäudekomplex aus zwei versetzt angeordneten, L-förmigen Baukörpern die Mitte des Grundstücks ein und gliedert dadurch die Freifläche in unterschiedene Funktionsbereiche (Vorplatz, Alarmplatz, Anlieferhof, Parkplatz). Die gelungene Funktionsaufteilung gilt auch für das Innere, wo sich eine Halle mit zwölf Stellplätzen für die Feuerwehrfahzeuge, eine Reparaturwerkstatt, Werkzeug- und Waschhalle sowie Verwaltungsräume die Gesamtfläche von 3.189 Quadratmetern teilen.
Holztragwerk auf Stahlbetonsockel
Auch wenn es von außen auf den ersten Blick nicht den Anschein hat, basiert das Gebäude auf einem Holztragwerk, das auf einem Stahlbetonsockel ruht. Für die Fassaden wählten die Architekten eine Bretterschalung aus kernimprägniertem Nadelholz, die sie granitgrau lasieren ließen. Im Inneren dominiert dann allerorten auch optisch das Holz: Die Stützen und Träger sind aus Brettschichtholz, Wand- und Deckenelemente aus Brettsperrholz.
Ergebnis ist nicht zuletzt der Holzbaupreis Schleswig-Holstein/Hamburg, der auch dazu beitragen könnte, mit dem hartnäckigen Vorurteil aufzuräumen, aus Brandschutzgründen solle man besser nicht mit Holz bauen.
Ein extensives Gründach, Regenwasserrückhaltung sowie eine ressourcensparende Gebäudetechnik sind weitere Elemente des nachhaltigen Baus, dessen Baukosten am Ende elf Millionen Euro für die Kostengruppen 300 und 400 betrugen.

Zwei L-förmige Baukörper zonieren – Rücken an Rücken – die Grundstücksfläche.
David Hiepler
Wettbewerb mit 270 Teilnehmern
Warum sie glauben, den zweiphasigen Wettbewerb gewonnen zu haben, an dem zunächst rund 270 Büros teilgenommen hatten? Auf diese Frage antworten die jungen Architekten pragmatisch bescheiden, dass die Lösung mit zwei L-förmigen Trakten samt zugehöriger Außenbereiche die unterschiedlichen Funktionen und Abläufe des Feuerwehrzentrums stimmig baulich abgebildet habe. Letztlich entscheidend sei gewesen, dass man die Bauherren von der nachhaltigen Holzbauweise habe überzeugen können.

Grundriss der Feuerwache Reinbek mit der Wagenhalle, den Umkleide- und Sozialräumen.
Rimpau Bauer Derveaux
In 30 Prozent der Wettbewerbe erfolgreich
Was sich im Nachhinein als Erfolgsgeschichte liest, war für die drei Architekten allerdings kein ganz so steiler Start wie bei ihren Münchner Kollegen. Nachdem Hans-Georg Bauer und Ruwen Rimpau-Spichalsky sich im Rahmen ihrer Arbeit bei Barkow Leibinger Architekten kennengelernt hatten, hatten sie schon 2012 – also drei Jahre vor dem Wettbewerbsgewinn – in Berlin gemeinsam den Schritt in die Selbstständigkeit gewagt.
Jan Derveaux aus Belgien führte da bereits ein eigenes Büro, mit dem man projektweise zusammenarbeitete. Seit 2019 firmieren die drei gemeinsam unter Rimpau Bauer Derveaux Partnerschaft von Architekten mbB. „Wir haben seit 2012“, erzählt Ruwen Rimpau-Spichalsky, „knapp 100 Wettbewerbe bearbeitet. Bei rund 30 Prozent davon konnten wir einen Preis oder eine Anerkennung erzielen, vier erste Preise haben wir gewonnen.“
Immer weniger offene Wettbewerbe in Deutschland
Wie viele ihrer jungen Kolleginnen und Kollegen wünschen sie sich mehr offene Wettbewerbe und generell niedrigere Hürden für den Wettbewerbszugang. Die Tendenz geht aber in Deutschland genau in die entgegengesetzte Richtung: Es werden sukzessive weniger Wettbewerbe bei gleichbleibender oder sogar wachsender Zahl an Teilnehmern ausgelobt.
Der wichtigste Kritikpunkt für die Berliner: „Nach unserer Erfahrung macht es keinen Sinn, weiterhin derart anspruchsvolle bautypologische Referenzlisten von Wettbewerbsteilnehmern zu verlangen. Die Aufgaben sind individuell zu lösen.“ Sie selbst haben jedenfalls im weiteren Verlauf darauf verzichtet, ihr Büro auf bestimmte typologische Bauaufgaben zu fokussieren.
Wettbewerbe lohnen sich indirekt
Ob sie auch weiterhin an Wettbewerben teilnehmen wollen? „Obwohl die Teilnahme ein großes Investment an Zeit und Energie bedeutet und die Preisgelder die Arbeit in der Regel nicht abdecken, lohnt sich die Entwurfsarbeit bei Wettbewerben für uns“, ist Ruwen Rimpau-Spichalsky überzeugt, „und wir wollen den Weg möglichst weiterverfolgen. Wettbewerbe ermöglichen es uns, uns mit anspruchsvollen und komplexen Aufgabenstellungen auseinanderzusetzen; wir üben uns und lernen ständig dabei.“
Bei so viel Engagement kann man nur hoffen, dass möglichst viele Bauherren dieses Geschenk der jungen Architekten annehmen. Derweil bauen die drei ihre Expertise in der Holzbauweise an verschiedenen Wohnungsbauprojekten weiter aus, die sie als Direktaufträge an Land ziehen konnten.
