
Dieser Beitrag ist unter dem Titel „Optimismus und Radikalität“ im Deutschen Architektenblatt 03.2024 erschienen.
Von Stefan Kreitewolf
Mitten in Köln, zwischen ratternden Straßenbahnen und lärmenden Feierwütigen, sitzen neben einem Friseursalon und einem Sonnenstudio drei Männer in einer umgebauten Garage und grübeln. Sie sind Architekten – und die Garage ist nicht wiederzuerkennen. Auf den aufgeräumten Tischen: Macbooks, vereinzelt Ausdrucke, Kaffeetassen und eine selbst gebackene Zitronentarte. Die cleane Optik und das riesige Schaufenster im Erdgeschoss des Wohn- und Geschäftsgebäudes am Barbarossaplatz stechen heraus.
Nach dem Studium wieder zusammengefunden
Tim Panzer (39), Matthias Hoffmann (38) und Thorsten Pofahl (39) bilden die Demo Working Group. Seit vier Jahren arbeiten sie zusammen, anfangs nur projektweise, ab 2021 fest. Das Trio studierte zusammen an der RWTH Aachen und verlor sich nach dem Abschluss aus den Augen.

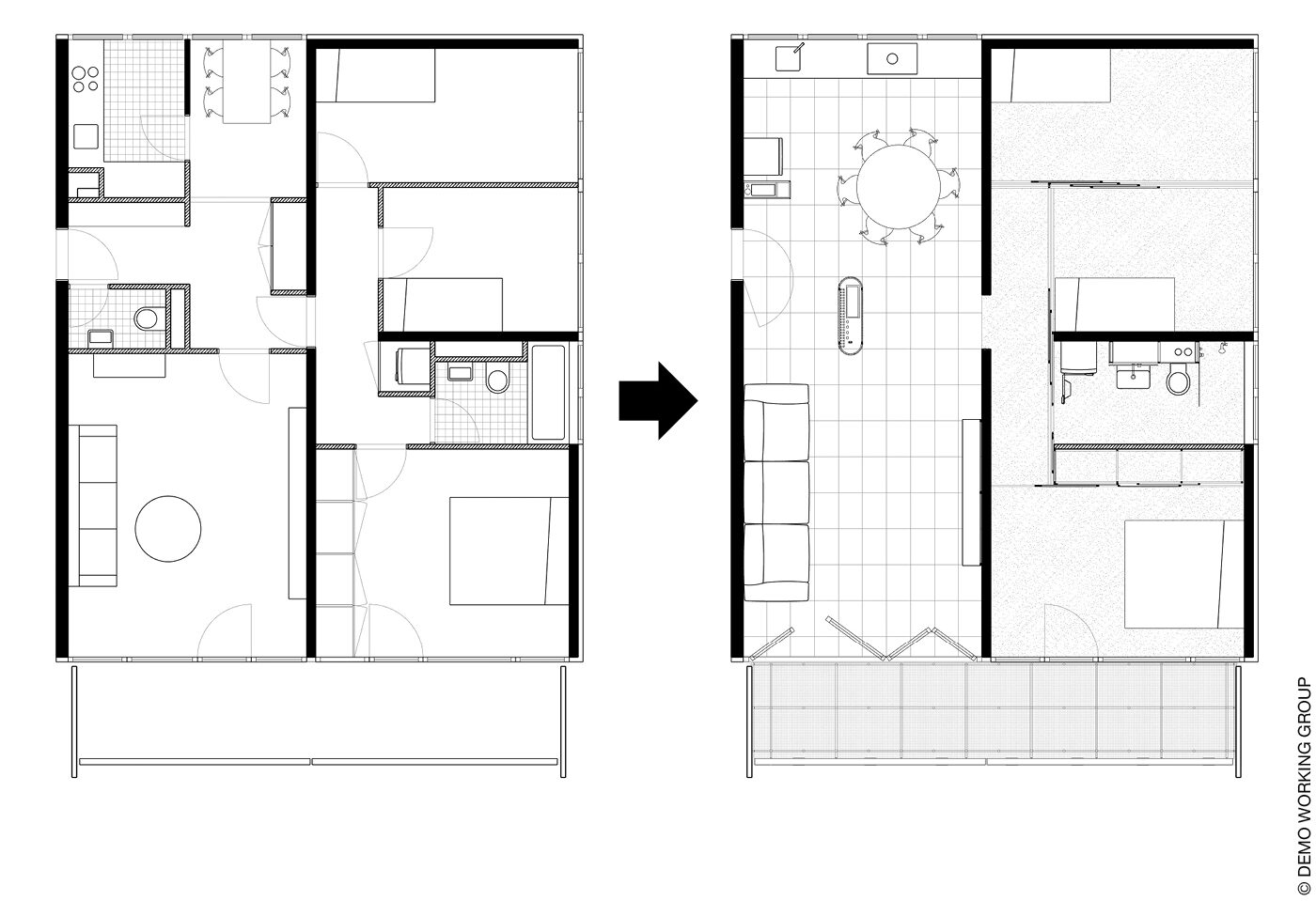
Dachausbau und Familienwohnung prämiert
Gemeinsam mit Wiebke Schlüter – die seit Anfang 2023 kein festes Mitglied der Gruppe mehr ist, aber in Projekten weiter mit den ehemaligen Mitstreitern kooperiert – fand man 2019 wieder zusammen. Und versuchte sich an ersten Wettbewerben. Mit Erfolg: Auf Anhieb machten sie einen hoffnungsvollen vierten Platz. Mittlerweile wurden unter anderem ein Dachausbau im hippen Köln-Lindenthal sowie die Sanierung einer Familien-Wohnung im rechtsrheinischen Köln-Poll aus ihrer Feder prämiert.
Ästhetik und Pragmatismus
Bauliche Neuerfindungen treffen bei den dreien auf moderne räumliche Vorstellungen. In Köln-Poll, wo die Planer eine 82 Quadratmeter große Geschosswohnung in einer Wohnanlage aus den 1970er-Jahren komplett neu inszenierten, zeigt sich ihr Ansatz in seiner ganzen Radikalität.
„Unser Ziel war es, die Wohnung komplett neu zu denken“, erläutert Tim Panzer. Für eine vierköpfige Familie bot sich auf der relativ kleinen Fläche eine knifflige Aufgabe. Unweigerlich stellten sich „Fragen nach Lebensstandard, Angemessenheit und Anpassungsfähigkeit der bestehenden Strukturen“, wie Matthias Hoffmann es formuliert.

Modulares Wohnen möglich
So reduzierten sie mit dem Abbruch aller nicht tragenden Wände die Zimmerzahl des Bestandsgrundrisses. Ein größerer Gemeinschaftsbereich und kleinere Räume bieten nun Rückzugsmöglichkeiten und Interaktionspotenzial. Ein Schiebewandsystem, das mithilfe von Aluminiumprofilen aus dem Maschinenbau ein modulares Wohnen ermöglicht, ist Kern des neuen Wohnungskonzepts.
„Das war viel Arbeit, zumal die geraden Metallschienen auf unsaubere Abbruchkanten trafen“, erläutert Thorsten Pofahl. Die Lösung: „In viel Kleinstarbeit schlossen wir die Lücken zwischen Wand, Decke und Schiene mit eigens dafür produzierten Elementen aus dem 3D-Drucker.“
Wohnungstür direkt ins Wohnzimmer
Raue Wände und Abbruchkanten prägen nun das Erscheinungsbild der Wohnung. Kein Flur, sondern die Wohnungstür führt nach dem Umbau direkt ins Wohnzimmer. Dazu im hinteren Teil der Wohnung: drei Schlafzimmer und ein Bad. Die alte Position des Gäste-WCs lässt sich nur noch durch den frei im Wohnraum stehenden Schacht ablesen, der mit einem Lochblech verkleidet wurde und neben den Installationsleitungen die Heizung enthält. Alle alten Heizkörper wurden entfernt.

Neue Umbaustrategien entwickeln
Die Demo Working Group sei „bewusst kein Nachnamen-Büro“, sagt Thorsten Pofahl. Der Fokus liege auf der Arbeit und den Projekten. Tim Panzer erklärt das so: „Uns geht es nicht darum, in jedem Gebäude ein Signature-Element der Demo Working Group einzubringen. Wir suchen nach neuen Strategien, um das Umbauen der Zukunft mitzugestalten.“
Ihr Fokus liegt auf den Potenzialen von Bestandsbauten. Das ist für sie Überzeugung und Geschäftsmodell. Denn für Matthias Hoffmann und seine Mitstreiter ist klar: „So wie es war, wird es nicht mehr werden – und das sollte es auch nicht.“
Im Gegenteil: Die Demo Working Group möchte in Zeiten steigender Kosten, fehlenden Wohnraums und knapper werdender Ressourcen ein Gegenmodell zu etablierten Lösungsansätzen bieten. „Es ist so viel im Wandel, wir können jetzt total neu denken und planen, das bietet auch eine immense Chance“, konstatiert Tim Panzer.

Kritik am Abriss des Kölner Justizzentrums
Mit Überzeugung und Optimismus gehen die drei die Probleme der Branche an. Sie wollen „positive Bilder für die Zukunft“ schaffen. Deswegen investierten sie viele Stunden Arbeit in einen Entwurf zum Justizzentrum Köln (zu sehen auf der Website der Demo Working Group), einem riesigen Hochhauskomplex aus den 1980er-Jahren mitten in der Kölner Südstadt.
Die Stadt Köln möchte ihn abreißen lassen und in ähnlicher Form neu bauen, um dringend benötigte Wohnfläche zu schaffen. Thorsten Pofahl ist mit diesem seiner Meinung nach „verschwenderischen Ansatz“ nicht einverstanden. Vielmehr sei es heute mehr denn je geboten, schnellere Antworten für die Nutzung bestehender Bauten zu finden. „Ausgehend von den aktuellen Gegebenheiten gilt es, neue Narrative für die Zukunft zu entwickeln“, fordert er.
Ein möglicher Umbau des Justizzentrums, wie von der Demo Working Group vorgeschlagen, würde schneller gehen als der von der Stadt favorisierte Neubau. Außerdem würde er Ressourcen schonen und 10.000 Tonnen CO₂ einsparen, errechneten Panzer, Hoffmann und Pofahl.

Eigeninitiative wichtiger Teil der Arbeit
Mit solchen Ideen, die wie beim Justizzentrum von der Lokalpresse und Politikerinnen und Politikern aus der Stadt aufgegriffen werden, bringen sich Panzer, Hoffmann und Pofahl ins Gespräch. Nicht immer ist das lukrativ. „Für den Entwurf hat uns niemand angefragt, das war alles Eigeninitiative – unbezahlt, versteht sich“, berichtet Matthias Hoffmann. Für die Demo Working Group sei das aber ein wichtiger Teil ihrer Arbeit.
Pragmatismus im Sinne der Nachhaltigkeit
Zum Alltag der drei jungen Architekten gehören indes auch „normalere Aufträge“, wie Matthias Hoffmann es beschreibt. „Wie andere junge Architekturbüros bekommen wir auch Anfragen aus dem Bekanntenkreis, zum Beispiel von der Cousine eines Freundes, die ein Einfamilienhaus in der Vorstadt geerbt hat“, erzählt Tim Panzer. Aber auch dort verfolgen sie einen Ressourcen-schonenden Ansatz. „Lasierte Ziegel oder intakte Klinkerfassaden entsprechen nicht unbedingt unserem ästhetischen Verständnis, halten aber vielleicht noch 20 Jahre – dann fassen wir sie nicht an“, berichtet Thorsten Pofahl.

Kein Mangel an Aufträgen
Von ihrer Arbeit können die drei mittlerweile leben. „Auch wenn es sicher nicht dem Einkommen entspricht, das man als angestellter Architekt in einem etablierten Büro bekäme“, ergänzt Matthias Hoffmann. Das geringe Gehalt, das sie sich auszahlen, sehen die drei als Investition in ihre Zukunft. Zu Beginn ihrer Selbstständigkeit mussten sie ihr Büro mithilfe von Lehr- und Forschungstätigkeiten an verschiedenen Hochschulen querfinanzieren.
Seit 2022 sei das nicht mehr nötig. Auch die Pandemie sei für die Gründer kein Problem gewesen. Und zu tun gibt es mittlerweile genug. „Aktuell kümmern wir uns um zwölf Projekte in verschiedenen Phasen“, zählt Matthias Hoffmann.

Neubauten müssen transformierbar sein
Künftig wollen die jungen Architekten weiter mit klugen und nachhaltigen Ideen die Debatte um die Zukunft des Bauens mitgestalten und mit anderen Disziplinen kooperieren. Optimismus und Radikalität leiten sie dabei. Das zeigt sich auch in dem Neubau-Entwurf einer Halle in Langenfeld, der noch ganz am Anfang steht.
Recycelte Photovoltaik-Elemente und ein versetzter Solarkamin tragen zur Nachhaltigkeit des Projekts bei. Spricht der Neubau aber nicht eigentlich gegen ihren Fokus auf Bestandsumbauten? „Nein, uns ist nur wichtig, dass Gebäude, die neu errichtet werden, transformierbar sind“, erläutert Tim Panzer. Die Langenfelder Halle soll künftig auch als Bürofläche funktionieren.
Ideen entstehen mitten im Leben
Als es Abend wird, donnert der Feierabendverkehr an den Scheiben der Demo Working Group vorbei. Im Zwielicht der untergehenden Dezembersonne ziehen die ersten Kneipengäste durch die Nebenstraßen der Kölner Ringe. Sie werden beschienen vom Licht, das aus dem Büro auf die Straße fällt.
Den Arbeitsraum am Barbarossaplatz wollen die drei jungen Architekten unbedingt behalten, auch wenn die Fläche mal zu klein werden sollte. Matthias Hoffmann reflektiert: „Für uns ist es wichtig, mitten im Leben der Stadt zu sein.“
Alle Beiträge zum Thema finden Sie in unserem Schwerpunkt Jung.