Deutsches Architektenblatt Logodab-logo
Finden Sie genau die Themen,
die Sie interessieren

Die beliebtesten Themen:

Deutsches Architektenblatt Logodab-logo Deutsches Architektenblatt Logodab-logo-description

Modulare Systeme von Architekt:innen entwickelt

Der Modulbau braucht architektonische Mitgestaltung nicht nur im Entwurf, sondern auch bereits im System

 

Bettina Sigmund
06.03.2026 10min
Modulbaukasten für „Wanderschulen“ von Werk.um: Lernlandschaft in der Kerschensteiner Grundschule. ©Thomas Ott, www.o2t.de

Modulares Bauen gilt als Antwort auf Zeitdruck, Kostensteigerungen und Kapazitätsengpässe im Bauwesen. Die Stärken liegen in Standardisierung, Vorfertigung und Wiederholbarkeit. Gerade deshalb ist es entscheidend, dass sich Architekt:innen aktiv in die Entwicklung modularer Systeme einbringen – nicht erst bei der Planung einzelner Gebäude, sondern bereits auf Systemebene. Ohne planerische Beteiligung droht der Modulbau auf rein logistische Aufgaben reduziert zu werden. Grundrisslogiken, Raumproportionen oder Belichtung werden dann primär von Produktionsraster und Transportmaßen bestimmt. Architektur entsteht nachträglich – als Hülle um ein technisches Produkt. Dabei entscheidet sich die Qualität modularer Gebäude genau an diesen Schnittstellen: in der Beziehung von Raum und Konstruktion, in der Nutzungsflexibilität und der langfristigen Verwendbarkeit. Architekt:innen bringen hier eine andere Perspektive ein. Sie verstehen Modularität als räumliches Ordnungsprinzip, das Variation, Erweiterung und Umnutzung zulässt. Die vorgestellten Ansätze spiegeln dabei unterschiedliche Entwicklungsstände wider: von ersten Prototypen über Systeme auf dem Weg zum marktfähigen Produkt bis hin zu etablierten Baukastensystemen, die kontinuierlich weiterentwickelt werden.  

Das Baukastensystem BetaPort wird durch eine eigens entwickelte Planungssoftware mit angebundener Datenbank ergänzt, die sämtliche Bauteile – bis hin zur einzelnen Schraube – über den gesamten Lebenszyklus eines Gebäudes hinweg erfasst und dokumentiert. Alle Elemente sind so ausgelegt, dass Herstellungs-, Transport- und Montageprozesse möglichst effizient und schlank ablaufen. Die automatisierte Fertigungsstruktur kann ohne großen Aufwand auf weitere Standorte übertragen werden. So lassen sich bei Bedarf kurzfristig regionale Produktionskapazitäten aufbauen und größere Vorhaben flexibel realisieren. © urban beta

BetaPort – Systemlogik aus wiederverwendbaren Baukomponenten  

Mit BetaPort verfolgt das Innovationsstudio Urban Beta einen Ansatz, der sich bewusst von klassischen Modulbausystemen absetzt. Statt vordefinierter Gebäudetypen oder Nutzungsszenarien ist BetaPort als offenes Gebäudesystem konzipiert. Im Mittelpunkt steht nicht der einzelne Modultyp, sondern eine übergeordnete Systemlogik aus wiederverwendbaren Baukomponenten. Das System funktioniert damit als Framework, das unterschiedliche Gebäudeausprägungen zulässt und auf Wiederverwendung, Anpassbarkeit und Weiterentwicklung ausgelegt ist. Die Elemente sind für industrielle Fertigung und montagefreundliche Prozesse konzipiert. Entwickelt wird BetaPort von einem interdisziplinären Team an der Schnittstelle von Architektur, Baupraxis und Produktdenken. Urban Beta wurde im Jahr 2021 als Start-up gegründet; im selben Jahr entstand mit BetaPort One der erste Prototyp. Konkrete Anwendungen finden seither unter anderem im Büro- und Schulbau statt, auch erste Wohnungsbauten sind in Planung. Hier wird BetaPort als serielles Gebäudesystem eingesetzt, das abschnittsweise realisiert, erweitert oder angepasst werden kann, ohne die grundlegende Konstruktion zu verändern.

Zusammenfassung

System: BetaPort  
Studio: Urban Beta  
Prinzip: systembasierter Holzbau  
Status: seit 2021 in Entwicklung und prototypisch erprobt  

Weitere Informationen unter: betaport.systems 

Das Innenausbausystem ENDO ist selbsterklärend und kann von Laien aufgebaut werden, sodass Nutzergruppen partizipativ eingebunden werden können. © ADAPTER e.V.
ENDO basiert auf vorgefertigten Holzpaneelen, die mittels zum Patent angemeldeter Verbinder gefügt werden. Vorgebohrte Löcher ermöglichen die individuelle Aneignung für die Möblierung und Ausstattung mittels Stecksystem. © ADAPTER e.V.
Ein einfacher Akkuschrauber reicht aus, um das System zu fügen oder die Verbindung beim Rückbau wieder zu lösen. © Diana Tajeda
Die Paneele bestehen aus wenigen Bauteilen, die zu Rahmen zusammengeschraubt werden. Mehrere Rahmen lassen sich zu unterschiedlich großen Modulen verbinden. © ADAPTER e.V.
Während einer nutzungsfreien Phase wurden 660 qm in einer Gewerbehalle im Neckarspinnerei Quartier (NQ) temporär mit frei im Raum platzierten Modulen des wiederverwendbaren Paneelsystems zu Wohnraum für neun Personen umgebaut. © ADAPTER e.V.
Gemeinschaftsflächen für Kochen, Essen und Aufenthalten können zwischen den Individualmodulen platziert werden. © Vuk Kokot
Ein als Badezimmer ausgestattetes Modul beherbergt die sanitären Einrichtungen. © Vuk Kokot

ENDO – reversibles Innenausbausystem für Wohnmodule

Der Verein Adapter e. V. entwickelt Konzepte zur temporären Nutzung von Bestandsgebäuden für Wohnzwecke. In diesem Kontext entstand das reversible Innenausbausystem Endo, das für den zeitlich begrenzten Umbau leer stehender Büroflächen und Produktionshallen konzipiert ist. Ziel ist es, Wohnnutzungen zu ermöglichen, ohne dauerhaft in die bauliche Substanz einzugreifen. ENDO basiert auf vorgefertigten Holzpaneelen, die über ein zum Patent angemeldetes Stecksystem reversibel verbunden werden. Die frei konfigurierbaren Raum-in-Raum-Module gliedern große Flächen und bilden akustisch sowie thermisch getrennte Einheiten. Technische Installationen sind integriert, der konstruktive Aufbau ist auf geringes Eigengewicht und gute Schalldämmung ausgelegt. Die reduzierte Anzahl an Paneeltypen ermöglicht flexible Anwendungen bei gleichzeitig niedrigen Produktionskosten. Nach Ende der Nutzung kann das System vollständig demontiert und an anderer Stelle neu aufgebaut werden. Ein erstes Modellprojekt wurde 2024 im Neckarspinnerei Quartier in Wendlingen umgesetzt. Derzeit werden weitere Bürostandorte gesucht, um mit ENDO dringend benötigten bezahlbaren Wohnraum zu schaffen.

Zusammenfassung

System: ENDO / Innenausbau  
Studio: Adapter e. V.  
System: Raum-in-Raum-Module mit Stecksystem  
Status: auf dem Markt und zum Patent angemeldet  
Auszeichnung: Red Dot Winner 2025  

Weitere Informationen unter: adapter-stuttgart.de

Der modulare Anbau erweitertet den Bestand mit minimalen Eingriffen in die Gebäudestruktur. Die industriellen Gewächshausfassade dockt nur an wenigen Punkten an das Bestandsgebäude an. © Tobias Schrammek
Innerhalb der Gewächshaushülle, die die Holzkonstruktion vor der Witterung schützt, ergeben sich zwei Klimazonen: gedämmte und beheizbare Bereiche, die thermisch durch Wände und transparente Innenfassaden abgetrennt sind, sowie Bereiche, die nur von der Wintergartenfassade umschlossen sind und als vielseitig nutzbarer thermischer Puffer dienen. © Tobias Schrammek
Im Sommer lassen großzügige Öffnungen die Pufferzone zum Teil des Gartens werden und sorgen für eine intensive Querlüftung, die das Aufheizen verhindert. ©Ruben Beilby
Das offene dreidimensionales Raumgitter ermöglicht individuelle und sich ändernde Nutzungsszenarien innerhalb der Ausbaustruktur, die eine geringe bis hohe Nutzungsdichte zulassen. © Supertype Group
Der Wandaufbau besteht aus verschraubten Holzbauteilen und diffussionsoffenen Materialien und ermöglicht so in Verbindung mit einer hinterlüfteten Ebene den Verzicht auf Dichtungsfolien und verklebte Bestandteile. © Supertype Group
Grundriss EG mit unterschiedlichen Öffnungsgraden zum Freiraum © Supertype Group
Grundriss 2. OG mit gedämmten und ungedämmten Aufenthaltsbereichen innerhalb der Wintergartenhülle © Supertype Group

Wintergartenprinzip – Gewächshaussystem

Das Wintergartenhausprinzip der Supertype Group basiert auf einem prototypisch entwickelten Bausystem, das innerhalb einer schützenden Gewächshaushülle unterschiedliche Nutzungsszenarien ermöglicht. Es folgt dem Prinzip von Grundstruktur und Ausbau und ist auf Anpassbarkeit ausgelegt. Eine filigrane Primärstruktur aus Holz bildet ein offenes räumliches Gerüst, das mit verschiedenen Füllelementen wie Holzrahmenwänden, Holzbalkendecken oder transparenten Innenfassaden ergänzt werden kann. Die Treppen sind so konzipiert, dass sie durch Hinzufügen oder Entfernen von Stufen an veränderte Konfigurationen angepasst werden können. Die Gewächshausfassade schützt die Holzkonstruktion vor Witterungseinflüssen und schafft zwei Klimazonen. Zum Einsatz kommen überwiegend nachwachsende, wiederverwendbare oder recyclingfähige Materialien. Alle Bauteile sind zerstörungsfrei demontier- oder austauschbar. Das System wurde erstmals als Anbau an ein Gründerzeithaus erprobt und ist auf eine Anwendung in weiteren Projekten ausgelegt. 

Zusammenfassung

System: Wintergartenprinzip  
Studio: Supertype Group (Max Becker, Pia Brückner, Tobias Schrammek)  
Prinzip: Elemente aus dem Gewächshausbau, Structure & Infill  
Status: vom Prototyp auf den Weg zum System

Die Kerschensteiner Grundschule ist Teil des Dortmunder Schulbaupakets 4 mit zwei neuen Modulschulen und wurde von Saint-Gobain Brüggemann Holzbau mit werk.um architekten sowie bauart, HKM und EPB-Plan realisiert. Im Erdgeschoss liegen Aula, Mensa mit Cook-and-Chill-Küche, Bibliothek und Betreuungsräume, in den Obergeschossen Lerncluster und Verwaltung. Ein zentraler, über alle Geschosse geführter Lichthof sorgt für Belichtung und Belüftung. ©Thomas Ott, www.o2t.de
Die Realisierung der Kerschensteiner Grundschule in Holzmodul- und Elementbauweise ging mit einem hohen Vorfertigungsgrad im Werk und entsprechend kurzen Montagezeiten auf der Baustelle einher. Die Raummodule wurden inklusive technischer Ausstattung, fertiger Wand- und Deckenoberflächen, Fenstern sowie Fassadenelementen angeliefert und vor Ort zusammengesetzt. ©Thomas Ott, www.o2t.de
Im Eifelkreis Bitburg-Prüm entstand eine mobile „Wanderschule“ in Holzmodulbauweise. Das an den Passivhausstandard angelehnte Gebäude in für rund 800 Gymnasiast:innen wird nach einer Nutzung von ca. vier Jahren demontiert und in jeweils kleineren Einheiten an voraussichtlich vier anderen Standorten als dauerhafte Erweiterungen wieder aufgebaut. ©Thomas Ott, www.o2t.de
Infoskizze des modularen Aufbaus des Interimsgebäudes für das Regino-Gymnasium in Prüm, einem demontierbaren und wiederverwendbaren Holzmodulbaus. Eine Teilung des Ursprungsbaus ist an beliebiger Stelle möglich, daraus ergeben sich verschiedene neue Kompositionsvarianten. ©werk.um
Für das Interims-Ersatzgebäude kamen 266 Raummodule mit ergänzenden Holzelementen im Bereich der Flure und Treppenhäuser sowie bei Bodenplatte und Dach zum Einsatz. Alle Module entsprechen den gleichen statischen Anforderungen, egal ob EG oder OG, sodass ein Einbau an jeder Stelle möglich ist. Modulverbindungen über vormontierte „Holzdollen“ gewährleisten eine schnelle Montage und Demontage. ©Blitzwerk Fotoart&Design
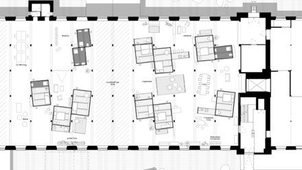
Das Raumprogramm umfasst 36 Unterrichtsräume plus Fachräume, Kunsträume, Bibliothek und Verwaltung. Es wurde als eine offene Lernlandschaft mit Aufenthaltsfluren umgesetzt © Thomas Ott, www.o2t.de
Ein 60 qm-Klassenraum besteht aus drei 20 qm-Modulen: einem Modul mit Schrankzone für Lüftungstechnik, Regale und Fächer, einem zweiten Modul mit Anschlüssen für digitale Tafeln und Tür sowie einem Mittelmodul. Für größere Räume werden weitere Mittelmodule angeordnet. © Thomas Ott, www.o2t.de

Werk.um – Modulbaukasten für „Wanderschulen“

Seit 2010 konzipieren Werk.um Architekten insbesondere im Bildungsbereich Gebäude in vorgefertigter und demontierbarer Holzbauweise. Ausgangspunkt war ein Interimsbau für eine Schule in Ober-Ramstadt, der während einer Sanierung zusätzlichen Raumbedarf deckte und als „Wanderschule“ inzwischen mehrfach an neuen Orten wieder aufgebaut wurde. In den vergangenen 15 Jahren folgten zahlreiche weitere Projekte. Das Darmstädter Architekturbüro ermittelt anhand eines eigens entwickelten Tools und nach individuellen Vorgaben der Bauherren den passenden Vorfertigungsgrad – Elementbau, Modulbau oder ein Mix aus beidem. Oft wird parallel ein Modulbaukasten erarbeitet, mit dem Kommunen über einen Rahmenvertrag mehrere Schulen ausschreiben können. Beauftragte Unternehmen übernehmen die konstruktive Ausgestaltung, es gilt aber vorgegebene Leitdetails einzuhalten. Alle von Werk.um geplanten Systembauten sind in hohem Maß flexibel, um sich wechselnden Gegebenheiten bei einer „Remontage“ problemlos anzupassen. Die ca. 20 qm großen Raummodule lassen sich statisch im EG wie auch im OG anwenden, als Klassenzimmer oder offene Lernlandschaft. Über die Firma Mobispace können von Werk.um entwickelte Module auch angemietet werden. Auch hier basiert das System auf einem Baukasten, der hinsichtlich unterschiedlicher Bauvorschriften deutschlandweit funktioniert. Gemeinsam mit einem erfahrenen Holzbauunternehmen als Produzent ist damit eine ebenso hohe Flexibilität wie Ausführungsqualität gewährt. 

Zusammenfassung

System: „Wanderschulen“ oder Mietmodule  
Studio: werk.um architekten u. a. mit Mobispace  
Prinzip: demontier- und wiederverwendbare Raummodule  
Status: seit mehreren Jahren im Einsatz, bewährt und stetig weiterentwickelt  

Weitere Informationen unter:
werkum.de
mobispace.de

Bettina Sigmund

Spezialistin für Architekturkommunikation München

Bettina Sigmund ist Spezialistin für Architekturkommunikation. Sie ist Inhaberin von „aboutarchitecture“ und Partnerin der „ARGE Kommunikation“. Ihre Tätigkeit umfasst Redaktion, PR und strategische Beratung für alle Akteure der Baubranche.

Person mit lockigem Haar hält ein großes Blatt mit technischen Zeichnungen oder Plänen vor sich.
Mann in blauem Hemd hält zwei Papprollen und steht in einem Büro mit Computer und Kleidung im Hintergrund.
Person mit weißem Schutzhelm und orangefarbener Warnweste hält ein Tablet in einer Baustellenumgebung mit Gerüst im Hintergrund.

Bauen Sie Ihre
Zukunft – jetzt
Stellen entdecken

Das könnte Sie auch interessieren

Außenansicht: Zweigeschossiger, heller Mauerwerksbau in Dämmerung; schmale Fenster mit warmem Licht, gepflasterter Vorplatz und Wildblumen; an der Fassade steht „Verband für ländliche Entwicklung“.

Aus Ziegel und Lehm

Bei einem Verwaltungsgebäude in Tirschenreuth kombinierten Brückner & Brückner Architekten Holz-Lehm-Massivdecken mit einer monolithischen Ziegelbauweise. Der kleine Bau basiert auf einem Lowtech-Konzept und liefert ein weiteres Beispiel, wie einfaches Bauen aussehen kann.

Bautechnik Bundesweit
19.02.2026
Eingangsfassade der Kindertagesstätte in Holzbauweise; über der Tür steht „Kindertagesstätte Burg Wichtelstein“, begrüntes Dach sichtbar.

Kindertagesstätte Burg Wichtelstein

Die Kita Burg Wichtelstein in Neumarkt in der Oberpfalz setzt auf einen geschlossenen regionalen Holzkreislauf: vom städtischen Wald bis zum fertigen Gebäude. Auf maximal 30 km Entfernung.

Projekte Bundesweit
24.02.2026
Architekturmodell: Flacher, holzfarbener Baukörper mit quadratischen Öffnungen kragt über weißem Sockel; umlaufend Wege und kleine Modellbäume.

Die Logik der Fügung

Rückbaubarkeit als Nebeneffekt: Beim Neubau der Salzburg AG in Seekirchen führte das Streben nach Klimaaktiv Gold zu sortenreinen Lösungen, ohne dass dies zum Dogma erhoben wurde.

Bautechnik Bundesweit
06.02.2026
Mann mit dunklem Hemd und beiger Hose steht vor einer Glasfront mit Blick auf Garten und Bäume.
Geschwungene Holzstruktur mit parallelen Linien, die eine organische, fließende Form bilden.
Freitreppe mit grasbedeckten Seitenflächen vor einem modernen, geschwungenen Gebäude mit weißer Fassade und dunklem Unterbau.
Blick über eine große, gepflasterte Fläche auf ein modernes Gebäude mit schrägen Stützen und Glasfassade, im Hintergrund Stadtgebäude und Bäume.

Neues Wissen,
smarte Projekte und
inspirierende Ideen

Entdecken Sie die Welt der Architektur – 
jetzt im exklusiven Newsletter!

Bitte gültige E-Mail-Adresse eingeben. Bestätigung der Datenschutzerklärung ist erforderlich.