
Südlich von Berlin baute Peter Grundmann auf einem seit den 1960ern unbebauten Grundstück ein Haus, das sich um den Baumbestand herumschlängelt. Aufgeständert, schont es die Wurzeln und versiegelt den Boden nicht.
-
Dieser Beitrag ist unter dem Titel „Gelebte Transparenz“ im Deutschen Architektenblatt 09.2023 erschienen.
Diese drei Wohnhäuser mit offenen Raum- oder Fassadenkonzepten stellen wir vor:
- Peter Grundmann am Mellensee: um die Bäume herum gebaut
- Sigurd Larsen in der Uckermark: transparenter Dachstuhl
- Aretz Dürr im Bergischen Land: offenes Erdgeschoss, großes Dach
<<< Jump Mark: grundmann >>>
Peter Grundmann am Mellensee: um die Bäume herum gebaut
Eine Fläche von 1.000 Quadratmetern, seit Jahrzehnten nicht betreten, darauf mehr als 60 Bäume – das war für den Berliner Architekten Peter Grundmann der Ausgangspunkt der Planungen für ein Einfamilienhaus am Mellensee, etwa 50 Kilometer südlich von Berlin. Kein Baum sollte weichen müssen, das stand von Anfang an fest. Also entwarf er ein Haus, das sich zwischen den Bäumen und um sie herum entwickelt. Um die Wurzeln zu schonen und den Boden möglichst wenig zu versiegeln, ließ der Architekt den eingeschossigen Baukörper mit 1,20 Meter hohen Doppel-T-Trägern aufständern. „An zwei Stellen sind wir auf Wurzeln gestoßen. Dort haben wir die Fundamente innerhalb der Linie des Holzbalkens der Bodenplatte verschoben“, erzählt Grundmann.

Zwischenwände oder Türen gibt es in dem „Baumhaus“ nicht, einzelne Schränke fungieren als Raumteiler.
-
Wohnhaus ohne Zwischenwände und Türen
Wo die Bäume ihnen Platz ließen, verteilen sich die Raumsequenzen um einen quadratischen Patio. Verbunden durch mal weite, mal schmale Gänge formen die Flächen eine mehr als 140 Quadratmeter große Einheit. Zwischenwände oder -türen gibt es nicht, einzelne Schränke fungieren als Raumteiler. Holzdecke, Stützen, Stahlträger und der leicht geschliffene, versiegelte Estrich bleiben sichtbar. Mit der offenen Grundriss- und Innenraumgestaltung korrespondiert die raumhohe Fassade aus Dreifachverglasung. Ein Geländer gibt es nicht. Also musste als Absturzsicherung Sicherheitsglas verwendet werden. Von außen wirkt das nun als Einbruchschutz.
Pragmatische Lösungen mit Glas
„Aus Kostengründen haben wir auf Schiebetüren verzichtet und stattdessen zweiflügelige und zahlreiche einflügelige Türen gesetzt, insgesamt 15“, erklärt der Architekt. Im WC und im Hauswirtschaftsraum dient Milchglas als Sichtschutz. Ansonsten sind alle Glaswände durchsichtig. An drei Seiten, wo Gehölze Aussparungen im vorwiegend eckigen Grundriss erforderten, ließ der Architekt Fassadenrundungen aus schmalen Glassegmenten formen. Sie sind von innen mit Kiefernleisten und von außen mit Aluminiumblech verklebt. „Wir waren nicht ganz sicher, ob das ästhetisch mit viel teureren runden Scheiben konkurrieren kann. Aber es funktioniert tatsächlich“, schmunzelt Grundmann.

Wo Gehölze Aussparungen erforderten, ließ Architekt Peter Grundmann Fassadenrundungen aus schmalen Glassegmenten formen, um Kosten zu sparen.
-
Nachhaltig bauen mit Glas?
Dank der Glasfassade verschwimmen die Grenzen zwischen Wohnraum und Natur. Zugleich entstehen direkte Sichtbeziehungen zwischen den unterschiedlichen Bereichen des Hauses, das trägt zu dem Gefühl von Weite und Großzügigkeit bei. Architekt und Bauherren haben jedoch auch aus Nachhaltigkeitsgründen auf das Baumaterial Glas gesetzt. Das mag zunächst erstaunen, doch die Vorteile, die Peter Grundmann aufzählt, überzeugen:
„Es ist viel dünner als eine herkömmliche Wand: zum Beispiel 52 Millimeter Glas gegen 365 Millimeter Ziegelsteine. Und es ist zu 100 Prozent recycelbar, sehr langlebig und besitzt als Dreifachverglasung mittlerweile auch einen sehr guten Wärmewert.“ Sonnenschutz gibt es im Haus am Mellensee nirgends. Im Sommer sorgen die Bäume für Schatten, im Winter kann viel solare Energie ins Haus gelangen. Das ist Teil des energetischen Konzepts, neben der Luft-Wärmepumpe, die als Heizung und Lüftung dient.
<<< Jump Mark: larsen >>>

Sigurd Larsens Haus in der Uckermark punktet mit einer etwas anderen Art von „Wintergarten“.
-
Sigurd Larsen in der Uckermark: transparenter Dachstuhl
Die nahezu unbegrenzte Öffnung des Hauses zur Umgebung, die Peter Grundmann am Mellensee zelebriert, ist natürlich nicht an jedem Standort möglich – und auch nicht von jedem Bauherrn gewünscht. Der ebenfalls in Berlin ansässige dänische Architekt Sigurd Larsen hat deshalb für ein zweigeschossiges Ferienhaus in der Uckermark einen anderen Ansatz gewählt. Im Erdgeschoss des schlichten Baukörpers reihen sich auf einer Fläche von knapp 120 Quadratmetern ein großzügiger unabgeschlossener Wohnraum, zwei Schlafzimmer und ein Bad entlang der Westfassade aneinander.
Grundriss wie ein Bungalow
Auf den ersten Blick gleicht der Grundriss dem eines klassischen Bungalows. Das Besondere sind die bodentiefen Panoramafenster und Glastüren, die die gesamte Westfassade des Hauses bilden. Sie ermöglichen ungehinderte Ausblicke in die Weite der Landschaft und zugleich von allen Räumen einen direkten Zugang zur vorgelagerten überdachten Terrasse und zum Garten. Gebäude und Landschaft verschmelzen nicht nur optisch, sondern auch physisch. „Der Garten wird damit Teil des Hauses“, erläutert Sigurd Larsen.
Geradlinig trifft auf geschwungen
Im Osten hingegen schafft eine unverputzte weiße Mauer Privatsphäre zur Straße hin. Sie begrenzt an ihrer Stirnseite einen Fahrzeugstellplatz und bildet an der südöstlichen Gebäudeecke mit einem schwungvollen Bogen einen kleinen Hof, einen windgeschützten Sitzplatz in der Morgensonne. „Die schweren, großformatigen Betonsteine der Wände stehen in deutlichem Kontrast zu der Leichtigkeit des Glases. Die Rundungen der gewölbten Außenwand lockern die ansonsten sehr geradlinige Architektur auf. Zugleich entsteht durch die Verzahnung der Steine eine interessante Geometrie“, erklärt der Architekt die Materialität.
Wintergarten unterm Dach
Der Clou des Gebäudes ist jedoch das Obergeschoss, ein 70 Quadratmeter großer unzonierter Raum mit einem transparenten Satteldach. Die Westflanke des hölzernen Dachstuhls ist komplett verglast und erlaubt Einblicke und Aussichten. Auf der Ostseite schirmen Polycarbonatplatten unerwünschte Blicke ab, lassen jedoch Licht durch. „Wenn die Sonne über das Dach wandert, entsteht ein spektakuläres Spiel aus Licht, Schatten und wechselnden Farben“, schwärmt der Architekt.

Die Gartenseite lässt sich komplett öffnen. Zur Straße schirmt eine gebogene Mauer die Räume ab.
-
Nutzung verändert sich mit den Jahreszeiten
Er hat den ungedämmten und vollständig abgeschlossenen Raum wie einen in seiner Heimat Dänemark besonders beliebten Wintergarten (auf Dänisch „udestue“ = Außenwohnzimmer) konzipiert, um die Outdoor-Saison zu verlängern: „Im Frühling und Herbst können Sie ihn als integrierten Teil des Hauses mit viel Tageslicht nutzen. Im Sommer ist der Garten der bevorzugte Ort, im Winter ziehen Sie sich in den warmen, gedämmten Teil Ihres Hauses zurück. Man bewegt sich durch das Haus und nutzt es so, wie es zu den verschiedenen Jahres- und Tageszeiten möglich ist.“
<<< Jump Mark: aretzduerr >>>

Der einsehbare Wohnraum des Hauses im nordrhein-westfälischen Nümbrecht ist eine einladende Geste. Stehen die großen Schiebetüren offen, gehen die Nachbarn auch mal durchs Haus.
-
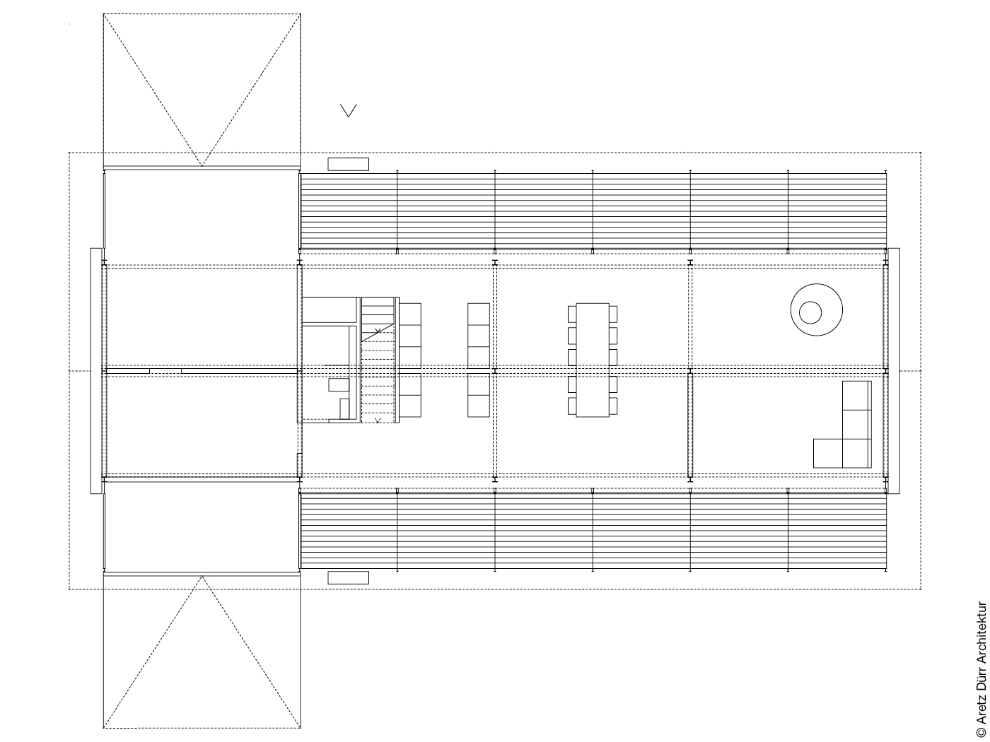
Aretz Dürr im Bergischen Land: offenes Erdgeschoss, großes Dach
Die Privatheit, die Sigurd Larsen durch die Gestaltung der Ostseite des Gebäudes geschaffen hat, hat das Büro Aretz Dürr aus Köln im Haus D im Oberbergischen Kreis durch die Verteilung der Räume erreicht. Auch hier ist das Erdgeschoss für ein Wohnhaus ungewohnt einsehbar: Großformatige Glasschiebetüren öffnen das Gebäude nach Osten und Westen zu längsseitig vorgelagerten Veranden. Schlafräume und Bäder befinden sich im Obergeschoss.
Nachbarn nehmen Abkürzung durchs Haus
Die Räume im Erdgeschoss nehmen die gesamte Breite des Hauses ein und sind nach ihren Funktionen angeordnet: Garage und Abstellräume liegen im Norden, der voll verglaste Wohnbereich im Süden. Das wird von den Nachbarn tatsächlich nicht nur als visuelle Einladung interpretiert, wie Jakob Dürr berichtet: „Es gibt zwar im Gebäude textile Fassadenmarkisen, doch in aller Regel stehen die Türen offen. Die Nachbarn nehmen dann schon mal die Abkürzung durchs Haus.“ Er erklärt: „Diese extreme Offenheit ist nur möglich, weil ein sehr reger Dorfverbund herrscht.“
Wie im Lehrbuch: im Sommer Schatten, im Winter Sonne
Das Giebeldach ragt an beiden Seiten über die riesigen Glasfronten. Der so vor Regen geschützte Außenraum ist damit besser nutzbar. „Die Vordächer kragen genau so weit aus, dass die Sonne im Sommer draußen bleibt und im Winter ins Gebäude gelangen kann“, erklärt Sven Aretz.
Estrich mit Kühlfunktion und als Speichermasse
Der schwimmende Estrich heizt sich so im Sommer nicht auf. Er wirkt sogar kühlend, weil die Fußbodenheizung über die Sole-Wärmepumpe mit kaltem Wasser durchspült wird. Im Winter hingegen gelangt die solare Energie durch die großflächige Zweifachverglasung ins Gebäude und aktiviert den Estrich als Massenspeicher. So wird die ergänzende Fußbodenheizung an sonnigen Wintertagen oft nicht benötigt.
Transparenz als energetisches Thema
Entsprechend war Transparenz für die Architekten gar nicht in erster Linie ein gestalterisches Thema, sondern hat sich aus der Funktion entwickelt, wie sie berichten. Diese Vorgehensweise setzt sich im Obergeschoss fort. „Das verzinkte Wellblechprofildach ist auf einer doppelten Holzkonstruktion befestigt und sehr gut hinterlüftet. Als industrielles Produkt ist es vergleichsweise kostengünstig und bringt keine zusätzliche Speichermasse auf das Gebäude“, sagt Sven Aretz. Die Dachhaut begünstigt damit den sommerlichen Wärmeschutz.
Wenig Material, reversibel gefügt
Der Eindruck von Leichtigkeit und Offenheit wird durch die Stahl- und Holzskelettbauweise unterstützt. Auch die schlanke, durchgehend reversibel gefügte Konstruktion ist vorrangig funktionalen Überlegungen geschuldet. „Unser Konzept von Nachhaltigkeit heißt, so wenig Material wie möglich zu verbauen. Erst der zweite Blick gilt dann der Auswahl des konkreten Materials“, erklärt Jakob Dürr.
Zur Nachhaltigkeit gehört für ihn und seinen Partner auch, die Bauteile funktional gut anzuordnen, sodass man weniger bewegliche Teile braucht, und im Ausbau möglichst wenige Oberflächen zu verdecken. Bei allen Unterschieden in der Umsetzung – im Kern sind es genau diese Nachhaltigkeitsgedanken, die allen drei Glashäusern gemeinsam sind.

Im Erdgeschoss liegen nur der große Wohnraum und die Garage.
-
Weitere Beiträge zum Thema finden Sie in unserem Schwerpunkt Offen


