Deutsches Architektenblatt Logodab-logo
Finden Sie genau die Themen,
die Sie interessieren

Die beliebtesten Themen:

Deutsches Architektenblatt Logodab-logo Deutsches Architektenblatt Logodab-logo-description

Anerkannt in Brandenburg: Zirkuläres Bauen im Bestand

Zwei Anerkennungen im Brandenburgischen Baukulturpreis zeigen, wie ressourcenschonender Weiterbau gelingt – ein Feldsteinhaus und eine verbreiterte Stabbogenbrücke.

Brandenburgische Architektenkammer
17.02.2026 6min
Frontansicht Feldsteinhaus Uckermark: Zweigeschossiger Bau mit rotem Ziegeldach, Arkaden im Erdgeschoss; Pflasterhof und sandiger Vorplatz.
Anerkennung Brandenburgischer Baukulturpreis 2025: Westfassade Feldsteinhaus Uckermark, Architektur: Katharina Löser (Löser Lott Architekten) und Daniel Groß © Katharina Löser und Daniel Groß

Zum Schwerpunktthema „Kreislaufwirtschaft – In Kreisläufen denken, nachhaltiger bauen“ stellt die Architektenkammer Brandenburg zwei Projekte vor, die im Rahmen des Brandenburgischen Baukulturpreises 2025 mit Anerkennungen ausgezeichnet wurden. Beide zeigen auf unterschiedliche Weise, welches Potenzial in der Weiterverwendung und intelligenten Transformation bestehender Bausubstanz steckt. 

1. Vom verfallenen Kuhstall zum Wohnhaus: Das Feldsteinhaus Uckermark 

Nicht jeder Stall in Brandenburg ist ein Denkmal und dennoch steckt in den meisten viel Potenzial für eine nachhaltige und respektvolle Weiternutzung. Das Wohngebäude „Feldsteinhaus Uckermark“ (Gerswalde) entstand aus der Überformung eines halb verfallenen Kuhstalls. Der verbliebene Feldsteinbestand der Außenmauern wurde durch recycelte Ziegel steinsichtig ergänzt. Dabei wurde bewusst vermieden, den sich ergebenden irregulären Materialmix der Außenhülle – insbesondere an den Giebelseiten – zu verbergen. 

Selbstbewusst inszenieren die Architektinnen und Architekten das Bruchstückhafte des partiellen Wiederaufbaus. Das große Oberlicht auf dem First des neu errichteten Dachs macht neugierig auf das Innere. Hier zeigt sich das überraschend moderne Gesicht des Gebäudes. Ein zentraler, tragender Betonkern im Erdgeschoss erschließt und organisiert zusammen mit der abgesetzten Holzfachwerkkonstruktion des Obergeschosses den neu interpretierten Innenraum. 
Ein zeitgemäßer Wärmeschutz wurde durch eine Innendämmung der Massivbauteile zusammen mit der hochgedämmten Dachkonstruktion erreicht. Flächenheizungen in Wand- und Bodenbereichen schaffen eine großzügige und ungestörte Optik der Innenoberflächen. Durch die funktionale Trennung von Alt und Neu konnten Zwangspunkte und etwaige statisch erforderliche Verbindungen zwischen dem restaurierten Feldsteinbestand und der Neukonstruktion vermieden werden. 

Würdigung der Jury 

Die Jury bezeichnete das Objekt als „Kleinod der Bauerhaltung“, denn die Eigentümer haben sich der herausfordernden Planungsaufgabe aus eigenem Antrieb gestellt und sie gemeinsam mit ihren Architektinnen und Architekten respektvoll und kreativ gelöst. Im Sinne der Wettbewerbsauslobung würdigt die Jury die Idee einer Umnutzung zur Bestandserhaltung des nicht denkmalgeschützten, aber landschaftsprägenden Baus, die gelungene Kombination von Bestand und modernen Zutaten sowie die geschickte Konstruktion und den nachhaltigen Materialeinsatz bei der Rekonstruktion der Gebäudehülle.

Langer Flur im Feldsteinhaus: Sichtbetonwände und dunkelgraue Stahlträger, rechts bogenförmige Holzfenster, hinten offene Küche; Bank und bunter Teppichläufer.
Anerkennung Brandenburgischer Baukulturpreis 2025: Innenansicht Feldsteinhaus Uckermark, Architektur: Katharina Löser (Löser Lott Architekten) und Daniel Groß © Katharina Löser und Daniel Groß
Giebel einer Ziegel‑ und Feldsteinscheune mit rundem Fenster und großer Toröffnung; wild bewachsener Vordergrund, Nachbargebäude im Hintergrund.
Anerkennung Brandenburgischer Baukulturpreis 2025: Nordfassade Feldsteinhaus Uckermark, Architektur: Katharina Löser (Löser Lott Architekten) und Daniel Groß © Katharina Löser und Daniel Groß
Wohnbereich: Niedrige Ecksofa‑Landschaft vor einem schlichten Kamin; große Rundbogenöffnungen zum Garten; Sichtbeton und Stahlträger.
Anerkennung Brandenburgischer Baukulturpreis 2025: Innenansicht Feldsteinhaus Uckermark, Architektur: Katharina Löser (Löser Lott Architekten) und Daniel Groß © Katharina Löser und Daniel Groß
Blick unter das Dach: Dunkles Stahltragwerk mit Diagonalen, Durchblick in einen warm roséfarbenen Raum mit Sessel und Fenster.
Anerkennung Brandenburgischer Baukulturpreis 2025: Innenansicht Feldsteinhaus Uckermark, Architektur: Katharina Löser (Löser Lott Architekten) und Daniel Groß © Katharina Löser und Daniel Groß
Nordfassade: Feldsteingiebel mit Backsteineinfassungen; oben kleines quadratisches Öffnungsfeld, unten langes Panoramafenster.
Anerkennung Brandenburgischer Baukulturpreis 2025: Südfassade Feldsteinhaus Uckermark, Architektur: Katharina Löser (Löser Lott Architekten) und Daniel Groß © Katharina Löser und Daniel Groß
Architektonischer Querschnitt eines giebelständigen Hauses: Tragwerk und Räume in Rot, Mauerwerk in Grau; Galerie unter Satteldach sichtbar.
Anerkennung Brandenburgischer Baukulturpreis 2025: Schnitt Feldsteinhaus Uckermark, Architektur: Katharina Löser (Löser Lott Architekten) und Daniel Groß © Katharina Löser und Daniel Groß
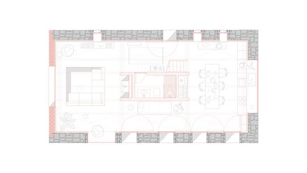
Grundriss Erdgeschoss: Offener Wohn‑, Ess‑ und Kochbereich; zentraler Servicekern mit Treppe; Fensterachsen in den Feldsteinwänden markiert.
Anerkennung Brandenburgischer Baukulturpreis 2025: Grundriss EG Feldsteinhaus Uckermark, Architektur: Katharina Löser (Löser Lott Architekten) und Daniel Groß © Katharina Löser und Daniel Groß
Grundriss Obergeschoss: Zwei Zimmer und Nebenräume um einen mittigen Flur mit Treppe; Stützenraster und Außenwände aus Feldstein verzeichnet.
Anerkennung Brandenburgischer Baukulturpreis 2025: Grundriss OG Feldsteinhaus Uckermark, Architektur: Katharina Löser (Löser Lott Architekten) und Daniel Groß © Katharina Löser und Daniel Groß

Projektteam – Feldsteinhaus Uckermark

Anerkennung im Rahmen des Brandenburgischen Baukulturpreises 2025 
Kategorie: Ländliches Bauen im Bestand 
Ort: 17268, Gerswalde (Uckermark, Brandenburg) 
Architektur: Katharina Löser (Löser Lott Architekten) und Daniel Groß, Berlin 
Bauherr: privat 
Fotografien: Katharina Löser und Daniel Groß

2. Ressourcenschonender Weiterbau statt Abriss: Die Kuhdammbrücke Wustermark 

Weit mehr als erwartet und durchaus erfreulich hat sich das Güterverkehrszentrum Wustermark in den letzten Jahren entwickelt. Doch dass die erst 2015 errichtete Kuhdammbrücke über den Havelkanal dem rasch zunehmenden Lkw-Verkehr schon bald nicht mehr genügen würde – damit hatte man nicht gerechnet. Die Stabbogenbrücke war ursprünglich lediglich für eine Spur mit 4,50 m Breite ausgelegt. Nun war eine zweispurige Brücke mit einer Fahrbahnbreite von 8,00 m unausweichlich geworden. 

Die übliche Antwort wäre ein Ersatzneubau gewesen. Nach intensiven Variantenstudien entschied sich die Gemeinde Wustermark stattdessen für eine zunächst als nicht realisierbar erscheinende Lösung: Die 78 m lange Fahrbahnkonstruktion wurde in der Mitte aufgetrennt und um einen 3,50 m breiten Hohlkasten erweitert. Ergänzend verstärkten die Ingenieure die nun höher beanspruchten Bögen durch aufgeschweißte Laschen. 

Eine sorgfältige Planung des komplexen und mit zahlreichen Herausforderungen verbundenen Bauablaufs sicherte in enger Kooperation aller Projektbeteiligten die erfolgreiche Umsetzung. Nahezu vollständig ließ sich die vorhandene Bausubstanz weiterverwenden; lediglich 160 t Stahl und 520 cbm Beton für die Verbreiterung der Uferpfeiler kamen hinzu. Der Verzicht auf einen Neubau senkte nicht nur den Ressourcenverbrauch radikal, sondern erwies sich auch als die preiswerteste Variante. 

Würdigung der Jury 

Die Kuhdammbrücke demonstriert eindrücklich, wie sich das Konzept nachhaltigen Weiterbauens auch im Bereich des Brückenbaus und der Infrastruktur umsetzen lässt. Die Jury des Brandenburgischen Baukulturpreises 2025 würdigt diesen gleichermaßen mutigen wie engagierten Ansatz einer neuen, nachhaltigen Infrastrukturentwicklung mit einem Sonderpreis.
 

Luftaufnahme: Eine im Bau befindliche Stahlbogenbrücke steht auf provisorischen Stützen am Fluss. Das Fahrbahndeck ist noch offen; nebenan stehen Baucontainer, Bagger und Kräne. Im Hintergrund liegen Felder, Baumreihen und mehrere Windräder.
Anerkennung Brandenburgischer Baukulturpreis 2025: Kuhdammbrücke in Wustermark, Planung: VIC Planen und Beraten GmbH © VIC Planen und Beraten GmbH
Weite Luftaufnahme eines Kanals mit Baustelle: neue Stahlbogenbrücke entsteht über dem Wasser; Kräne, Widerlager und Baustraßen sichtbar, umgeben von Feldern und Gewerbeflächen.
Anerkennung Brandenburgischer Baukulturpreis 2025: Kuhdammbrücke in Wustermark, Planung: VIC Planen und Beraten GmbH © VIC Planen und Beraten GmbH
Blick über die unfertige Brücke: zwei hohe Stahlbögen und Geländer, mittig ein offener rostiger Träger; Betonränder ohne Belag, schräge Montage-Streben verbinden Bogen und Deck.
Anerkennung Brandenburgischer Baukulturpreis 2025: Kuhdammbrücke in Wustermark, Planung: VIC Planen und Beraten GmbH © VIC Planen und Beraten GmbH
Kuhdammbrücke nach Fertigstellung: Schlanke Stahlbogenbrücke über dem Kanal; Uferweg und Vegetation im Vordergrund, klarer Himmel.
Anerkennung Brandenburgischer Baukulturpreis 2025: Kuhdammbrücke in Wustermark, Planung: VIC Planen und Beraten GmbH © VIC Planen und Beraten GmbH
Kuhdammbrücke, Bauphase bei Sonnenuntergang: Stahlbogenbrücke über einem Kanal, Geräte und Ponton unter der Brücke.
Anerkennung Brandenburgischer Baukulturpreis 2025: Kuhdammbrücke in Wustermark, Planung: VIC Planen und Beraten GmbH © VIC Planen und Beraten GmbH
Brückenbau: Gelb‑orange Stahlfahrbahnplatte, mobile Arbeitsbühnen an den Stahlbögen; Monteure arbeiten an der Konstruktion.
Anerkennung Brandenburgischer Baukulturpreis 2025: Kuhdammbrücke in Wustermark, Planung: VIC Planen und Beraten GmbH © VIC Planen und Beraten GmbH

Projektteam – Umbau der Kuhdammbrücke

Anerkennung im Rahmen des Brandenburgischen Baukulturpreises 2025 
Kategorie: Ländliches Bauen im Bestand 
Ort: Kuhdammweg, 14641 Wustermark 
Generalplanung: VIC Planen und Beraten GmbH, Potsdam 
Prüfingenieur: Dr.-Ing. Andreas Arnold, Brandenburg an der Havel 
Projektsteuerung: IPG Infrastruktur- und Projektentwicklungsgesellschaft mbH, Potsdam 
Bauherrin: Gemeinde Wustermark 
Fotografien: VIC Planen und Beraten GmbH 

Beide Projekte zeigen eindrucksvoll, welches Potenzial im Weiterbauen besteht – im ländlichen Wohnungsbestand ebenso wie in der Infrastruktur. Statt Abriss und Neukonstruktion setzen sie auf die qualitätsvolle Transformation vorhandener Strukturen. Durch den respektvollen Umgang mit Materialien, die intelligente konstruktive Weiterentwicklung und die sorgfältige Planung entstehen Lösungen, die sowohl gestalterisch als auch ökologisch überzeugen. Das Feldsteinhaus Uckermark und der Umbau der Kuhdammbrücke verdeutlichen, dass Kreislaufwirtschaft im Bauwesen nicht nur möglich, sondern ein zukunftsweisender Weg ist, um Landschaft, Ressourcen und Identität zu bewahren.

Mehr Informationen über den Preis: https://www.ak-brandenburg.de/baukultur/brandenburgischer-baukulturpreis/2025 

Brandenburgische Architektenkammer

Team Presse- und Öffentlichkeitsarbeit
Person mit lockigem Haar hält ein großes Blatt mit technischen Zeichnungen oder Plänen vor sich.
Mann in blauem Hemd hält zwei Papprollen und steht in einem Büro mit Computer und Kleidung im Hintergrund.
Person mit weißem Schutzhelm und orangefarbener Warnweste hält ein Tablet in einer Baustellenumgebung mit Gerüst im Hintergrund.

Bauen Sie Ihre
Zukunft – jetzt
Stellen entdecken

Das könnte Sie auch interessieren

Handwerker mit Schutzbrille und Handschuhen arbeitet mit einem Bohrhammer am Türdurchbruch in einem Innenraum.

Ein KI-Werkzeug für das zirkuläre Bauen

Im Bauwesen klafft häufig eine Wissenslücke. Sie zeigt sich dort, wo ambitionierte Leitbilder auf regulatorische Anforderungen und konkrete Projektentscheidungen treffen. An dieser Stelle setzt der KI-Chatbot des Circular Construction Hub der IBA’27 an.

Bautechnik Bundesweit
10.02.2026
 Ausstellungstisch mit beschrifteten Tafeln und Materialproben: Ziegelstein, massiver Holzblock, Kachel‑ und Textilproben sowie ein Metallbeschlag; hinten Gläser mit Erdproben.

Circle – Hub für Urban Mining

Dass der Idee der Kreislaufwirtschaft im Baubereich die Zukunft gehört, besser gesagt, gehören sollte, dürfte bei den meisten Beteiligten common sense sein. Nicht das „Dass“, sondern das „Wie“ der Umsetzung ist die oft noch ungelöste Aufgabe.

Nachhaltigkeit Bundesweit
25.02.2026
Große Straßenbrücke im Bauzustand über einen Fluss; ein Brückensegment ist abgesenkt, Baumaschinen arbeiten im Wasser und am Ufer, im Hintergrund sind historische Gebäude, Grünflächen und eine Stadtansicht zu sehen.

Infrastruktur: Das System, das alles zusammenhält.

Infrastrukturen gelten oft als Hintergrundrauschen des Alltags: Sie sind oft unsichtbar, werden als selbstverständlich hingenommen und sind erst im Störfall mit voller Wucht erfahrbar. Gleichzeitig prägen sie Städte und Landschaften über Generationen hinweg. 

Berufspolitik Bundesweit
22.12.2025
Mann mit dunklem Hemd und beiger Hose steht vor einer Glasfront mit Blick auf Garten und Bäume.
Geschwungene Holzstruktur mit parallelen Linien, die eine organische, fließende Form bilden.
Freitreppe mit grasbedeckten Seitenflächen vor einem modernen, geschwungenen Gebäude mit weißer Fassade und dunklem Unterbau.
Blick über eine große, gepflasterte Fläche auf ein modernes Gebäude mit schrägen Stützen und Glasfassade, im Hintergrund Stadtgebäude und Bäume.

Neues Wissen,
smarte Projekte und
inspirierende Ideen

Entdecken Sie die Welt der Architektur – 
jetzt im exklusiven Newsletter!

Bitte gültige E-Mail-Adresse eingeben. Bestätigung der Datenschutzerklärung ist erforderlich.