Deutsches Architektenblatt Logodab-logo
Finden Sie genau die Themen,
die Sie interessieren

Die beliebtesten Themen:

Deutsches Architektenblatt Logodab-logo Deutsches Architektenblatt Logodab-logo-description

Aus Ziegel und Lehm

Bei einem Verwaltungsgebäude in Tirschenreuth kombinierten Brückner & Brückner Architekten Holz-Lehm-Massivdecken mit einer monolithischen Ziegelbauweise. Der kleine Bau basiert auf einem Lowtech-Konzept und liefert ein weiteres Beispiel, wie einfaches Bauen aussehen kann.

Alexander Russ
19.02.2026 5min
Außenansicht: Zweigeschossiger, heller Mauerwerksbau in Dämmerung; schmale Fenster mit warmem Licht, gepflasterter Vorplatz und Wildblumen; an der Fassade steht „Verband für ländliche Entwicklung“.
Außenansicht des Gebäudes vom Verband für Ländliche Entwicklung Oberpfalz © Brückner & Brückner Architekten, Tirschenreuth/Würzburg

Es tut sich was in der Architektur: Der Gebäudetyp E und die dazugehörigen Pilotprojekte zeigen gerade, wie man einfach und experimentell bauen kann. Beide Zuschreibungen treffen auch auf ein Verwaltungsgebäude in Tirschenreuth zu. Zwar handelt es sich hier nicht um ein Gebäudetyp-E-Projekt. Allerdings bietet der Bau von Brückner & Brückner Architekten interessante neue Ansätze aufgrund seiner Verbindung von monolithischem Ziegelmauerwerk mit Holz-Lehm-Massivdecken. „Eine grundlegende Idee für das Gebäude war es, die historische Baukultur der nördlichen Oberpfalz aufzugreifen. Deshalb haben wir uns für ein regionales Material wie Ziegel entschieden. Außerdem wollten wir mit Firmen zusammenarbeiten, die vor Ort tätig sind“, erzählt Peter Brückner von Brückner & Brückner Architekten.

Lichtdurchflutetes Atrium mit großem Oberlicht; helle Holzbrüstungen, breiter Treppenlauf und ein Baum im Pflanzkübel; mehrere Personen im Foyer.
Zentrales Atrium in der Visualisierung … © Brückner & Brückner Architekten, Tirschenreuth/Würzburg
Foyer mit niedriger Empfangstheke, hellen Ziegelpfeilern, großen Fenstern und Rasterdecke mit schwarzen Downlights; dunkler Boden.
… und in der Fertigstellung. © Brückner & Brückner Architekten, Tirschenreuth/Würzburg
Foyer: Helles Treppenhaus mit weißem Ziegelmauerwerk, breiter Treppenbrüstung, Galerie im Obergeschoss, grauer Tür und dunklem Boden.
© Brückner & Brückner Architekten, Tirschenreuth/Würzburg
Blick entlang eines breiten Treppenlaufs zur Galerie mit Holzbrüstung; Rasterdecke mit sichtbaren Balken und Spotleuchten.
© Brückner & Brückner Architekten, Tirschenreuth/Würzburg
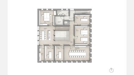
Grundriss eines Bürogeschosses: zentrales Atrium/Galerie, umliegende Büros, Besprechungs- und Sozialraum; Türen, Möblierung und Nordpfeil eingezeichnet.
Grundriss © Brückner & Brückner Architekten, Tirschenreuth/Würzburg

Bauherr ist der Verband für Ländliche Entwicklung (VLE) Oberpfalz. Dessen Aufgaben bestehen unter anderem in Dorferneuerungen oder der Umstrukturierung landwirtschaftlicher Flächen. Dazu arbeitet der Verband auch mit dem Amt für Ländliche Entwicklung, einer staatlichen Behörde, zusammen. Beide Institutionen sind nun direkte Nachbarn. „Die beiden Gebäude befinden sich auf dem ehemaligen Bahnhofsareal von Tirschenreuth, für das die Stadt einen städtebaulichen Rahmenplan entwickelt hat. Sowohl der Verband als auch das Amt hatten ihren Sitz zuvor in Regensburg, konnten aber durch eine Ämterverlagerung auf Grundstücken nebeneinander platziert werden“, erläutert Peter Brückner. 

Während es sich beim Amt für Ländliche Entwicklung um einen Holzbau aus dem Jahr 2013 mit prägnant roter Lattenfassade aus der Feder von SHL Architekten und Stadtplaner handelt, übt sich der gerade fertiggestellte und deutlich kleinere Bau von Brückner & Brückner Architekten in Zurückhaltung und Einfachheit. Dabei handelt es sich um einen etwa 19 × 19 m großen, zweigeschossigen Kubus. Die einzelnen Büros bieten Platz für 15 Arbeitsplätze und sind u-förmig um ein Atrium angeordnet. Als Erschließung dienen eine einläufige Treppe und ein umlaufender Flur. Ein zentrales Oberlicht versorgt das Innere mit Tageslicht und beleuchtet das prägnante Mauerwerk der Innenwände.

Detail Wandaufbau: gestufte, gerillte Ziegel hinter weiß verputzter Außenfassade auf Betonsockel; daneben Kiesbett.
Wandaufbau Außenwand mit Anschluss Innenwand aus Kaltziegel in der Bemusterung © Brückner & Brückner Architekten, Tirschenreuth/Würzburg
Detail: Weiß gestrichene Ziegelwand mit feinen vertikalen Rillen; links eine Fensterlaibung mit dunklem Rahmen und außenliegender, horizontal gerillter Fassade.
Wandaufbau nach der Fertigstellung © Brückner & Brückner Architekten, Tirschenreuth/Würzburg
Nahaufnahme der Empfangstheke aus hellem Holz vor weißer Ziegelwand; darüber Rasterdecke mit schwarzen Zylinderleuchten.
© Brückner & Brückner Architekten, Tirschenreuth/Würzburg

Zum Einsatz kamen sogenannte Kaltziegel, die hell geschlämmt sind. Sie wurden aus rezykliertem Ziegelschleifstaub gefertigt und anschließend ohne zusätzlichen Energieverbrauch luftgetrocknet. Die Verwendung der haptischen Ziegel hat auch akustische Gründe, wie Peter Brückner erklärt: „Es ist ein großer Vorteil, wenn man keine glatt geputzten Wände hat, sondern eine geriffelte Oberfläche.“ Bei den Außenwänden entschied man sich für 49 cm starke, mit Nadelholzfasern gefüllte Ziegel, die verputzt wurden. Zwischendecke und Dach bestehen aus Holz-Lehm-Massivdecken. Lediglich das Erdgeschoss weist eine konventionelle Bodenplatte und Fundamente aus Beton auf.  

„Der Bau ist kompakt und schlicht gehalten, was wirtschaftliche Spannweiten und Dimensionen im Hinblick auf Decken und Ziegelwände ermöglichte“, sagt Peter Brückner. „Die Idee der Einfachheit betrifft aber nicht nur die Raumstruktur, sondern zum Beispiel auch die Haustechnik. In den Wänden haben wir etwa auf Schlitze für die Installationen verzichtet. Das Ganze ist stattdessen in den Decken, Fußböden und den Türrahmen untergebracht. Außerdem gibt es keine Verschattungselemente an den Fenstern. Das konnten wir zum einen durch eine entsprechende Fensterdimensionierung und zum anderen durch die hohe thermische Masse der Bauteile erreichen.“ Deshalb braucht es im Gebäude keine aktive Kühlung mit entsprechender Haustechnik. Stattdessen sorgt das Oberlicht in der Mitte für eine natürliche Durchlüftung. Wichtig war den Architektinnen und Architekten Flexibilität und eine gewisse Rückbaubarkeit, weshalb einige Trennwände zwischen den Büros mit Lehmplatten beplankt sind. Gleiches gilt für den Ziegelestrich als Bodenbelag und die Holz-Lehm-Massivdecken.

Innenaufnahme Rohbau: Rote Ziegelwände und -stützen, Decke mit Holzträgern; zwei Bauarbeiter zwischen Werkzeugen und Leiter, Tageslicht fällt durch offene Bereiche.
50 cm starke Ziegel-Außenwände werden mit Kaltziegeln, hergestellt aus wiederverwertetem Ziegelbruch, kombiniert. © Brückner & Brückner Architekten, Tirschenreuth/Würzburg
Ziegelwand im Rohbau; ein diagonaler Sonnenstrahl fällt vom Dachfenster über die Oberfläche.
© Leipfinger-Bader
Rohbau-Innenraum aus roten Ziegeln mit Stützen und Öffnungen; Leiter und Werkzeuge, Decke mit sichtbaren Holzträgern.
Die Holz-Lehm Massivdecke vereint die hohe Masse und Nicht-Brennbarkeit von Massivdecken mit dem natürlichen Raumgefühl von Holzdecken. © Leipfinger-Bader

Besonders Letztere haben einen gewissen Pioniercharakter. Die Konstruktion ist an historische Staken-, Wickel- und Einschubdecken angelehnt, die man aus Fachwerkhäusern oder Gründerzeitbauten kennt. Sie dienten als Vorbild für ein Studentenprojekt von Julian Trummer an der TU München, der mittlerweile in der Entwicklungsabteilung des Baustoffherstellers Leipfinger-Bader arbeitet. Die zum Produkt gereifte Konstruktion konnte in Tirschenreuth zum ersten Mal umgesetzt werden. Dabei handelt es sich um eine Tragstruktur aus Holz, in die ein speziell entwickeltes Massivlehmgemisch mit einer Rohdichte von 2.200 kg/cbm gegossen wird. Die Holzelemente wurden manuell zusammengefügt, mit Lehm vergossen, an der freien Luft getrocknet und anschließend als Fertigteile auf die Baustelle geliefert. Der Einbau erfolgte vor Ort durch die Rohbaufirma. 

Dabei gab es vorab einige Punkte zu klären, wie Peter Brückner erzählt: „Trotz der experimentellen Bauweise durften die Holz-Lehm-Massivdecken nicht mehr kosten als eine konventionelle Konstruktion. Außerdem mussten verschiedene logistische Vorgaben gelöst werden.“ So galt es zum Beispiel sicherzustellen, dass der in die Holzschalung gegossene Lehm sich beim Transport zur Baustelle nicht rausrüttelt. Außerdem mussten die Decken, ähnlich wie bei einer Holzkonstruktion, beim Einbau vor Feuchtigkeit geschützt werden. Dass alles geklappt hat, liegt laut Brückner auch am Zusammenspiel der am Bau beteiligten Akteure. „Am Ende muss beides zusammenkommen: ein Bauherr, der sich auf unkonventionelle Lösungen einlässt, und ein Bauunternehmen, das solche Lösungen anbietet und tatsächlich umsetzen kann. Das war ein absoluter Glücksfall – und den braucht es, damit man ein solches Projekt gelingt.“

Alexander Russ

Freier Journalist München

Alexander Russ ist freier Journalist und lebt in München. Er hat in verschiedenen Architekturbüros gearbeitet und war Redakteur bei Baumeister und Topos. Neben Architekturkritiken schreibt er unter anderem über Stadtplanung, Landschaftsarchitektur und Mobilitätsthemen.

Person mit lockigem Haar hält ein großes Blatt mit technischen Zeichnungen oder Plänen vor sich.
Mann in blauem Hemd hält zwei Papprollen und steht in einem Büro mit Computer und Kleidung im Hintergrund.
Person mit weißem Schutzhelm und orangefarbener Warnweste hält ein Tablet in einer Baustellenumgebung mit Gerüst im Hintergrund.

Bauen Sie Ihre
Zukunft – jetzt
Stellen entdecken

Das könnte Sie auch interessieren

Vom Leerstand zum Lehrort: Die „Schwemme“ in Halle (Saale)

Die über 300 Jahre alte Schwemme-Brauerei in Halle (Saale) wird von bürgerschaftlich Engagierten denkmalgerecht saniert und mit neuen Nutzungsideen nachhaltig wiederbelebt.

Projekte Sachsen-Anhalt
09.03.2026
Frontansicht eines viergeschossigen Holzbaus mit grüner Fassade: durchgehende Balkone mit Netzgeländern hinter Holzstützen; mehrere Personen auf den Laubengängen, Bäume davor.

Gebäude 37

Kein Keller, kein Aufzug, Holzbau nach GEG: Gebäude 37 in Bremen zeigt, wie gezielte Vereinfachung und kluge Quartiersplanung wirtschaftlichen Wohnungsbau ermöglichen.

Projekte Bremen
15.05.2026
Mock-up einer zirkulären Konstruktion.

Wer zirkulär bauen will, muss anders entwerfen

Wir tun im Bauen gerne so, als sei Zirkularität ein nettes Extra. Ein bisschen mehr Recycling, ein paar zusätzliche Zertifikatspunkte und schon fühlt sich das Projekt zukunftsfähig an. Tatsächlich läuft das System Bauwesen aber weiter linear: erst entwerfen, dann ausschreiben, dann bauen und am Ende entsorgen. Genau deshalb bleibt die Wiederverwendung tragender Bauteile häufig das, was sie heute ist: ein Pilotprojekt mit guter Story statt gelebter Entwurfsroutine.

Bautechnik Bundesweit
12.02.2026
Mann mit dunklem Hemd und beiger Hose steht vor einer Glasfront mit Blick auf Garten und Bäume.
Geschwungene Holzstruktur mit parallelen Linien, die eine organische, fließende Form bilden.
Freitreppe mit grasbedeckten Seitenflächen vor einem modernen, geschwungenen Gebäude mit weißer Fassade und dunklem Unterbau.
Blick über eine große, gepflasterte Fläche auf ein modernes Gebäude mit schrägen Stützen und Glasfassade, im Hintergrund Stadtgebäude und Bäume.

Neues Wissen,
smarte Projekte und
inspirierende Ideen

Entdecken Sie die Welt der Architektur – 
jetzt im exklusiven Newsletter!

Bitte gültige E-Mail-Adresse eingeben. Bestätigung der Datenschutzerklärung ist erforderlich.