Deutsches Architektenblatt Logodab-logo
Finden Sie genau die Themen,
die Sie interessieren

Die beliebtesten Themen:

Deutsches Architektenblatt Logodab-logo Deutsches Architektenblatt Logodab-logo-description

Zirkuläre Wohnhäuser aus Holz in Frankfurt und Bremen

Sortenrein trennbar, wenig Haustechnik und sparsam bei der Wohnfläche: zwei innovative Projekte zeigen, wie nachhaltig Neubauten sein können.

 

Christoph Gunßer
29.04.2025 9min

Dieser Beitrag ist unter dem Titel „Konstruktive und soziale Pioniere“ im Deutschen Architektenblatt 05.2025 erschienen.

Suffizient leben: Baugruppe in Frankfurt

Plötzlich poppt es auf, das neue Haus, das DGJ Architektur an der Friedberger Landstraße in Frankfurt am Main für eine Gruppe experimentierfreudiger Menschen errichtet hat. Es soll ein „Nukleus“ im Nordendviertel werden, sagt Projektleiter Frederik Ehling. Da darf es zwischen den vielen Schlichtbauten ruhig auffallen.

Wer die Straße entlanggeht, sieht erst mal nur recht neutrales Milchglas – die Lärm, Schmutz und Vandalismus abwehrende, aus industriellem Profilglas gefertigte Fassade des Projekts, die rückgebaut werden kann. Dahinter aber verbirgt sich eine bunt gefärbte Dämmung, ein Kaleidoskop der im Viertel vorgefundenen Hausfarben, das erst erstrahlt, wenn der Betrachter direkt vor dem Haus steht. Ebenso eigen wie die „ortsübliche Farbgebung“ interpretierten die Planer eine weitere Vorgabe der Behörden: Ein „Satteldach“ hat das Haus nur in Form aufgeständerter PV-Module.

Hinter der pastellenen Fassade des Neubaus der Frankfurter Gruppe „Gemeinsam suffizient leben“ (Bildmitte) steckt ein extrem sparsamer Holzskelettbau. © Thilo Ross

Erbpacht und lebenslanges Nutzungsrecht

Doch Innovation war aufseiten der Stadt durchaus gewollt. Das 312 Quadratmeter kleine Grundstück vergab der städtische Liegenschaftsfonds 2017 im Konzeptverfahren. Die Gruppe „Gemeinsam suffizient leben“, heute bestehend aus 15 Erwachsenen und zehn Kindern zwischen einem und 73 Jahren, bewarb sich mit einem in langen Sitzungen unter Anleitung der Architekten entwickelten Konzept – und bekam den ehemaligen Parkplatz schließlich in Erbpacht übertragen.

Genau genommen firmiert die etablierte Wohnbaugenossenschaft in Frankfurt am Main eG (WBG) als Bauherrin und Hausbesitzerin, denn die Stadt schrieb auch die Eigentumsform der Erbpacht vor. Die WBG wiederum gewährt den Gruppenmitgliedern ein lebenslanges Nutzungsrecht.

Auch die Wohnräume sind nur 3 Meter breit, dafür aber von beiden Seiten belichtet. © Thilo Ross

Holzbau mit engem Raster

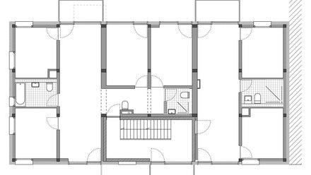
Suffizient, genügsam wurde das vierstöckige Gebäude erstens durch seine Bauweise: Es ist, vom massiven Treppenhaus abgesehen, ein filigraner Holzskelettbau ohne tragende Wände. Er basiert auf dem ausgeklügelten Holz-Bausystem, das das Architektenteam um DGJ-Chef Hans Drexler in einem Forschungsprojekt entwickelt und in ähnlicher Weise bereits in seinem viel beachteten Heidelberger Wohnhei (vorgestellt bereits hier) angewandt hatte. Wie dort optimiert ein etwa drei mal drei Meter messendes Raster die Prozesse der Produktion und die Fügung der Bauteile.

Zimmermannsmäßige Holzverbindungen

Die in digitaler Vorfertigung erstellten, zimmermannsmäßigen Holzverbindungen machen metallische Verbindungen in der Primärkonstruktion überflüssig. Die Räume werden durch die Skelettkonstruktion flexibel teilbar. So können im Gebäude Grundrisse von der Kleinstwohnung bis hin zur Cluster-Wohnung umgesetzt werden. Die Fassade kam fertig mitsamt Fenstern auf die Baustelle, auch die Bäder sind Fertigmodule. Das Gebäude wurde mit BIM realisiert.

27 Quadratmeter pro Person sind genug

Zweitens zwackten die Planer in den Grundrissen wirklich jeden unnötigen Quadratmeter ab: Die meisten der momentan neun Wohnungen kommen ohne Flur aus. Bodentiefe Fenster und vorgehängte Balkone weiten die schmal geschnittenen Zimmer. Über 27,8 Quadratmeter verfügt jede Person im Durchschnitt, 20 weniger als im Bundesschnitt. Und auch als Ganzes holt das nur gut neun Meter tiefe Haus mit einer Geschossflächenzahl von 2,38 aus der Situation alles heraus.

Carsharing-Station am Haus

Als Ausgleich für die Enge gibt es im Dachgeschoss ein zusätzliches Gästezimmer und im Erdgeschoss eine 32 Quadratmeter große Gemeinschaftsküche. Diese teilt sich die Hausgemeinschaft mit der geplanten Hebammen-Praxis. Eine quartiersdienliche soziale Nutzung war hier als Teil des Konzeptverfahrens gesetzt. Am Haus gibt es eine Carsharing-Station und eine Bushaltestelle, mit der man sich sogar das Vordach teilt.

Die farbige Dämmung, die durch eine Schicht Industrieglas scheint, bezieht sich auf häufige Anstriche in dem Frankfurter Viertel. So wurde die Vorgabe der "ortsüblichen Farbgebung" auf originelle Weise erfüllt. © Thilo Ross
Das Innere zeigt sich in der Form straff organisiert, in der Farbgebung mal gelb,... © Thilo Ross
... und mal grün. © Thilo Ross
Der Grundriss (Regelgeschoss) erlaubt ein Durchwohnen im Drei-Meter-Raster. © DGJ Architektur GmbH

Bauteile sortenrein trennbar

Das Gebäude, dessen Bruttobaukosten in der Kostengruppe 3 und 4 gut 3.700 Euro pro Quadratmeter Bruttogrundfläche betrugen, insgesamt 4,6 Millionen Euro, erfüllt mit Wärmepumpe und dezentraler kontrollierter Lüftung samt Wärmerückgewinnung den KfW-40-plus-Standard. Seine Substanz ist sortenrein rezyklierbar. Was zur Zeit der Baugenehmigung vor acht Jahren in Hessen noch eine Sondergenehmigung brauchte, wie die sichtbaren Holzdecken (mit schwerer Schüttung), ist heute nach Muster-Holzbau-Richtlinie Standard. Leider hüllt sich das Holzskelett aus Brandschutzgründen ansonsten fast überall in Gipskarton.

Die letzten 20 Prozent sind schwierig

Bei aller Auffälligkeit tritt das Haus im Sinne der Suffizienz bescheiden auf; es trägt seinen Öko-Charakter nicht demonstrativ zur Schau, etwa mit einer Holzfassade. Ginge es denn noch nachhaltiger? Da beruft sich Büropartner Frederik Ehling, der das Projekt vor neun Jahren mit Mitte zwanzig übernommen und durch alle Leistungsphasen betreut hat, auf das Pareto-Prinzip: „Die ersten 80 Prozent sind die entscheidenden und gut umsetzbar, aber die letzten Meter sind richtig anstrengend.“

Das viele Glas und die Mineralwolle mögen in der Herstellung energieintensiv sein, aber: „Die Masse des Materials geht in die Konstruktion“, und die sei wirklich nachhaltig. Dazu wurde bei den Details auf Rückbaubarkeit geachtet. „Wenn diese 80 Prozent in der Breite erreicht würden, stünden wir als Gesellschaft gut da“, ist Frederik Ehling überzeugt.

18,50 Euro kalt pro Quadratmeter

Seit November 2023 ist das Haus bewohnt. Von einer behindertengerechten Sozialwohnung abgesehen, beträgt das Nutzungsentgelt 18,50 Euro kalt pro Quadratmeter. Das ist aufgrund der schwierigen Bausituation im angesagten Nordend nicht viel.

Fachliche Anerkennung blieb nicht aus: Bereits als Konzept erhielt das Haus den Hessischen Preis für Innovation und Gemeinsinn im Wohnungsbau. Zuletzt stand es auf der Shortlist für den Preis des Deutschen Architekturmuseums. Das Team um Hans Drexler, rund ein Dutzend Mitarbeitende, wird sein filigranes Holzbausystem in weiteren Projekten verwenden.


Ellener Hof: Wohnhaus mit Kita in Bremen

Anders als in Frankfurt ist im ökosozialen Modellquartier Ellener Hof der Holzbau hingegen Standard. Bei der Konversion des zehn Hektar großen ehemaligen Heimgeländes im Osten von Bremen verständigten sich die Planenden auf einen strikten Gestaltungsleitfaden für das „urbane Dorf“.

Damit auch die Kita im zentralen Baufeld in dieser Hinsicht vorbildlich würde, beauftragte die federführende Heimstiftung ZRS Architekten Ingenieure aus Berlin direkt mit der Planung. Das Team um Eike Roswag-Klinge ist ein bekannter Pionier im nachhaltigen Bauen, integriert es doch sämtliche Ingenieurleistungen unter einem Dach. So kommen immer wieder wegweisende Bauten heraus.

Die Kita im Bremer Modellquartier Ellener Hof wurde in zwei Baukörper aufgeteilt. In den Obergeschossen des höheren Baus („Skelle“) liegen Wohnungen. © Caspar Sessler

Tricks für sichtbaren Holzbau

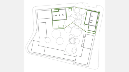
Um den alten Baumbestand zu schonen, teilte man die große Baumasse der siebengruppigen Kita in „Woof“ und „Skelle“ auf: Während Woof als nur zweistöckiges Gebäude die Frühbetreuung sowie ein Elterncafé aufnimmt, wird der Gruppenbau Skelle durch neun Wohnungen in den Obergeschossen zu einem Fünfgeschosser.

Wie der Name andeutet, ist Skelle wie das Frankfurter Beispiel ein Skelettbau und sogar ein fast reiner Holzbau. Innen wie außen ist dies auch sichtbar. Denn: „Wenn ich Holzbau mache, will ich auch Holzbau sehen“, sagt Projektleiterin Monique Bührdel von ZRS. Holzsichtigkeit gehöre für ihr Team stets dazu. Das gelang nur durch frühzeitiges Einbeziehen der Genehmigungsbehörden – und mit einigen Kunstgriffen.

Im niedrigen Haus der Kita liegen die Frühbetreuung sowie ein Elterncafé. © Caspar Sessler
An der Außenhaut beugen Bleche und Leisten dem Brandüberschlag vor. © Caspar Sessler
Die Kita im Modellquartier Ellener Hof ist auf zwei Gebäude verteilt (grün umrandet), damit die alten Bäume dazwischen stehen bleiben konnten. © ZRS Architekten Ingenieure

Holzleisten und Stahlbleche als Brandsperren

So ist das zentrale Treppenhaus in Massivholz ausgeführt worden, allein der Treppenlauf ist aus Beton. Selbst die Balkone bestehen aus Holz. Sämtliche sichtbaren Holzbauteile sind „auf Abbrand“ dimensioniert, wirken aber dennoch nicht schwer. In der aus vorvergrauter Fichte im Nut- und Feder-System geformten Fassade dienen gegeneinander versetzte Holzleisten und Stahlbleche zwischen den Etagen als Brandsperren.

Insgesamt sind die Baukörper erheblich tiefer als in Frankfurt, mit weiter gespannten Decken aus Brettsperrholz (Woof) beziehungsweise Holz-Beton-Verbunddecken, was indes nur aus Kostengründen geschah.

Komplett kreislauffähiges Haus

Auch hier dient die Skelettbauweise der Flexibilität. Verdeckte metallene Hirnholzverbinder fügen die tragenden Brettschichtholzträger und -balken zusammen. Damit wird das gesamte Haus komplett demontabel und kreislauffähig (von der betonierten Bodenplatte abgesehen). Die Konstruktion ist, durchaus untypisch, auf 100 Jahre ausgelegt. Gründächer und Regenversickerung im Gelände komplettieren das tatsächlich maximal ökologische Gesamtbild. Holzbaupreise sowie ein polis-Award waren die Folge.

Die Räume der Kita erstrahlen hell in weißlich lasiertem Holz. © Caspar Sessler

Niedrige Baukosten dank Standardisierung und wenig Haustechnik

Durch Standardisierung, Vorfertigung und weitgehenden Verzicht auf Lüftungstechnik gelang es trotz der verminderten Kompaktheit, das Ensemble für 2.440 Euro brutto pro Quadratmeter Bruttogrundfläche (Kostengruppen 3 und 4) zu errichten; die Gesamtkosten liegen bei acht Millionen Euro. Energiestandard ist KfW 55 für die Kita und KfW 40 für die Wohnungen. Landschaftsplaner des gesamten, vorbildlich verkehrsberuhigten „Dorfes“ war RMP Stephan Lenzen.

Übrigens benötigt die 34 Köpfe zählende Bewohnerschaft hier nur gut 25 Quadratmeter pro Person, also sogar weniger als im suffizienten Frankfurter Beispiel. So setzen in Stadt und Land Holzbauweisen mittlerweile die Standards des nachhaltigen Bauens. Dass sie auch ökonomisch, konzeptionell wie ästhetisch mehr als mithalten können, belegen die zwei Beispiele.

Christoph Gunßer

Freier Fachautor

Christoph Gunßer ist für das DAB vor allem in Süddeutschland unterwegs. Nach Architekturstudien in Hannover, Stuttgart und den USA wurde er erst Redakteur, dann freier Fachautor, der einige Bücher zu wegweisenden Wohnbauten publiziert hat.

Mit Basis in Hohenlohe, wo er für seine Familie ein altes Hospital ausgebaut hat, berichtet er heute vor allem aus dem Süden und der Mitte Deutschlands für das DAB und andere, darunter die Bundesstiftung Baukultur und die KfW. Auch Kritiken und Essays zum Architekturgeschehen schreibt er gern. Am liebsten klappert er aber zu Fuß oder mit dem Fahrrad neue Projekte in Stadt und Land ab.