Dieser Beitrag ist unter dem Titel „Gute Architektur einfordern“ im Deutschen Architektenblatt 06.2025 erschienen.
Mehrgenerationenhaus in München von etal.
„Und jedem Anfang wohnt ein Zauber inne“, schrieb schon Hermann Hesse. Ähnlich dürfte es jungen Architektinnen und Architekten mit ihrem ersten gebauten Projekt gehen. Oft ist damit die Gründung des eigenen Büros verbunden. So auch bei Gesche Bengtsson, Elena Masla und Zora Syren und ihrem inzwischen preisgekrönten Mehrgenerationenhaus im Münchner Stadtteil Ramersdorf-Perlach.

Das unkonventionelle Mehrgenerationenhaus im Münchner Stadtteil Ramersdorf-Perlach ist der erste Neubau des Mietshäuser Syndikats in der Stadt.
Federico Farinatti Fotografie
Sozialer Wohnungsbau mit Clusterwohnungen
Der Bau legte 2021 den Grundstein für ihr Büro „etal.“, was sich aus dem Lateinischen mit „und andere“ übersetzen lässt. Die damit verknüpfte Bürophilosophie eines möglichst kollektiven Entwurfsprozesses findet sich geradezu paradigmatisch in dem sozialen Wohnungsbau in Ramersdorf mit seinen flexiblen und barrierefreien Clusterwohnungen wieder.
Dabei handelt es sich um den ersten Münchner Neubau des Mietshäuser Syndikats, eines bundesweiten Zusammenschlusses aus selbstständigen und selbstverwalteten Hausprojekten. Die einzelnen Wohngebäude sind meist als Verein organisiert, die Bauherren treten als Baugruppe auf.

Der Münchner Holzbau besticht durch einfache Lösungen wie den hölzernen, leicht zu wartenden Sonnenschutz.
Federico Farinatti Fotografie
Nicht nur Planung, sondern auch Moderation
Deshalb nahmen die drei Architektinnen nicht nur die Rolle von Planerinnen ein, sondern auch von Moderatorinnen und Architekturvermittlerinnen. „Eine große Herausforderung zu Beginn des Projekts war, wie wir die Leistungsphase 2 wirtschaftlich gestalten und trotzdem ein belastbares architektonisches Konzept entwickeln. Das war nicht einfach, weil wir unterschiedliche Entwurfsvarianten erstellt haben und diese dann entsprechend kommunizieren mussten. Das kostet viel Zeit und damit schlussendlich Geld“, erzählt Gesche Bengtsson.

Die Wohnräume haben einen Boden aus Zementestrich, holzsichtige Decken und Fenster an den Hausecken.
Federico Farinatti Fotografie
Flexibilität bei der Raumnutzung
Dass sich der Einsatz gelohnt hat, zeigt das Projekt auf beeindruckende Weise: Aus dem gedrungenen Volumen – Ergebnis einer optimalen Grundstücksausnutzung – haben etal. eine im besten Sinne roh anmutende Architektur mit einem Höchstmaß an räumlicher Flexibilität geformt.
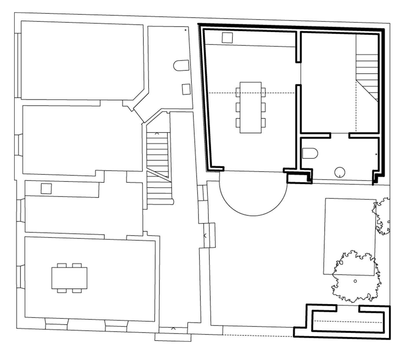
Grundlage war der Wunsch der Bauherren nach möglichst gleich großen Individualräumen. Um das zu erreichen, ordneten die Architektinnen sieben Zimmer um eine Diele und einen Badkern an. Flexible Wasseranschlüsse und die Ausstattung der Wohnungstrennwände mit einem entsprechend hohen Schallschutz sollen die Umstrukturierung und Neubelegung der Räume über mehrere Generationen hinweg gewährleisten.
Der Grundriss bietet ein Höchstmaß an räumlicher Flexibilität. Die Platzierung der ...
etal.
Sollbruchstellen im Grundriss
Wie durchdacht das Konzept ist, zeigen die sogenannten „Sollbruchstellen“ des Holzbaus (blau markiert im Grundriss). Vordefinierte Stürze und Schwellen ermöglichen die Verbindung oder Trennung von Zimmern, wie Elena Masla erläutert: „Wir haben versucht, die Flexibilität ein Stück weit abzubilden, zum Beispiel in Form der sichtbaren Türstürze. Das hat ästhetische und funktionale Gründe, weil spätere Bewohnerinnen und Bewohner potenziell wissen, wo man die Durchbrüche für die Türen machen kann.“
Unkonventionell bauen ist schwierig
Die Architektinnen bezeichnen das Ergebnis als robustes Haus, was sich neben der Struktur auch an den Materialien wie dem sichtbar belassenen Zementestrich als Bodenbelag oder dem hölzernen, leicht zu wartenden Sonnenschutz zeigt.
Allerdings taugen solche Ansätze laut Zora Syren nur bedingt als Zukunftsmodell: „Es ist generell schwierig und zeitaufwendig, unkonventionell zu bauen. Innerhalb des Kostenrahmens, in dem wir das Projekt verwirklicht haben, lässt sich das Prinzip leider noch nicht auf nicht gemeinschaftliche, konventionellere Wohnprojekte übertragen. Hierfür müsste sich die Normenwelt in Deutschland verändern.“
Ferienhaus im Erzgebirge von Florian Voigt
Ähnlich und doch ganz anders verhält es sich mit dem Erstlingswerk von Florian Voigt: Auch hier entwarf der junge Architekt ein Haus für eine generationenübergreifende Bauherrengruppe. Allerdings handelt es sich nicht um einen sozialen Wohnungsbau, sondern um ein Ferienhaus für die eigene Familie in der etwa 150 Einwohner umfassenden Ortschaft Tellerhäuser im Erzgebirge.
„Ich habe einen jüngeren und zwei ältere Brüder. Außerdem gibt es mittlerweile einige Enkelkinder. Das Haus sollte ein gemeinsamer Ort werden, wo sich die ganze Familie treffen kann. Um uns das schmackhaft zu machen, hat mein Vater, der Holzschutz-Sachverständiger für Schlösser und Kirchen ist, das Haus zu einem Gemeinschaftsprojekt gemacht. Mir kam unter anderem die Aufgabe zu, das Ganze zu entwerfen“, erzählt Florian Voigt.

Das ehemalige Satteldach interpretierte Florian Voigt zu einem Kreuzgiebel um.
Hans-Christian Schink
Einstieg in das familiäre Architekturbüro
Der Architekt kommt aus einer Familie von Bauschaffenden: Die Mutter führt gemeinsam mit dem älteren Bruder das Architekturbüro Büro Voigt in Leipzig, das vor allem auf Altbauinstandsetzung spezialisiert ist. Florian Voigt zog es dagegen hinaus in die Welt und vor allem in die Schweiz, wo er für verschiedene Architekturbüros im Neubaubereich arbeitete.
Das Ferienhaus markierte nicht nur die Rückkehr nach Leipzig, sondern nach und nach den Einstieg in das Familienbüro – inklusive der Auseinandersetzung mit einem neuen Themenfeld: dem Arbeiten mit dem Bestand. „Dem Ferienhaus wohnt ein Stück weit die Herangehensweise meines Vaters inne, der Häuser über Schäden und Reparaturen denkt. Auch mein Entwurf wurde von der Konstruktion und vom Handwerk aus gedacht“, reflektiert Florian Voigt.

Der zentrale Giebelraum wird als Gemeinschafts- und Essbereich der Familie genutzt.
Hans-Christian Schink
Holzbau auf altem Mauerwerk
Von dem ehemaligen Bauernhof, der halb in den Hang eingegraben war, konnte er nur das Bruchsteinmauerwerk erhalten. Darüber befindet sich ein neuer, komplett aus Holz gefertigter Gebäudeteil. Eine Betondecke bildet den Übergang zwischen den Geschossen und sichert das Bestandsmauerwerk. Von außen ist das nicht sichtbar: Hier legt sich eine Wetterschale aus Fichte mit Holzfaserdämmung über Alt und Neu.
Holzfassade mit Schlammfarbe aus dem Bergbau
Die prägnante schwarze Holzschalung wurde mit einer Schlammfarbe aus dem Bergbau gestrichen, die früher typisch für die Region war. Das ehemalige Satteldach interpretierte Voigt zu einem Kreuzgiebel um, was im ersten Geschoss einen skulptural und fast schon sakral anmutenden Raum erzeugt. Er dient nun als Gemeinschafts- und Essbereich, an den das Bad, die Schlafzimmer und die Küche andocken.
Die Verkleidung der Räume mit Seekieferplatten erzeugt ein homogenes Erscheinungsbild. Möglich war das einerseits durch die akribische Planung, bei der Voigt seine Erfahrung mit den Schalungen für Sichtbetonhäuser in der Schweiz einbringen konnte.
Auf dem Bruchsteinmauerwerk des alten Bauernhofs setzt eine Holzkonstruktion auf ...
Büro Voigt
Die Entdeckung des Handwerks
Anderseits ermöglichten die lokalen Handwerker eine entsprechende Umsetzung, wie der Architekt erläutert: „Vor Baubeginn sind wir viel herumgefahren, um uns die regionale Architektur anzuschauen. Dadurch haben wir tolle Handwerker gefunden.“ Er ergänzt: „Das Projekt hat definitiv meine Begeisterung für das Umbauen geweckt. Mir ist noch mal klarer geworden, wie wichtig die Beziehung zu den Menschen ist, die unsere Entwürfe verwirklichen. Das hat meinen Blick auf das Handwerk und das, was man als Architektin oder Architekt eigentlich macht, noch mal geschärft.“
Stadtbauernhaus in Ingolstadt der Familie Mühlbauer
Ein Familienprojekt im Bestand ist auch der Erstling der Gebrüder Mühlbauer: der Umbau eines historischen Stadtbauernhauses aus dem 16. Jahrhundert in der Ingolstädter Altstadt. Das historische Zentrum ist so etwas wie die Spielwiese ihres Vaters, Architekt Andreas Josef Mühlbauer. Er hat hier in den letzten Jahrzehnten etwa 50 Häuser saniert – darunter preisgekrönte Projekte wie das sogenannte Rosa Eckhaus aus dem Barock.

Der Umbau des historischen Stadtbauernhauses in der Ingolstädter Altstadt war das erste Projekt der Brüder Mühlbauer.
Ralph Feiner
Alle Zeitschichten des Hauses gleichwertig
Es liegt ganz in der Nähe des Stadtbauernhauses, das der erfahrene Architekt zusammen mit seinen beiden Söhnen Andreas Benedikt und Alexander behutsam in die Gegenwart gebracht hat. Andreas Benedikt Mühlbauer erzählt: „Unser Vater arbeitet sehr ortsspezifisch. Identität und Geschichte sind ihm wahnsinnig wichtig. Das geht uns genauso. Wir begreifen diese Häuser als Zeitmaschinen. Alle Schichten, aus denen sich das Haus zusammensetzt, sind gleichwertig – egal ob es sich um Barock oder die Nachkriegsära handelt.“

Am meisten verwandelt hat sich die Scheune. Eine Betonschale mit handwerklich errichteter Brettschalung sitzt im Inneren vor den Bestandswänden. Die alte Holzdecke wurde erhalten und ausgebessert.
Ralph Feiner
Neue Betonwände innerhalb der alten Mauern
Das transformierte Ensemble umfasst nun drei Wohneinheiten im Haupthaus und eine weitere in der ehemaligen Scheune. Gerade Letztere weist einen Kontrast von alten und neuen Zeitschichten auf, die trotzdem eine homogene Verbindung eingehen.
Die etwa 90 Quadratmeter große Wohnung wird vom Innenhof über ein großes Glastor erschlossen und erstreckt sich über drei Geschosse. Bestehende Außenwände blieben erhalten, wurden aber gedämmt. Davor sitzt eine Betonschale mit handwerklich errichteter Brettschalung. Sie formt den Innenraum und trägt gleichzeitig die neu hinzugekommene Betondecke. Eine geländerlose Betontreppe verknüpft das Erdgeschoss mit dem ersten Obergeschoss, die visuell durch einen großzügigen Luftraum verbunden sind.
„Der Austausch untereinander hat uns allen geholfen, die Perspektive beim Entwurfsprozess zu wechseln und so gute Lösungen zu finden“, meint Alexander Mühlbauer. Als Beispiel nennt er die Ausbildung des Dachraums, die den Übergang zwischen Alt und Neu noch mal klarer definiert. Hier blieb die alte Holzdecke erhalten und wurde, wo nötig, ausgebessert. Darüber legt sich die sichtbar belassene Geometrie des gedämmten und mit Fichtenholz verkleideten Dachstuhls wie eine Holzschatulle um das oberste Geschoss.

Das Erdgeschoss des Ingolstädter Stadtbauernhauses im Grundriss mit der Scheune rechts.
Büro Mühlbauer
Hof ist ein gut durchdachter Außenraum
Auch die Außenräume, die in Zusammenarbeit mit dem Schweizer Landschaftsarchitekten Maurus Schifferli geplant wurden, überzeugen. Der kleine, reduziert gehaltene Innenhof kann von den Bewohnerinnen und Bewohnern nun als gemeinschaftlicher Außenraum genutzt werden. Eine erhöhte Betonplattform dient als Sitzgelegenheit und als ironisches Zitat, das auf den historischen Misthaufen verweist.
Hinzu kommen ein einfacher Kiesbelag und eine Bepflanzung mit Kletterhortensie und Maulbeerbaum. Die Außenmauer mit rotem Holztor wurde um ein plastisch verputztes Müllhäuschen mit prägnantem Satteldach erweitert – laut Andreas Josef Mühlbauer eine Referenz an Aldo Rossi.
Nach langem Leerstand beherbergt das Stadtbauernhaus nun vier Wohnungen, eine davon in der ehemaligen Scheune.
Ralph Feiner
Lernprozess beim Bauen im Bestand
In der Zusammenarbeit mit seinen Söhnen sieht er eine große Bereicherung für die eigene Arbeit: „Mit einem kleinen Projekt bekommt man als junge Architektin oder junger Architekt sehr schnell Erfahrung. Es bleibt einem auch nichts anderes übrig, weil man alles machen muss: vom Entwurf bis zur Bauleitung. Das ist ein steiler Lernprozess“, erläutert er. „Gleichzeitig ist das Projekt erst durch den Input meiner beiden Söhne so gut geworden – nicht nur weil sie gute Ideen einbringen, sondern weil sie diese Ideen einfordern.“


