Deutsches Architektenblatt Logodab-logo Deutsches Architektenblatt Logodab-logo-description

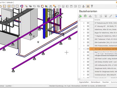
KI-Planungstools: Was können smarte Gebäude- und Grundrissplaner?

Wie funktionieren Programme für Baumassen, Grundrisse oder BIM-Modellierung und woran scheitern sie? Die wichtigsten Tools im Überblick.

 

Büropraxis Bundesweit
04.11.2025

Weitere Artikel
zum Thema

KI im Beruf: Welche Regeln und Standards gelten?

Insbesondere Arbeitgeber haben einigen Pflichten gemäß der KI-Verordnung der EU: etwa zu Schulungen und Transparenz.

 

Recht Bundesweit
24.10.2025

Umfrage: Welche digitalen Tools nutzen Architekturbüros?

Wie viel Prozent arbeiten mit BIM, Rendering-Prgrammen oder 3D-Druck? Sind es eher Selbstständige oder Angestellte, eher kleine oder große Büros?

 

Büropraxis Bundesweit
25.09.2025

Archiv der Zukunft: natürliche Form, digitaler Prozess

Mit dem Archiv der Zukunft in Lichtenfels bringt Architekt Peter Haimerl auf spektakuläre Weise Analoges und Digitales zusammen.

 

Baukultur Bundesweit
30.09.2025

Chaos: neue KI-Visualisierungstools

Die Visualisierungssoftware „Corona 13“ von Chaos enthält ein neues Cel- und Kontur-ShaderProgramm für markantere 3D-Szenen.

 

Büropraxis Bundesweit
01.09.2025
Mann mit dunklem Hemd und beiger Hose steht vor einer Glasfront mit Blick auf Garten und Bäume.
Geschwungene Holzstruktur mit parallelen Linien, die eine organische, fließende Form bilden.
Freitreppe mit grasbedeckten Seitenflächen vor einem modernen, geschwungenen Gebäude mit weißer Fassade und dunklem Unterbau.
Blick über eine große, gepflasterte Fläche auf ein modernes Gebäude mit schrägen Stützen und Glasfassade, im Hintergrund Stadtgebäude und Bäume.

Neues Wissen,
smarte Projekte und
inspirierende Ideen

Entdecken Sie die Welt der Architektur – 
jetzt im exklusiven Newsletter!

Bitte gültige E-Mail-Adresse eingeben. Bestätigung der Datenschutzerklärung ist erforderlich.

Weitere Beiträge

Filter nach:

Avanti: E-Rechnungen verarbeiten

30.05.2025

Compa: Neues Dashboard

30.05.2025

CaliforniaX: neues Prüfungsmodul für E-Rechnungen

30.05.2025

Buildup AVA: Bauteil-Zeitwert ermitteln

30.05.2025

Nova AVA: Optimierte ­Kostenplanung

30.05.2025

Ratgeber für BIM beim Bauen im Bestand

24.04.2025

Elitecad: Vereinfachte Nachhaltigkeits-Nachweise

28.03.2025

Cascados: Volle Kostenkontrolle nach DIN 276

28.03.2025

Archicad 28: Effizienter bei Anmerkungen und Durchbrüchen

28.03.2025

Allplan und Dietrich’s: BIM-Lösungen für den Holzbau

28.03.2025

Person mit lockigem Haar hält ein großes Blatt mit technischen Zeichnungen oder Plänen vor sich.
Mann in blauem Hemd hält zwei Papprollen und steht in einem Büro mit Computer und Kleidung im Hintergrund.
Person mit weißem Schutzhelm und orangefarbener Warnweste hält ein Tablet in einer Baustellenumgebung mit Gerüst im Hintergrund.

Bauen Sie Ihre
Zukunft – jetzt
Stellen entdecken