Dieser Beitrag ist unter dem Titel „Die Freiheit der Zukunft“ im Deutschen Architektenblatt 11.2024 erschienen.
Wohnen technisch schon möglich: Bürohaus in Breisach von Studio Sozia
Dass Lisa Häberle und Valerio Calavetta (Studio Sozia, Karlsruhe) als erstes gemeinsames Projekt ein wandelbares Bürogebäude realisieren würden, war alles andere als geplant. Ursprünglich war die Idee ihrer Bauherrin, mit einem Wohnhaus im Freiburger Umland die eigene Altersversorgung zu sichern.

Erwünschte Nutzungsänderung: Der Büroneubau am Rande eines Gewerbeparks in Breisach am Rhein ist von vornherein so geplant und gebaut, dass er sich gut zum Wohnen umnutzen lässt, wenn Büroflächen nicht mehr gefragt sind und/oder die Gemeinde Wohnen hier zulässt.
Kim Fohmann
Bodenrichtwert für Wohnen zu teuer
„Wir hatten schon davon geträumt, ein Mehrfamilienhaus mit Dachterrasse und Blick in die Weinberge zu bauen, bevor das Grundstück zur Verfügung stand“, erzählt Architektin Lisa Häberle.
Doch als ihre Bauherrin den Bodenrichtwert – circa 1.100 Euro pro Quadratmeter – erfuhr, änderte sie ihre Pläne. In Breisach am Rhein wurde gerade ein Gewerbepark neu ausgeschrieben, mit Grundstückspreisen von circa 85 Euro pro Quadratmeter.
Auf Ausbauebene vom Büro zur Wohnung
Also bat sie Studio Sozia, statt dem Wohnhaus für das dortige Konzeptvergabeverfahren ein Bürogebäude zu entwerfen. „Das war allerdings mitten in der Corona-Zeit, in der alle Bürogebäude leer standen, sodass wir uns fragten, ob ein Bürogebäude langfristig funktionieren kann.“
Zugleich seien sie noch dem Gedanken an ein Wohngebäude verhaftet gewesen. „So entstand die Idee, ein Haus zu konzipieren, das möglichst einfach auf Ausbauebene von der Büro- zur Wohnnutzung umgewandelt werden kann“, erläutert die Architektin.

Wohnen theoretisch möglich: Soltten sich die rechtlichen Voraussetzungen ändern, kann das Großraumbüro in Wohnungen umgebaut werden. Die technischen Voraussetzungen sind jedenfalls schon da.
Kim Fohmann
Erdbebensichere Konstruktion
Entstanden ist ein dreigeschossiger Kubus auf einer nahezu quadratischen Grundfläche von knapp 250 Quadratmetern. Der Standort in der Erdbebenzone II stellte hohe Anforderungen an Gründung und Statik.
Diese löste das Architektenteam unter anderem mit einer geschlossenen, mit Aluminiumtrapezflächen verkleideten Nordwand, einer frei stehenden Wandscheibe im Gebäudezentrum und einer offenen Stützenstruktur im Süden.
Im Nordosten, zum Stadtraum hin, bricht eine außen liegende halbrunde Treppe mit barrierefreiem Fahrstuhl die strenge Geometrie des Baukörpers und ermöglicht die unabhängige Erschließung der einzelnen Etagen.
Grundraster von fünf mal fünf Metern
Im Innern gestattet ein quadratisches Grundraster von fünf mal fünf Metern die flexible Einteilung in gleichwertige Strukturen.
So finden sich heute in den drei Etagen unterschiedlich viele Arbeitsplätze und Büroeinheiten, die mal durch Trennwände, mal durch Sichtschutzelemente voneinander abgegrenzt sind oder auch eine große Einheit bilden. „Für uns war schön, dass wir in den Geschossen mit sehr unterschiedlichen Grundrissen die Vielfalt des Konzeptes zeigen konnten“, beschreibt Lisa Häberle.

Geplanter Wandel: Aus dem heute im zweiten Obergeschoss liegenden Großraumbüro (links) könnten drei Wohnungen werden (rechts).
Studio Sozia
Nebenräume als Fixpunkte bei Umnutzung
Gemeinsam ist allen Etagen eine Nebenraumspange an der Innenseite der Nordwand. Falls die Stadt irgendwann den Flächennutzungsplan ändert und in einem oder beiden Obergeschossen Wohnnutzung gewünscht ist, könnten sich hier Lagerräume befinden.
Konstruktion und Haustechnik auf Wohnnutzung vorbereitet
Wie die Grundrissaufteilung dann aussehen könnte, hat das Studio Sozia nicht nur skizziert, sondern auch konstruktiv vorgesehen. „Im Estrich gibt es Trennfugen, die Serviceleitungen sind an zwei Stellen durch die Geschosse geführt und bei der Leitungsführung der Fußbodenheizung haben wir berücksichtigt, wo künftige Wohnungstrennwände stehen könnten“, erklärt die Architektin.
Die großflächigen Fensterelemente an der West-, Süd- und Ostfassade und vor allem die über die gesamte Gebäudebreite ausgebildeten Südbalkone haben Lisa Häberle und Valerio Calavetta mit Blick auf alternatives Arbeiten, aber eben auch auf eine mögliche spätere Wohnnutzung konzipiert.
Kosten an der Fassade gespart
„Den Mehraufwand, den die Wandelbarkeit in der Planung mit sich brachte, konnten wir durch geringere Kosten in der Fenster-Konstruktion abfangen. Anstelle einer typischen hochpreisigen Pfosten-Riegel-Fassade haben wir beispielsweise eine kostengünstigere Sonderkonstruktion entwickelt, in der die Fenster mit sichtbaren L-Winkeln an den Stützen und Decken montiert sind“, sagt Lisa Häberle.
Balkone teuer aber wertvoll
Besonders die Balkone schlugen bei den Bruttobaukosten von gut 1.700 Euro pro Quadratmeter Bruttogrundfläche (KG 300 + 400) zu Buche. Allerdings dienen sie zugleich als konstruktiver Sonnenschutz und sie erhöhen den Wert in der Vermietung, nicht nur irgendwann für Wohnungen, sondern auch aktuell für Büros.
An anderer Stelle fanden die Bauherrin und das Architektenteam Kompromisslösungen: Nur jedes zweite Fenster ist kippbar, pro Etage gibt es nur zwei Balkontüren. Dank der einfachen Austauschbarkeit der Glaselemente lässt sich das bei Bedarf mit wenig Aufwand ändern.
Mehraufwand statt Nachrüstung: Wohnhaus in Berlin von FAKT
Während in Breisach das Gebäude also fast schon auf die Änderung der Nutzungsart wartet, ist eine solche bei einem vom Berliner Büro FAKT entworfenen Neubau am Rande von Berlin nicht vorgesehen – wohl aber sehr unterschiedliche Wohnnutzungen.
Aufgabe der Architekten war hier, ein Mehrgenerationenhaus zur Eigennutzung zu konzipieren, das später ohne umfangreiche Umbauarbeiten in ein Wohngebäude für bis zu vier Parteien wandelbar ist.

Antizipierter Lebenszyklus: Das Berliner Mehrgenerationenhaus ist so konzipiert, dass es einfach für drei oder vier Parteien aufgeteilt werden kann.
Simon Menges
Maximal zulässiges Gebäude geplant
Architekt Sebastian Kern hatte also die typologische Aufgabe, das Haus bereits in der Planung in verschiedenen Szenarien zu denken – von der Grundrissgestaltung und Erschließung bis zu Gebäudeklasse, Abstandsflächen, technischer Gebäudeausrüstung, Brand- und Schallschutz. „Voraussetzung für die optimale Wandlungsfähigkeit war ein Überangebot an Volumen. Deshalb planten wir das maximal zulässige Vorhaben“, erläutert er.

Auf Augenhöhe: Zueinander verdrehte Splitlevel im Berliner Mehrgenerationenhaus erzeugen in jeder Etage vier verschiedene Raumhöhen.
Simon Menges
Splitlevel und unterschiedliche Raumhöhen
Der kubische Baukörper mit einer Bruttogrundfläche von rund 600 Quadratmetern gliedert sich in drei Vollgeschosse mit nahezu quadratischem Grundriss. Sie sind als Splitlevel konzipiert und um jeweils 90 Grad zueinander verdreht, sodass in jeder Ebene unterschiedliche Raumhöhen entstehen.
Aufzug und Wohnungstüren werden nachgerüstet
Ein zentral angeordnetes Treppenhaus erschließt alle Ebenen der Geschosse bis hinauf zum Flachdach. Die für die derzeitige Nutzung vorhandenen Öffnungen können bei Bedarf geschlossen und Wohnungseingangstüren eingesetzt werden. Im Treppenauge ist die Nachrüstung einer Aufzugsanlage möglich.

So würde sich die Konfiguration mit vier Wohnungen über die Splitlevel berteilen.
FAKT
Brandschutz und Haustechnik für Mehrfamilienhaus vorgehalten
Auch der Brandschutz ist für ein mögliches Mehrfamilienhaus ausgelegt. „So sind beispielsweise die Stahlstützen in der Fassade nicht in F30, sondern in F60 ausgeführt. Die vertikalen Steigleitungen verlaufen in den Ecken des Treppenhauses und können bei Bedarf etagenweise abgeschottet werden.
Auch zwei Trennwände im ersten Obergeschoss, die vielleicht mal Wohnungstrennwände werden, entsprechen den dann geltenden Brandschutzanforderungen. Sogar die Steckdosen sind Brandschutzdosen“, zählt Architekt Sebastian Kern auf.

Typologische Konfigurationsmöglichkeiten im Lebenszyklus des Berliner Wohnhauses: 1: offenes Mehrgenerationenhaus 2: Haus mit vier Parteien 3: WG-Haus mit drei Parteien.
FAKT / DAB
Nachrüstung wäre teurer
Die für die aktuelle Nutzung als Mehrgenerationenhaus nicht erforderlichen Ausstattungen haben zwar höhere Kosten verursacht. Doch zum einen konnten die Bauherren dank umfangreicher Eigenleistungen die Bruttobaukosten auf 1.500 Euro pro Quadratmeter (KG 300 + 400) begrenzen.
Zum anderen wäre eine spätere Nachrüstung auf jeden Fall teurer und aufwendiger. „Die höheren Kosten sind der Preis für die Freiheit der Zukunft“, so das Credo von Bauherren und Architekten.
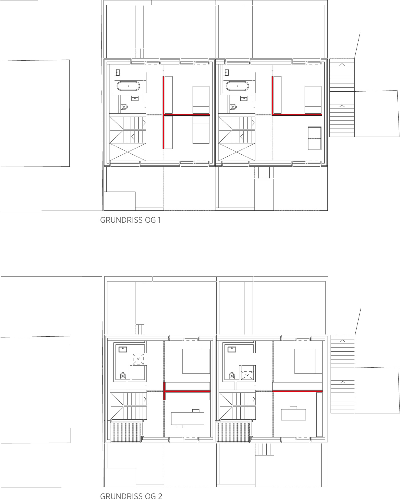
Vier flexible Etagen: Doppelhaus in Stuttgart von VON M
Auch bei dem Doppelhaus, das das Architektenpaar Márcia Nunes und Dennis Müller (VON M, Stuttgart) für sich und eine befreundete Familie für rund 2.650 Euro brutto pro Quadratmeter Bruttogrundfläche (KG 300 + 400) entwarf, sind unterschiedliche Wohnnutzungen möglich.
In den nahezu baugleichen Haushälften verteilen sich die Räume auf vier Geschosse mit einem Grundriss von etwa acht mal acht Metern. Nur die robuste Betonschale ist tragend, im Innern können die Wohneinheiten auf sich verändernde Anforderungen reagieren.

Monolithisch: In dem Stuttgarter Doppelhaus tragen nur die Außenwände.
Zooey Braun
Holzleisten markieren wandelbare Grundrisse
Der Grundriss der ersten und zweiten Etage gliedert sich jeweils in eine Erschließungszone, einen Bereich für Nasszellen/Haustechnik und den eigentlichen Wohnbereich. Letzterer wiederum ist kreuzförmig in zwei kleinere und zwei größere Flächen aufgeteilt.
In den Boden eingelassene Holzleisten markieren mögliche Grundrissvarianten. Mit Vorhängen, Holztrennwänden oder Schränken können die Bewohner Zonierungen vornehmen und mit wenig Aufwand wieder ändern.

Vorgeschlagene Zonierung: In den Boden eingefügte Holzleisten markieren das kreuzförmige Grundrissschema.
Zooey Braun
Luftraum mit Platz für Aufzug
Die Etagen sind durch ein innen liegendes Treppenhaus verbunden. Im angrenzenden, fast haushohen Luftraum kann ein Fahrstuhl nachgerüstet werden, beispielsweise wenn eine Haushälfte zukünftig von einer Alters-WG bewohnt würde.

Zonierung der Zukunft: Räume werden durch Holztrennwände, Schränke oder Vorhänge definiert.
VON M / DAB
Mini-Apartments mit gemeinsamem Erdgeschoss
„Denkbar wäre, die beiden oberen Geschosse durch Abtrennungen im Treppenhaus zu Mini-Apartments zu machen. Dazu würde man die vorhandenen Nasszellenbereiche in Küche und Bad umbauen. Beide Einheiten würden gemeinsam das Erdgeschoss und den Wohnbereich im Gartengeschoss nutzen“, erläutert Márcia Nunes.

Das Kreuz mit dem Grundrisss: Die denkbaren Zonierungen der Wohnungen im Stuttgarter Doppelhaus
VON M / DAB
Geringe Fläche begrenzt Flexibilität
Eine Aufteilung einer Doppelhaushälfte in zwei komplett unabhängige Einheiten ist hingegen nicht möglich. Das hätte ein komplett abgeschlossenes Treppenhaus erfordert und scheiterte an der geringen Geschossfläche. „Wenn ich ein Haus so bauen will, dass es für alle Eventualitäten gewappnet und vielseitig wandelbar ist, brauche ich Platz“, betont Dennis Müller.
Der war jedoch hier – anders als beim wandelbaren Büro-Wohnhaus in Breisach oder beim Mehrgenerationenhaus in Berlin – nicht gegeben. „Also ging es darum, auf dem begrenzten Platz so viel Flexibilität wie möglich zu schaffen“, resümiert Dennis Müller.