
Dieser Beitrag ist unter dem Titel „Das Post-Corona-Büro“ im Deutschen Architektenblatt 10.2022 erschienen.
Von Christian Welzbacher
„Es muss sich alles ändern, damit alles beim Alten bleibt.“ So ähnlich lautet der oft zitierte Schlüsselsatz aus Giuseppe Tomasi di Lampedusas Roman „Der Leopard“. Er bezieht sich auf die Gesellschaft und die in ihr wirkenden Kräfte im Ganzen. Und da Planen und Bauen immer ein Abbild der jeweiligen Gesellschaft ist, passt er auch hier. Denn von überall her tönt es derzeit: „In der Baubranche soll und muss sich alles ändern!“ Das betrifft auch unsere gebaute Arbeitswelt.
Ist Homeoffice doch nicht die Zukunft?
Im Lockdown hieß es euphorisch: „Homeoffice ist die Zukunft.“ „Wir werden dauerhaft weniger Bürobauten brauchen.“ Die virtuelle Entmietung hatte schon begonnen und im Geist verteilte man den frei gewordenen Raum: Das Wohnungsproblem wurde gelöst, man träumte von Urban Gardening auf zehn Etagen, Platz für soziale Projekte, Kindergärten und Spielplätzen, Multifunktionsräumen und vielem mehr. Untersuchungen wurden angestoßen, Bücher geschrieben, die Post-Corona-Stadt ausgerufen. Ein Jahr später: Die meisten von uns sind zurück im Büro.

Monsieur Bougran: Büroalltag verinnerlicht
Die Immobilienexperten der Sparkasse erklären felsenfest: „Die Corona-Krise hat den Immobilienmarkt nie wirklich erreicht.“ Schaut man, welche Büroimmobilien derzeit im Bau und in der Planung sind, so offenbart sich tatsächlich: Nach der Pandemie ist vor der Pandemie. Mich interessieren die Gründe hierfür. Sind wir Menschen einfach zu sehr „Gewohnheitstiere“, die in ihren alten Rhythmus zurückfallen, egal ob dieser nun sinnvoll, gesund und nachhaltig sein mag oder nicht? Ich musste an Joris-Karl Huysmans’ Figur des Monsieur Bougran denken, einen Beamten, der mit fünfzig in Frührente geschickt wird, doch seinen Büroalltag derart „internalisiert“ hat, dass er zu Hause sein Arbeitszimmer nachbaut und den Arbeitsalltag wie ein Theaterstück reproduziert.
Nehmen wir vielleicht die Pandemie als einmaligen Sonderfall wahr und meinen, die prognostizierten Veränderungen in der Art, wie wir arbeiten und leben, aufschieben zu können? Eine nachvollziehbare, angesichts der einschneidenden Umstände durchaus normale Abwehrreaktion gegen einen dauerhaften Ausnahmezustand also? Oder gibt es vielleicht – außer strenger Heimarbeit sozusagen in freiwilliger Quarantäne – innerhalb der Büroarchitektur bislang gar kein plausibles neues Konzept, die Anforderungen an eine gelungene Arbeitsatmosphäre mit den hygienischen Vorstellungen in Einklang zu bringen?

New Work prägt das Büro von heute
Meine Vermutung ist noch eine andere. Sie brachte mich dazu, stärker über Unternehmenskultur und gleichzeitig die wirtschaftlichen Bedingungen des Bürobaus nachzudenken. Dass das berühmte „New Work“, wie es seit den 1990er-Jahren im Silicon Valley entstanden ist, indem Büroalltag und Lifestyle der urbanen Bohème zu einem Amalgam verschmolzen, in dem Leben, Arbeiten, Vergnügen, Alltag und Freizeit untrennbar erscheinen, entsprechend „neue Arbeitswelten“ benötigt, scheint plausibel.
Wir alle kennen den dystopischen „Circle“ von Dave Eggers als Beispiel: In dem Roman findet Arbeit als freies Spiel der kreativen Kräfte in einer von luftigen Bauten durchsetzten Parklandschaft statt, bei der nicht mehr Bürozeiten mit der Stechuhr überwacht werden, sondern sich die totale, dabei unspürbare Kontrolle auf den Output konzentriert. Ohne dass es hierzulande Vergleichbares gäbe: Elemente des „New Work“ prägen auch unseren Bürobau deutlich.

Klassischer Verwaltungsbau als Basis
In Berlin etwa die Unternehmenszentrale von 50 Hertz in der Europacity (Love Architekten), Zalandos „Campus“ nahe der Eastside Gallery (Henn Architekten) oder der Springer Campus (OMA). In Dortmund das „Icon“ (William McDonough und IAA Architekten). In Düsseldorf das L’Oréal Headquarter (HPP). Genau betrachtet, variieren diese Strukturen lange erprobte Vorbilder des Verwaltungsbaus und machen sich dabei das zentralste Merkmal der Typologie zunutze: ihre Flexibilität.
Es folgt die zum Unternehmen passende Mischung von vier Elementen:
- abgetrennte Einzelräume für individuelles Arbeiten oder Besprechungen verschiedener Größe;
- Gruppenräume für Arbeit wie im früheren „Großraum“;
- eine Art metastasierende Kaffeeküche, der Inbegriff des informellen Gedankenaustauschs abseits steifer, überlanger „Meetings“;
- der repräsentative Aspekt, mit dem man sich nach außen zu den Kunden öffnet: Entree, Empfang, Hof und Garten (oft mit extensiver Grünplanung und einem geschickt inszenierten Bezug zum Außenraum), eigenes Restaurant, bisweilen auch öffentlich zugänglich.

Das Büro ist ein Produkt der Immobilienwirtschaft
Das Gros der Büroimmobilien „entwickeln“ Bauträger im Auftrag von Investoren für die Nutzer. Die Produkte der Immobilienwirtschaft sind auf einen mittleren Lebenszyklus von 25 Jahren angelegt, die Abschreibung erfolgt idealerweise nach fünf Jahren. In letzter Zeit allerdings wurden viele Bauten durch stark steigende Bodenpreise innerhalb der frühen Entwicklungsphasen renditeträchtig weiterverkauft, noch ehe der erste Mieter einen Fuß in die Türe setzte.
Nach dem Baumanagement kommt das Betriebsmanagement. Jetzt muss sich das Haus beweisen, denn nach einigen Jahren Nutzung heißt es oft: Anpassung durch Umbau. Und dann sieht man, ob dem Bau eine robuste Grundstruktur unterlegt ist, die sich im wahrsten Sinne verzaubern lässt.

Corona nur ein Faktor von vielen
Allmählich dürfte klar sein, warum für all diese Dinge die Effekte von Corona höchstens nachgeordnet sind: Corona ist für die Anpassung einer Büroimmobilie nur ein Faktor unter vielen, der allenfalls für allgemeine Beschleunigung sorgt. Andreas Pfnür zeigt in seinem Handbuch „Transformation der Immobilienwirtschaft“, welche Aspekte die Gestaltung von Bürobauten wesentlich beeinflussen: „Globalisierung, Digitalisierung, Bündelung von Produkten und Dienstleistungen zu integrierten Lösungsangeboten“, genauso wie die demografische Entwicklung und der steigende Wettbewerb in Großunternehmen wie im Mittelstand. Hinter diesen Effekten steht wiederum ein weiterer Treiber: die Finanzindustrie.

Große Räume durch Einbauelemente strukturiert
Schaut man sich aus diesem Blickwinkel markante aktuelle Büro-Neubauten an, lässt sich der Befund konkretisieren, indem man sich beispielhaft Bauten, die kurz vor, während und direkt nach der Pandemie entstanden, vornimmt – um festzustellen, dass diese offenbar weder die Ausgestaltung veränderte, noch die durchweg positive Wahrnehmung zu beeinflussen schien. Als bester „Workspace 2022“ machte zuletzt der Hamburger Comic-Verlag Carlsen (de Winder Architekten) von sich reden, der Mitte 2021 fertiggestellt wurde. Die historische Halle der Redaktion ist durch zahlreiche Einbauelemente strukturiert, darunter neben knalligen Regalen kompakte Büro- und Konferenzboxen, die sich entlang einer zentralen Promenade reihen.
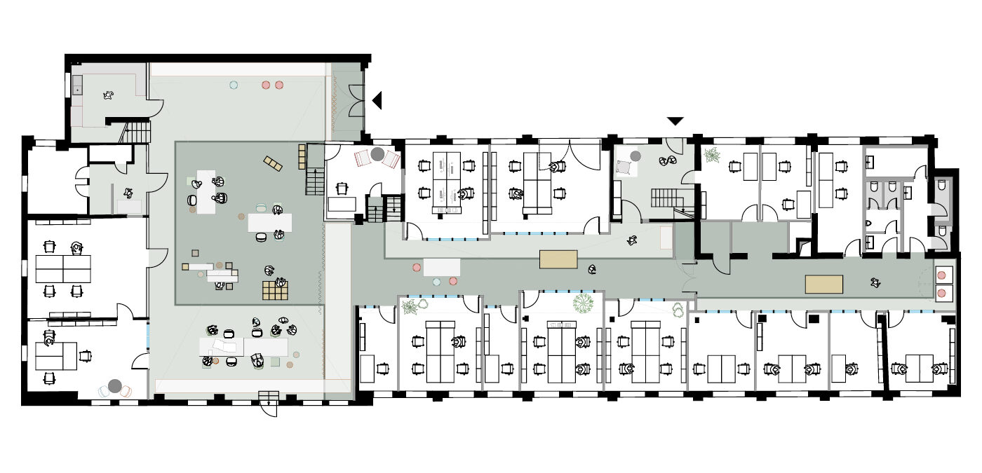
Eine solch fließende Mischung aus „Spaces“ für analoges und digitales Arbeiten innerhalb einer hallenartigen Gesamtstruktur (unterschieden durch Farben, Grad der Offenheit, Möblierung und Raumhöhe) prägt auch die Zentrale des Büroeinrichters Leonhard in Filderstadt (blocher partners), die vor Beginn der Pandemie-Krise im Januar 2020 entstand.
<<< Jump Mark: ergosign >>>
Wunsch der Mitarbeiter: kein Großraumbüro
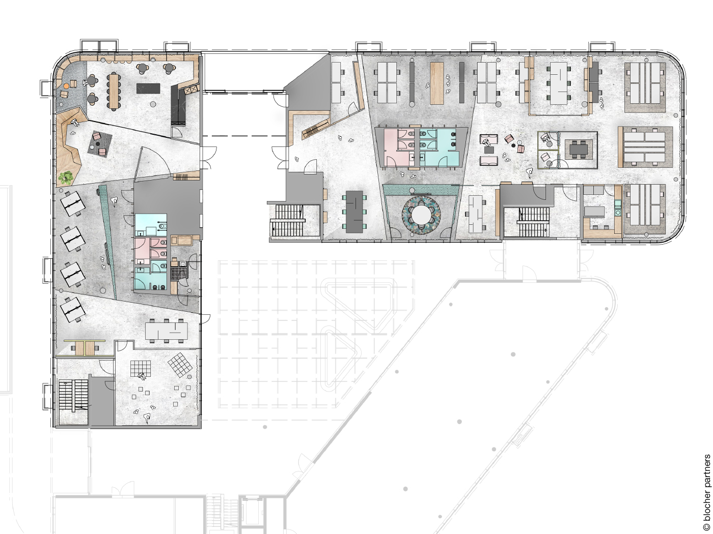
Die Architektenkammer des Saarlandes und das dortige Wirtschaftsministerium wiederum kürten zum besten „Ort der Arbeit“ im letzten Jahr den Neubau der Digitalagentur Ergosign in Saarbrücken (FloSundK Architekten) aus dem Jahr 2018. Nach außen eine schwarze Box, ist das Haus im Innern eine Wunderkiste an verschiedensten Einheiten, gestaltet gemeinsam mit den Nutzern selbst. Großraumbüros gibt es auf ausdrücklichen Wunsch der Mitarbeiter keine – sollte das aber anders werden, so lässt sich das Haus mühelos anpassen.
Bürohaus der Digitalagentur Ergosign in Saarbrücken, FloSundK Architekten (Klicken für mehr Bilder)
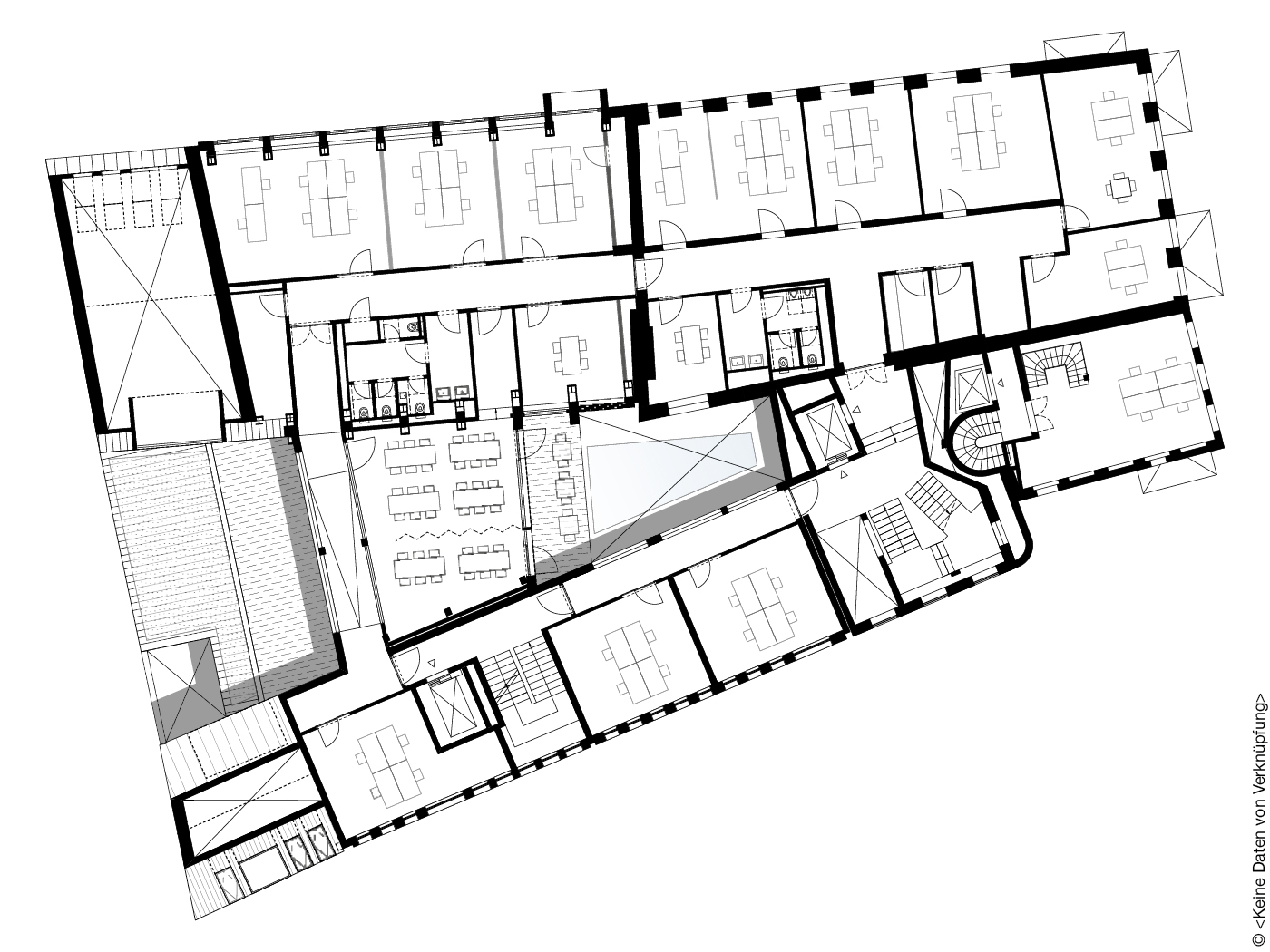
Konservativ im Bestand
Weitaus konservativer in der Erscheinung, bürotypologisch jedoch ähnlich ist die soeben vorgestellte (also: postpandemisch entstandene) Planung für die IHK in Lüneburg, ein komplexes Vorhaben des Bauens im Bestand, das Andreas Heller Architects & Designers im September 2021 in einem nicht offenen Verfahren für sich entscheiden konnten. Die Erweiterung und Aufstockung um einen Innenhof trennt zwischen öffentlichem Bereich im Erdgeschoss und den internen Obergeschossen, in denen sich Büros für jeweils bis zu vier Angestellte aneinanderreihen – eine Anordnung, die freilich ebenso wenig mit Corona zu tun hat.

Robuste Großstruktur mit flexiblem Ausbau
Eine zentrale Rolle spielt hingegen in diesen Projekten die Flexibilität. Die Bauten sind geprägt vom Verhältnis einer robusten Großstruktur zum nutzergerechten Ausbau im Detail. Sonja Wärntges, CEO des größten Gewerbeimmobilienentwicklers in Deutschland, der DIC Asset AG, sprach dabei in einem Interview mit dem Münchner Merkur im Oktober 2021 übrigens vom „agilen Arbeiten“. Dies bleibe gerade nach zwiespältigen Erfahrungen während Corona umso wichtiger: „Wer nur im Homeoffice ist, verliert den Kontakt zur Firma, auch den emotionalen Kontakt. Man erledigt Arbeit für einen zunehmend anonymen Auftraggeber, zu dem man keinen besonderen Bezug hat.“
Nicht post-pandemisch, sondern post-typologisch
Dass sich also umgekehrt viele Wohnungen nicht für konzentriertes Arbeiten eignen, zudem das berühmte Arbeitszimmer steuerrechtlich ein kompliziertes Dasein fristet – all das spricht am Ende eben auch für das Büro. Man kann daher feststellen: Der aktuelle Bürobau ist nicht post-pandemisch, sondern post-typologisch – jederzeit adaptierbar für neue Nutzer, veränderte Bedürfnisse, sich wandelnde Unternehmenskulturen oder Notwendigkeiten des Immobilienmarktes. Transformation ist damit von Anbeginn Teil der Planung. Mit Revolution hat das freilich nichts zu tun. Sondern mit dem gebotenen Pragmatismus, der im Eifer des Corona-Gefechts bisweilen offenbar aus dem Blick geraten ist.

Weitere Beiträge finden Sie auch gesammelt in unserem Schwerpunkt Arbeiten.
