Deutsches Architektenblatt Logodab-logo
Finden Sie genau die Themen,
die Sie interessieren

Die beliebtesten Themen:

Deutsches Architektenblatt Logodab-logo Deutsches Architektenblatt Logodab-logo-description

Baugruppen: nachhaltig bauen und günstig wohnen

Konzeptvergabe und Erbpacht machen soziale Ideen möglich, die günstig Wohnraum schaffen und Quartiere stabilisieren.

 

Christoph Gunßer
26.04.2024 11min
Zusammen anders: Das Haus der solidarischen Baugruppe Klinge10 in Leipzig-Plagwitz füllt räumlich wie sozial eine Lücke. Baulich besteht es aus einem Holzskelett, das mit recycelten Schalhäuten verkleidet wurde. © Peter Eichler

Dieser Beitrag ist unter dem Titel „Die neuen Leuchttürme“ im Deutschen Architektenblatt 05.2024 erschienen.

Baugruppe Klinge10 in Leipzig

Das neue Eckhaus an der Klingenstraße in Plagwitz fällt auf: Seine Fassade besteht aus recycelten schwarzen Schalungshäuten. Architekt Dirk Stenzel vom Büro Asuna aus Leipzig bekam die 700 Quadratmeter gebrauchte Folie auf wasserfestem Sperrholz von Betonbauern teilweise geschenkt. „Wir wollten kein schickes weißes Haus“, sagt er. Nach eingehenden Tests ist er überzeugt, dass die hinterlüftete und mit bunt lasierten Latten fixierte Konstruktion Jahrzehnte hält – auch wenn ihn manchmal noch Handwerker fragen, ob das Haus denn so fertig sei.

Bunte Latten in verschiedenen Rhythmen und Fenstervorhänge in leuchtendem Orange beleben die Fassade. © Peter Eichler

Günstige Mieten dank Erbpacht und Konzeptvergabe

Hinter der spektakulär unspektakulären Fassade verbirgt sich ein Holzskelettbau mit nur vier tragenden Stützen im Inneren. So ließen sich die Grundrisse der jeweils 200 Quadratmeter großen Etagen frei einteilen. Das war auch nötig, denn die heute aus rund zwanzig Erwachsenen und 13 Kindern bestehende Baugruppe hatte besondere Wohnvorstellungen.

„Wir wollen gemeinschaftlich und solidarisch zusammen wohnen und leben. Nicht neben- oder gegeneinander, sondern miteinander“, lautet das Selbstverständnis der Gruppe Klinge10. Mit ihrem Konzept bekam sie das 490 Quadratmeter große Grundstück, das in einem sehr heterogenen und noch ziemlich lückenhaften Mischgebiet im Leipziger Westen liegt, 2018 von der Stadt in Erbpacht. Nur etwa 3.400 Euro beträgt die jährliche Pacht.

So ließ sich eine dauerhafte Kaltmiete von 7,50 Euro anpeilen. Am Ende staffeln sich die Beiträge von 6,50 Euro kalt für die Sozialwohnungen bis über zehn Euro, je nach Leistungsfähigkeit der Parteien – die üblichen Neubaumieten liegen in Leipzig, das in den letzten 15 Jahren um 100.000 Menschen gewachsen ist, heute schon um 14 Euro.

Alte Backsteine als Sockel beleben den schwarzen Kubus. © Peter Eichler

Gemeinsam wohnen nach dem Cluster-Prinzip

Der Baugruppen-erfahrene Architekt entwickelte mit der Gruppe individuelle Grundrisse, die auf dem Prinzip Clusterwohnen basieren: Im Kern besteht jede Etage aus einem 50 Quadratmeter großen Gemeinschaftsraum mit vorgelagertem Balkon.

Darum herum gruppieren sich die Zimmer, die nicht alle eigene Bäder und Küchenzeilen beinhalten, sondern eher wie eine WG funktionieren. Nur die zwei integrierten Sozialwohnungen sind in dieser Hinsicht komplett. „Das klappt gut“, weiß Stenzel. „Die Gruppe hat sich passend sortiert.“

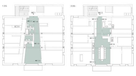
Grundrisse des Baugruppenhauses „Klinge10“ in Leipzig. © ASUNA

Mitglied im Mietshäuser-Syndikat

Im ersten Obergeschoss leben die meisten Familien mit Kindern, im Erdgeschoss arbeitet ein Gesundheitskollektiv, das sich Gruppenraum und Teeküche mit der Hausgemeinschaft teilt. Obenauf liegt eine große Dachterrasse für alle. Kein Mensch darf laut Hausvereinssatzung mehr als 30 Quadratmeter beanspruchen. Die Mitgliedschaft im Mietshäuser-Syndikat stellt die Unverkäuflichkeit des Hauses sicher. Auch eine dauerhafte Untervermietung an Dritte ist nicht vorgesehen.

Nestbau für alle: Am Treppenhaus des Leipziger Baus gibt es Platz für Vögel. © Peter Eichler

Baukosten reduziert dank Eigenleistung

Auf mehreren Bauwochenenden halfen Freunde der Gruppe kräftig mit und reduzierten so die Baukosten auf knapp 2,44 Millionen Euro (Kostengruppen 3 + 4 brutto) für 1.233 Quadratmeter Brutto-Grundfläche, sprich 1.978 Euro den Quadratmeter.

Stabiles soziales Miteinander

Gleich zu Beginn klaubte man aus den Resten des maroden Vorgängerbaus, der bereits nach der Wende abgerissen worden war, die krummen roten Ziegelsteine, die heute das Erdgeschoss verkleiden. Demnächst wird gemeinsam die Dachterrasse bepflanzt und das Treppenhaus gestrichen. Den Aufzug sowie die Solaranlage wird es erst später geben, denn das Geld ist knapp.

Jede der flexibel teilbaren Etagen des Leipziger Baus verfügt über ein zentrales Wohnzimmer mit Balkon sowie private Rückzugsräume. © Peter Eichler

Das Modell Baugruppe ist gefährdet

Architekt Dirk Stenzel, der in Leipzig nach der Wende studiert hat, ist überzeugt von der Idee der „europäischen Stadt“, wo Selbstnutzer zu einem stabilen sozialen Miteinander beitragen. Seine inzwischen zahlreichen erfolgreichen Baugruppen-Projekte geben ihm recht.

Jedoch steht die bislang fortschrittliche Leipziger Vergabepolitik derzeit in der Kritik, und manch ähnliches Projekt ist mittlerweile wegen gestrichener Förderung und hoher Zinsen auf Eis gelegt, wie der 53-Jährige berichtet. Fast symptomatisch also, dass direkt gegenüber der Baugruppe gerade ein großes Haus mit Mikro-Apartments gebaut wird – „das ist das Gegenmodell zu unserem“, sagt Dirk Stenzel.


Filigrane Fifties: Im Frankfurter Bahnhofsviertel gelang der Baugruppe Niddastern der behutsame Umbau eines Bürohauses aus den Fünfzigern zu Atelierwohnungen. © bb22 architekten + stadtplaner

Niddastern in Frankfurt

Auch im Frankfurter Bahnhofsviertel prallen solche Gegensätze und Lebensentwürfe aufeinander. Hier – nur einen Block von den Hochhäusern der Mainzer Landstraße und vom Hauptbahnhof, aber genauso weit von Rotlichtviertel und Drogenkiez entfernt – gelang es einer Gruppe Kreativer, ein Bürohaus aus den Fünfzigerjahren in Erbpacht zu übernehmen. Das schmale Haus gehörte dem Frankfurter Liegenschaftsfonds. Früher war hier ein Pelzhandel tätig.

Flexibel teilbar: Grundriss einer typischen Etage des ehemals als Pelzhandel genutzten Frankfurter Gebäudes. © bb22 architekten + stadtplaner

Alternative Wohnformen, auch im Alter

Wie in Leipzig überzeugte die Frankfurter Gruppe Niddastern die Stadt im Konzeptverfahren von ihrem Wohnentwurf. Denn auch ihre Mitglieder, sieben Erwachsene und inzwischen vier Kleinkinder, wollen anders leben: „Was uns alle beschäftigt, ist die Frage nach Alternativen zum traditionellen familiären Zusammenleben – auch im Hinblick auf das Älterwerden – in Szenarien jenseits des klassischen 2/3/4-Personen-Haushaltes“, heißt es in ihrem Programm.

Die architektonische Umsetzung dieser Vorstellung übernahm das Büro bb22, das in derselben Straße ansässig ist und bereits ähnliche Gemeinschaften betreut hat. Gleichgesinnte fand die Gruppe im Nachbarhaus: Dort war kurz zuvor, im selben Konzeptvergabe-Verfahren, ein ähnlich solidarisches Wohnkonzept zum Zuge gekommen: Das NiKa ist wie die Leipziger Klinge10 Teil des Mietshäuser-Syndikats.

70 Jahre ohne Renovierung

Trotz der netten Nachbarn war die Umnutzung jedoch in der sehr engen städtischen Situation – das Grundstück ist komplett überbaut – nicht einfach zu bewerkstelligen: Ohne Kran, ohne viel Baustellenfläche, mitten in der Drogenszene war der Bau „sehr anstrengend“, so Johannes Gerstenberg von bb22.

Diese Mühen merkt man dem Projekt glücklicherweise nicht an. Im Straßenbild fällt die Immobilie des Niddasterns heute wie damals durch einen filigranen Glaserker auf, der vom ersten Obergeschoss über alle Etagen reicht. Dass das Haus in den rund 70 Jahren seines Bestehens noch nie renoviert worden war, nutzten die Architekten als gestalterischen Vorteil. „Wir haben versucht, möglichst viele ästhetische Elemente des 50er-Jahre-Gebäudes weiterzuverwenden“, erzählt Gerstenberg.

So blieben die bunkerartigen Sicherheitstüren – wegen der einst hier gehandelten wertvollen Pelze eine Besonderheit des Gebäudes – auf allen Etagen erhalten und rahmen nun in aufgeklapptem Zustand die neuen transparenten Türen. Auch der alte Betonboden im Treppenhaus hat mit allen Macken überdauert.

KfW-85-Standard und Photovoltaik

Pro Etage entstand ein weitgehend offenes Wohnatelier, das die Bewohner individuell gestalten konnten. Schallschutz, Brandschutz, Statik und Wärmeschutz waren dafür zu verbessern, was von außen weitgehend unsichtbar gelang (es gilt hier eine Gestaltungssatzung). Balkone und eine großzügige Dachterrasse, die heute üppig begrünt sind, konnten auf der Rückseite angefügt werden. Auch auf dem obersten Erker wurde ein neuer Balkon installiert, der aufgrund mangelnder Tragfähigkeit des Erkers aber als Stahlkonstruktion von hinten auskragt.

Den filigranen Erker selbst sanierten die Architekten behutsam: Die charakteristischen keramischen Fliesen blieben erhalten, wurden jedoch innen durch Kalziumsilikatplatten unterfüttert, die Fensterkonstruktion durch eine elegante Stahl-Glas-Konstruktion mit sehr schlanken Profilen ersetzt – das Haus erfüllt so den KfW-85-Standard.

Der hölzerne Dachstuhl ist komplett neu. Eine Art verschobene Pultdachlösung mit Oberlicht ermöglichte die Dachterrasse, die heute blüht und grünt. Eine steile neue Betontreppe führt aus dem Treppenhaus hinauf. Auch eine Photovoltaik-Anlage fand dort oben Platz.

Viel Raum: Im ehemals als Pelzhandel genutzten Frankfurter Gebäude wohnen nun elf Menschen. © bb22 architekten + stadtplaner

Als GmbH organisiert

„Der Standard des Ausbaus sollte anfangs ganz einfach sein, geriet dann aber doch individueller“, merkt Projektleiter Johannes Gerstenberg an. Mit 1,3 Millionen Euro (Kostengruppe 3 + 4 brutto) für 890 Quadratmeter Brutto-Grundfläche blieben die Baukosten jedoch für die Umstände günstig. Die Gruppe ist inzwischen als GmbH relativ bürgerlich organisiert. Verkauf oder Bewohnerwechsel sind möglich, die Nachfolgenden müssen aber die Hausgemeinschaft überzeugen.

Grüne Oasen mitten in der City: An der Rückseite wurden Balkone und eine oben eine Dachterrasse ergänzt, von der aus die Hochhäuser ganz nah erscheinen. © bb22 architekten + stadtplaner / Maria Messina

Alternatives Wohnen im Bahnhofsviertel

Die im Erdgeschoss vorgesehene Gemeinschaftsnutzung wanderte den Kindern zuliebe in die oberste Etage, sprich etwas weiter weg von der Drogenszene. Sie ist unter dem neuen Dachstuhl komplett offen gestaltet, mit Küche und Sitzecke möbliert und lässt sich auch als Gästewohnung nutzen. Im Erdgeschoss betreibt eine der Bewohnerinnen jetzt einen Frisiersalon, doch denkt die Gruppe noch über eine sozialere Nutzung nach, die dem Quartier mehr zurückgibt.

Wer auf der Dachterrasse steht und den Blick über die Frankfurter Skyline schweifen lässt, wird irgendwie das Gefühl „David gegen Goliath“ nicht los. Dass sich ein so alternatives Wohnkonzept in so zentraler Lage durchsetzen konnte, ist beachtlich, könnte sich aber auch für die Stadt schon bald auszahlen:

Zwischen lauter Hotels und Apartments soll in der Nachbarschaft bald ein weiteres Gebäude in privater Initiative zum Kunstzentrum umgebaut werden – womit sich der subventionierte Niddastern wieder einmal als Anstoß für mehr urbanes Leben erwiesen hätte.

Alle Beiträge zum Thema finden Sie in unserer Rubrik Nachhaltigkeit.

Christoph Gunßer

Freier Fachautor

Christoph Gunßer ist für das DAB vor allem in Süddeutschland unterwegs. Nach Architekturstudien in Hannover, Stuttgart und den USA wurde er erst Redakteur, dann freier Fachautor, der einige Bücher zu wegweisenden Wohnbauten publiziert hat.

Mit Basis in Hohenlohe, wo er für seine Familie ein altes Hospital ausgebaut hat, berichtet er heute vor allem aus dem Süden und der Mitte Deutschlands für das DAB und andere, darunter die Bundesstiftung Baukultur und die KfW. Auch Kritiken und Essays zum Architekturgeschehen schreibt er gern. Am liebsten klappert er aber zu Fuß oder mit dem Fahrrad neue Projekte in Stadt und Land ab.