Dieser Beitrag ist unter dem Titel „Lust auf Moderne“ im Deutschen Architektenblatt 11.2025 erschienen.
Das könnte Sie auch interessieren
Dortmund: Hotel im Gesundheitsamt
Die geringe Wertschätzung der Nachkriegsmoderne fußt darauf, dass sie „uns Menschen nicht die Wertschätzung entgegenbringt, die uns zusteht“, schreibt DAB-Leser Thomas Heiser (siehe hier) – und hat damit in manchen Fällen sicherlich recht.

Mit seinem gelochten Flugdach und der Fassade aus blauen Mosaikfliesen vermittelte das Dortmunder Gesundheitsamt in der Nachkriegszeit positive Werte wie Sauberkeit, Leichtigkeit und Helligkeit.
Ulrike Meywald für Heyen Lippross Kiefer Architektur
Architektur als Erlebnis
Was der Dortmunder Architekt Will Schwarz aber 1961 fertigstellte, muss nach dem Krieg „ein Erlebnis gewesen sein: lichtdurchflutet, frische Farben und Kunstwerke, die nicht das Thema Krankheit, sondern Gesundheit vermitteln“. So beschreibt Architekt Klaus Lippross das Gesundheitshaus im Zentrum Dortmunds, für dessen Umbau sein Münsteraner Büro Heyen Lippross Kiefer Architektur beauftragt wurde (Vorentwurf: zweipink, Düsseldorf). Dass sich der Investor, die Landmarken AG, an solch ein Gebäude herangewagt habe, führt Lippross auch auf das persönliche Interesse Einzelner in der Führungsetage zurück.
Wandkunstwerke und wechselnde Muster im Terazzoboden sorgen auf jeder Etage für einen anderen Eindruck.
Ulrike Meywald für Heyen Lippross Kiefer Architektur
Sanierung ohne Standardlösungen
Standardlösungen gab es keine, um den Komplex aus Gesundheitsamt und Hygieneinstitut (inklusive Hörsälen, Krankenwagenhalle und Ställen für Versuchstiere) in eine Mixed-Use-Immobilie mit Hotel, Büros, Kita und Wohnungen zu verwandeln. Das fing bei den für Hotelzimmer ungünstig geschnittenen Büros mit mittigen Türen an. Die unkonventionelle Lösung: Man betritt die Zimmer zwischen WC und Dusche. Die 80 Kilogramm schweren Türen selbst arbeitete eine Tischlerei auf und versah sie mit passenden Beschlägen. Die Flure erhielten etwas versetzt neue Brandschutztüren, sodass die historischen Türen zum Treppenhaus heute offen stehen können.

Aus Brandschutzgründen trennen neue Glaswände das Treppenhaus von den Hotelfluren.
Ulrike Meywald für Heyen Lippross Kiefer Architektur
Kunst und Farben sind Teil der Architektur
Nimmt man hier die Treppe statt des Aufzugs (früher war es ein Paternoster), erlebt man auf jeder Etage ein anderes Wandkunstwerk zum Thema Gesundheit sowie eine andere Farbgebung bei Klinkern, Decken und Böden. Für die Rekonstruktion des Farbkonzepts aus Blau-, Braun-, Rosa- und Orangetönen hatte der städtische Denkmalpfleger Michael Holtkötter bereits wichtige Vorarbeit geleistet. So wurden Originalfarben etwa dort sichtbar, wo man die damals (auch in einem Gesundheitsamt!) obligatorischen Wand-Aschenbecher entfernte.
Doch während Terrazzoböden, Wandbilder oder Türen nur leicht aufgearbeitet oder Geländer nur etwas erhöht werden mussten, waren anderswo größere Eingriffe nötig. So musste die schmuckvolle Stirnseite (siehe erstes Bild) wegen ihrer korrodierten Verankerung vor einer Dämmung neu aufgemauert werden – mit neuen Steinen nach den Originalvorbildern.
Kunst am Bau kann man auch in der früheren Kantine erleben, dem heutigen Frühstücksraum des Hotels.
Ulrike Meywald für Heyen Lippross Kiefer Architektur
Kompromisse bei den Fenstern
Für Klaus Lippross ist das nur ein Beispiel für einen guten Kompromiss. Ein weiteres sind die damals schon doppelt verglasten Stahlfenster, die neue Scheiben erhielten. Wegen ihrer vertikalen Drehachse in der Mitte hatten viele aber zu schmale lichte Öffnungen für einen zweiten Fluchtweg. Diese Elemente wurden umgeschweißt.
Bei so viel Liebe zum Detail gerät fast in den Hintergrund, dass auch eine umfangreiche Betonsanierung erfolgte, eine Innendämmung für den Erhalt der Fassade aus blauen Mosaikfliesen sorgt und eine Lüftungsanlage in Abhangdecken untergebracht werden konnte.
Im Hauptgebäude (links) befindet sich das Hotel. Im alten Hörsaaltrakt mit Tonnendach und dem anschließenden Bauteil entstanden Wohnungen.
Ulrike Meywald für Heyen Lippross Kiefer Architektur
Auch Wohnungen im alten Gesundheitsamt
Der rückseitige Flügel beherbergt Büros über einer Kita. Sie hat nun statt eines Parkplatzes eine Grünanlage vor der Tür (Planung: Environment, Rudolf Bendlage), so wie es Will Schwarz ursprünglich wollte. Wohnungen entstanden in einem Büroflügel an der rückwärtigen Straße sowie in den früheren Hörsälen im Verbindungstrakt – mit Küchenzeile auf den Rednerpodesten.
Klaus Lippross findet, dass „Feuerwehr, Bauordnungsamt und allen voran der Denkmalpfleger, der immer vor Ort war, vorbildlich zusammengearbeitet haben. Nur so lassen sich Baudenkmäler in die heutige Zeit bringen.“ Und er hat noch einen Geheimtipp: „Im neuen Gesundheitsamt betreibt ein ehemaliger Mitarbeiter ein kleines Museum mit Fundstücken aus dem alten Amt.“
Erfurt: Bildungszentrum in der Parteischule
Wie in einem Museum hat man sich wohl auch in Erfurts ehemaliger SED-Parteischule gefühlt (Planung: Wohnungsbaukombinat Erfurt, Leitung Heinz Gebauer). Von der Tapete über die Leuchten bis zum Besteck in der Mensa waren große Teile der Einrichtung seit der Eröffnung 1972 erhalten – trotz diverser Zwischennutzungen als Fachhochschule, Wohnheim, Disco oder Zierfischbörse. Aber genau das ersparte dem Haus tiefgreifende Veränderungen, sodass 2008 der Denkmalschutz erfolgte.

Die blaue Email-Hülle am Audimax der heutigen Zollschule in Erfurt ist im Ursprungszustand erhalten.
SV Erfurt / Martin Maleschka
Nicht viele Investoren trauen sich an Baudenkäler ran
Dabei half die Bauforschung zur Ostmoderne des Architekten Mark Escherich, dem heutigen Leiter des Erfurter Denkmalamts. „Der Schutzstatus machte die Schule für viele Investoren unattraktiv“, urteilt er. Nicht aber für den Unternehmer Andreas Müller, der das Haus 2011 dem Land Thüringen abkaufte. „Ihm war vielleicht nicht bewusst, was auf ihn zukommt“, vermutet Architekt Anuschah Behzadi (Behzadi Architekten, Leipzig), der die anschließende Sanierung verantwortete. „Herr Escherich und ich haben ihn angestoßen und er hat sich dann wohl in das Haus verliebt, wollte sofort mit den Details loslegen, obwohl erst mal Grundsätzliches zu klären war.“
Der Seminarriegel wurde für weitere Apartments aufgestockt und verlängert (in der Zeichnung vorne).
Behzadi Architekten
Zollverwaltung brauchte spezielle Immobilie
Anuschah Behzadi war über Empfehlungen direkt an den Auftrag gekommen. Da hatte der Bauherr bereits einen Langzeitmieter gefunden: die Generalzolldirektion, die eine zentrale Ausbildungsstätte mit Internat benötigte. Deren Raumbedarf war fast deckungsgleich mit dem Bestand – nur die (früher doppelt belegten) fast 350 Zimmer in der Hochhausscheibe reichten als Einzelzimmer nicht aus. 77 weitere Wohnräume fanden Platz in einer Verlängerung und Aufstockung des rückwärtigen Seminarflügels. Aus Kostengründen erfolgte Letztere als Stahlskelettbau, wofür der Bestand statisch ertüchtigt wurde. Im Hochhaus erneuerte man die arg heruntergewohnten Zimmer komplett, inklusive zeitgemäßem Schallschutz.

Für den Erhalt der Geländer, Leuchten oder Tapeten im Foyer beauftragte man jeweils spezialisierte Fachleute.
SV Erfurt / Martin Maleschka
Brandschutztechnische Ertüchtigung
Ansonsten waren Feuchteschäden zu beseitigen (die Erdgeschosse waren zum Teil im Erdreich versenkt), die Haustechnik zu ersetzen, Schadstoffe zu entsorgen, und natürlich war der Brandschutz zu gewährleisten. Dafür konnten sogar Bestandstüren durch Aufdoppelungen, neue Lippendichtungen oder Obertürschließer ertüchtigt werden, andere wurden am Original orientiert neu hergestellt. „Man muss immer abwägen, was sich lohnt“, sagt Anuschah Behzadi. „Vieles ist neu, sieht aber alt aus und transportiert das Flair der Bauzeit.“
Gipsformteile neu gegossen
Das trifft auch auf die nicht zu rettende Kassettendecke in der Mensa zu. Entsprechende Gipsformteile ließ der begeisterte Bauherr neu gießen. „Das hatte ich ihm gar nicht auferlegt“, sagt Denkmalpfleger Escherich, der sich auch anderswo kompromissbereit zeigte: „An der Hochhausscheibe bin ich bei einer Außendämmung mitgegangen, weil die Fassade vor allem aus der Ferne wirkt.“ Die ursprüngliche Farbgebung und das Fugenmuster ließen die Architekten jedoch nachbilden. Die facettierten Stirnseiten aus Betonformsteinen blieben erhalten.
Aus Brandschutzgründen hat der Hörsaal einen neuen Mittelgang erhalten.
SV Erfurt / Martin Maleschka
Bauzeitliche Materialien aufgearbeitet
Nur etwas gereinigt wurde die blaue Email-Fassade des Audimax. Im Hörsaal ließ man die bauzeitliche Bestuhlung aufarbeiten, allerdings aus Brandschutzgründen mit einem Mittelgang neu installieren. Spezialisierte Restauratoren kümmerten sich um die Tapeten. Die Fenster ertüchtigte man energetisch mit neuen Scheiben in den originalen Aluminiumprofilen, wobei in Kauf genommen wird, dass beispielsweise die Foyers nicht die gleiche Behaglichkeit haben wie die Wohnräume.
Kurze Planungs- und Bauzeit
Bei solchen Entscheidungen muss auch der Nutzer mitziehen. Aber Anuschah Behzadi ist voll des Lobes: „Die Zusammenarbeit mit dem Auftraggeber, dem Zoll und allen Ämtern war beispielhaft. Mit Respekt vor dem Alten haben wir etwas Neues geschaffen.“ Und das in nur zwei Jahren, in denen sich Planung, Bauüberwachung und erste Nutzungsfreigaben überlagerten. „Das wäre mit dem Bund oder Land als Bauherrn nicht unter fünf Jahren gegangen“, ergänzt Behzadi. Sein Bauherr Andreas Müller erhielt für sein Engagement den Deutschen Preis für Denkmalschutz.
Bad Kissingen: Ingenieurbüro im Gemeindehaus
Einen überzeugten Bauherrn fand 2019 auch ein evangelisches Gemeindehaus im fränkischen Bad Kissingen. Damals war das Büro Tragraum Ingenieure auf der Suche nach neuen Räumen im Ort. Büropartner und Standortleiter Daniel Dahinten hatte vom baldigen Leerstand des Hauses erfahren und konnte es der Kirche abkaufen.

Das Erdgeschoss des früheren Gemeindehauses nutzt heute ein Ingenieurbüro, darüber befinden sich zwei Wohnungen.
Sebastian Schels
Spät als Baudenkmal erkannt
Erst während der Sanierungsplanung wurde das Denkmalamt auf den Bau des Münchner Architekten Hans-Busso von Busse aus dem Jahr 1969 aufmerksam und stellte es unter Schutz – wegen seiner Anlehnung an den Strukturalismus, seiner zeittypischen Bauweise aus Kalksandstein und der bestens erhaltenen Innenräume.

Im alten Gemeindesaal wurde über dem Kreuz ein langes Oberlicht in die Deckenkonstruktion geschnitten.
Sebastian Schels
Büros müssen nicht weiß sein
„Büros waren in meiner anfänglichen Vorstellung immer weiß. Und so hätte ich hier ohne den Denkmalschutz vielleicht auch alles weiß überstrichen“, gibt Daniel Dahinten zu. Doch für den befreundeten Architekten Stefan Schlicht (Schlicht Lamprecht Kern Architekten, Schweinfurt) hatten die Verkleidungen und Unterdecken „ein zeitloses Grün. Die Holzoberflächen mussten wir nur entstauben und, wo nötig, aufarbeiten lassen.“ Aus den Platten eines Einbauschranks baute man eine neue Küche, Parkett und Leuchten wurden aufgearbeitet.
Bauherr und Fachplaner zugleich waren Tragraum Ingenieure dann beim einzigen konstruktiven Eingriff: einem langen Oberlicht im großen Saal. Nun erhellt Tageslicht das verbliebene Kreuz an der Wand, so wie man es schon dem Ursprungsentwurf gewünscht hätte.

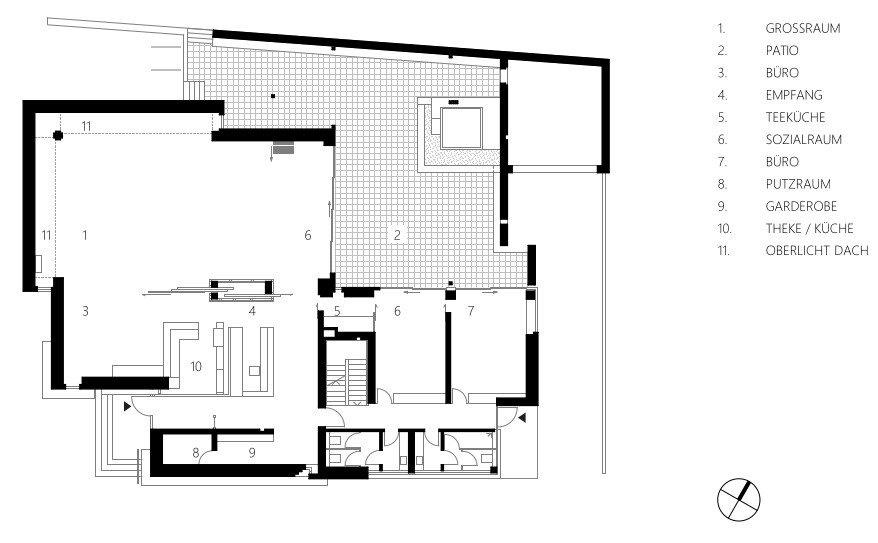
Ergänzt wurden der Empfangstresen (4), die Küche (10) und eine gläserne Faltwand, mit der am großen Fenster ein Bereich vom Zeichensaal abgetrennt werden kann. Auch der Durchbruch zwischen Einzelbüro (7) und Sozialraum (6) ist neu.
Schlicht Lamprecht Kern Architekten
Pionierarbeit bei der Sanierung von Kalksandsteinmauerwerk
Aufwendig gestaltete sich die Sanierung des zweischaligen Mauerwerks mit Schäden und Verschmutzungen an der Außenseite. Der weiche Kalksandstein verträgt weder Säuren noch eine Sandstrahlung. Weil keine Fachfirma Expertise hatte, starteten Architekt und Bauingenieur eigene Versuche, die auf eine Reinigung per Wasserdampf und Schleifen mit Siliziumkarbid hinausliefen – teilweise mit Schleifscheiben aus dem Karosseriebau. Die Innenwände wurden mit Trockeneis abgestrahlt.

Neben dem Mauerwerk waren auch der Brunnen und die Pergola sanierungsbedürftig.
Sebastian Schels
Bei der Dämmung kein Neubaustandard erforderlich
„Das ist jetzt vielleicht deutschlandweit die erste denkmalgerechte Instandsetzung eines solchen Mauerwerks“, merkt Daniel Dahinten an und ergänzt noch, dass die Wände keine Dämmung erhalten haben. Der Luftraum zwischen den Mauerwerksschalen, eine PIR-Dämmung auf dem Dach, eine neue Kellerdämmung und neue Scheiben (in den originalen Fensterrahmen) reichten aus für die Bewertung als Effizienzhaus Denkmal. „Wir müssen mit diesem Haus keine besonderen Neubaustandards erreichen, denn wir nutzen es nur temporär.“ Was Daniel Dahinten auf die Nutzung zu Bürozeiten bezieht, führt Stefan Schlicht weiter: „Das Haus ist nur geliehen, es kann so viel mehr. Wir haben es respektiert und jetzt für die Zukunft geschützt.“
War dieser Artikel hilfreich?
Weitere Artikel zu:
Architektenkammern
© Solutions by HANDELSBLATT MEDIA GROUP GmbH 2025| Impressum | Datenschutz
Sie müssen den Inhalt von reCAPTCHA laden, um das Formular abzuschicken. Bitte beachten Sie, dass dabei Daten mit Drittanbietern ausgetauscht werden.
Mehr Informationen






