Deutsches Architektenblatt Logodab-logo
Finden Sie genau die Themen,
die Sie interessieren

Die beliebtesten Themen:

Deutsches Architektenblatt Logodab-logo Deutsches Architektenblatt Logodab-logo-description

Neue Sozialwohnungen: bezahlbare Beispiele in Stadt und Land

Zentral und kompakt, oder aufgelockert am Ortsrand. Mit ­Fassaden aus Fliesen oder Holz. Oder gleich huckepack auf Altbestand.

 

Christoph Gunßer
11.07.2024 11min

Dieser Beitrag ist unter dem Titel „Bezahlbar!“ im Deutschen Architektenblatt 07-08.2024 erschienen.

Vor einigen Jahren meinte die Politik, auf kommunalen Wohnungsbau verzichten zu können – vielerorts verkaufte man einen Großteil der Bestände. Inzwischen suchen Städte und Landkreise händeringend nach ebensolchen Sozialwohnungen. Not macht nun einige erfinderisch: Sie lassen ihre eigenen Baugesellschaften kreative Lösungen finden.

Sozialwohnungen in Bremen: Das grüne Haus

So tat die Hansestadt Bremen auf der Suche nach den letzten Flächenreserven für neuen Wohnungsbau eine Verkehrsfläche am Rande der Wallanlagen auf. Diese war einst Standort eines der Tore durch den Wall, danach lange ein Parkplatz.

Grünes Haus in Bremen: Auf einem früheren Parkplatz steht nun ein unverwechselbarer Solitär mit 47 geförderten (und wenigen frei finanzierten) Wohnungen. © Michael Heinrich
Bremen von oben: Das grüne Haus befindet sich zwischen der Neustadt und den Wallanlagen. © Michael Heinrich
Kompakte Form: Balkone waren an der Fassade aus Lärmschutzgründen leider tabu. Dafür war ein Budget für eine geflieste Fassade vorhanden. © Michael Heinrich
Lichte Mitte: Die meist nur 30qm kleinen Wohnungen gruppieren sich um ein helles und geräumiges Treppenhaus. © Michael Heinrich
Fast wie früher: Viele Wohnungen haben keine Küchenzeile im offenen Wohnraum, sondern separate Küchen (mit gutem Ausblick). © Michael Heinrich

Für die anspruchsvolle Verkehrs-Insellage am Eingang zur Neustadt lud die städtische Wohnungsbaugesellschaft Gewoba zu einem Wettbewerb ein, der eine städtebaulich einprägsame und zugleich sozialverträgliche Lösung verlangte. Schließlich liegt die Hochschule in Sichtweite, und dem Bedarf vor allem an kleinen Wohnungen sollte hier entsprochen werden.

Markante Form: New York in Bremen

Das preisgekrönte und inzwischen viel publizierte Ergebnis von Hild und K Architekten aus München ist dann weit mehr als die Synthese dieser vertrackten Anforderungen geworden. Das Gebäude verwandelt den Unort in einen Höhepunkt: stadträumlich, ästhetisch, aber auch als Wohnhaus. Meine erste Assoziation war das berühmte Flatiron Building in New York – wegen der markanten Gesimse, die das Haus formal zusammenhalten und auf seine niedrigeren Nachbarn abstimmen, aber auch, weil das im Grundriss sechseckige Haus mit dem Bug beziehungsweise bügeleisenmäßig Richtung Wallanlagen zu dampfen scheint.

Ökonomische Erschließung: Im grünen Haus in Bremen liegen pro Etage sieben Wohnungen an nur einem Treppenhaus. © Plan: Hild und K

Sehr kompakter Baukörper sorgt für Flächeneffizienz

Zwar ist es mit seinen acht Geschossen gerade noch kein Hochhaus, doch seine Proportion ist eindeutig vertikal. Außer den Gesimsen zieren keine Zutaten die sechs Fronten, denn Balkone waren aus Lärmschutzgründen ringsum tabu. Der hochkompakte Baukörper, der auch etwas von dem einstigen Bollwerk an dieser Stelle wachruft, ist aus wohnungswirtschaftlicher Sicht vor allem eins: flächeneffizient. 52 Apartments, meist 30 Quadratmeter winzig, gruppieren sich etwas labyrinthisch um ein weites, innen liegendes Treppenhaus, das, von einem großen Oberlicht erhellt, durchaus Aufenthaltsqualität hat.

Fassade aus handverlegten Fliesen

Nicht nur der individuelle Freisitz, auch der Keller musste eingespart werden, da Leitungstrassen die vormalige Verkehrsinsel kreuzen. So blieb vom Budget etwas übrig für eine hochwertige Fassadengestaltung. Seinem changierenden Korpus aus keramischen Riemchen verdankt das Gebäude den allgemeinen Spitznamen „das grüne Haus“. Der portugiesische Projektarchitekt Sérgio de Sá vom Büro Hild und K ließ sich dazu von den Azulejos seiner Heimat inspirieren und detaillierte die später handverlegten Fliesenansichten akribisch durch. Es gibt subtile Muster und Farbverschiebungen, und sogar ein Insektenhotel fügt sich unter ein Gesims.

Viel Baukunst für wenig Miete

Für 6,50 bis 7,20 Euro kalt in den geförderten ersten sechs Etagen und zehn bis zwölf Euro in den (identischen) frei finanzierten zwei oberen Stockwerken ist das sehr viel Baukunst. Und weit langlebiger als ein billiges Verbundsystem allemal. Auch wenn die Baukosten nicht offiziell genannt werden: Eine so unverwechselbare Adresse ist eigentlich unbezahlbar.


Platensiedlung in Frankfurt am Main: Von der Siedlung zum Stadtquartier

Nicht nur auf Verkehrsflächen, auch in den Siedlungen der Nachkriegszeit schlummern noch enorme Reserven für den Wohnungsbau. Oft sind sie einheitlich nach Typen-Entwürfen entstanden und bieten deshalb gute Ansatzpunkte für eine serielle Weiterentwicklung. Wird eine Nachverdichtung hier richtig vermittelt, spielen auch die Bestandsmieter mit.

In der Platensiedlung in Frankfurt am Main wurde die Zahl der Wohnungen durch Auf- und Anbau fast verdreifacht auf über 1.000. © Jean-Luc Valentin

Mehr Sozialwohnungen durch Nachverdichtung

Das beweist ein fast schon riesiger Siedlungsumbau in Frankfurt: In der Platensiedlung wohnten vorher 342 Mietparteien, heute sind es 1.030. Die Hälfte der neuen Wohnungen ist gefördert, zudem sind 177 für Studierende reserviert. Dazu gibt es in der einst monofunktionalen Siedlung heute neue Kitas, Läden, einen Treff und Mietergärten. Ohne zusätzlichen Landverbrauch gelang es Stefan Forster Architekten, eine Stadtrandsiedlung in ein belebtes Quartier zu transformieren.

Umbau und Aufstockung im bewohnten Zustand

Das klappte vor allem dank eines ausgeklügelten Ergänzungsbaukastens aus Brettsperrholzmodulen – und weil die Eigentümerin die Bewohnerschaft „mitnahm“: Die städtische Wohnungsbaugesellschaft ABG Frankfurt Holding gab Mietgarantien und bot viele Verbesserungen an. So konnte sie die 19 Häuser der einstigen US-Armeesiedlung im bewohnten Zustand umbauen. Im effizienten Taktverfahren verstärkte man erst die Fundamente der Häuser, entfernte die (weitgehend ungenutzten) Satteldächer und brachte einen Ringanker auf.

Eine aufgestockte Etage der Frankfurter Platensiedlung im Grundriss. © Plan: Stefan Forster GmbH

Aufstockung ohne  „Hut-Effekt“

Aus einer zehn Minuten entfernten Feldfabrik lieferten Lkw dann just in time die zu 80 Prozent vormontierten Module. Per Kran eingehoben, saßen binnen 20 Wochen 20 neue Wohnungen mit 1.000 Quadratmetern Fläche zweistöckig auf jeder der 76 Meter langen Zeilen. Alle Versorgungsleitungen verlegte man außen an den Häusern hinauf, wonach der gesamte Baukörper einheitlich weiß verputzt wurde, sodass kein „Hut-­Effekt“ (Stefan Forster) entsteht.

Neue Kopfbauten, Torbauten und Brückenbauten

Im Vergleich zum kunstvollen Bremer Beispiel tendiert die Kompaktheit hier zwar eindeutig zur Kiste – die so erst mal weiter gesteigerte strenge Serialität der Siedlung wird aber durch neue sechsgeschossige Kopf-, Tor- und Brückenbauten (siehe Luftbild oben) ausgeglichen, die der erfahrene Wohnungs- und Städtebauer Stefan Forster geschickt an die jeweilige Situation anpasste. Hier werden die Fassaden auch farblich akzentuiert, es gibt Ziegelmauerwerk, und drum herum entstehen nutzbare Räume und Höfe. 

Vorher: Die Grünflächen zwischen den Zeilenbauten der Platensiedlung boten keinerlei Aufenthaltsqualität. © Skykamera
Nachher: Die Wohnzeilen tragen zwei neue Geschosse und die begrünten Innenhöfe sind wirklich nutzbar. © Lisa Farkes

10.000 Wohnungen in Frankfurt durch Nachverdichtung

Das alles gibt es zu geförderten Kaltmieten von 5,50 Euro und 10,50 Euro im frei finanzierten Teil, wo sonst in Frankfurt locker 15 bis 20 Euro fällig werden. Die Frankfurter Stadtentwickler sehen ein Potenzial von 10.000 Wohnungen in der Nachverdichtung. Vorerst lahmt jedoch der Wohnungsbau konjunkturbedingt, und Stefan Forster musste ein Drittel seines Teams entlassen. Die Lösungen liegen indes bereit: Gerade Aufstockungen dürften bald vermehrt das Stadtbild bereichern.

Sozialwohnungen in Tutzing: Serielle Wohnhöfe

In ländlichen Gegenden hingegen ist es schwierig mit dem Aufstocken, wenn neue Wohnungen in einer relevanten Anzahl entstehen sollen. Hier ist dann doch die „grüne Wiese“ der Ort der Wahl – wie im oberbayerischen Tutzing. In der hochpreisigen Gegend am Starnberger See gelang es dem Zweckverband des Landkreises mit Zuschüssen des Freistaates, einen passablen Bauplatz für 70 Sozialwohnungen bereitzustellen – und dann dafür noch einen kleinen Wettbewerb unter fünf Büros abzuhalten, um die beste Lösung zu finden.

Die Wohnhöfe in Tutzing präsentieren sich als Einzelbauten im kleinstädtischen Maßstab. © Peter Szekacs

Sozialwohnungen im Maßstab einer Kleinstadt

Gewonnen hat die Konkurrenz das Münchener Büro Felix+Jonas Architekten mit einem seriellen, kostengünstigen Konzept, das aber gleichzeitig Maßstäblichkeit und Materialität des Ortes aufgreift. Die Architekten gruppierten fünf nahezu identische Höfe am Hang, der recht steil nach Südosten abfällt, mit dem Rücken zur stark befahrenen Straße am Ortseingang.

Die fünf annähernd identischen Gebäude mit 72 Sozialwohnungen schmiegen sich an den Hang hoch überm Starnberger See. © Peter Szekacs

Sozialwohnungen mit Loggia

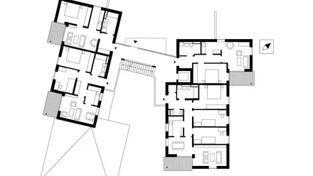
Vom zentralen, halb offenen Laubengang mit Lift (Vorgabe war Barrierefreiheit) fächern sich die bis zu vierstöckigen Baukörper auf: Flach geneigte Pultdachkörper verlaufen in Stufen und leicht versetzt den Hang hinab, was sich auch als wirtschaftlich erwies. In den Versätzen von Wand und Dach erkennt man zudem, wo eine Wohnung aufhört und die nächste beginnt. Hier erhielt jede Einheit eine zweiseitig orientierte Loggia mit etwas Seeblick.

Die Erschließung der Sozialwohnungen erfolgt über ein offenes Treppenhaus und Laubengänge. © Plan: Felix+Jonas Architekten

Budget für eine Holzfassade

Die vorpatinierte Holzverschalung der Wohnungsfassaden nimmt Bezug auf den nahen Wald und lässt den weiteren Landschaftsverbrauch verschmerzen. Auch hier setzten sich wie im Bremer Beispiel langfristig geringere Unterhaltskosten gegen eine kurzfristig billigere Putzlösung mit Wärmedämmverbundsystem durch. Die tragende Konstruktion musste an diesem schwierigen, wasserführenden Hang allerdings massiv in Beton und Ziegel ausgeführt werden, was im Zirkulationskern der Höfe auch aus Brandschutzgründen sichtbar ist. Da im Sockel eine Tiefgarage Platz fand, kann der Hang grün zwischen den Höfen hindurchfließen.

Ein offener Laubengang holt in Tutzing die Landschaft ins Haus und sorgt für eine effiziente Erschließung. © Peter Szekacs

Lärmschutzauflagen ausgetrickst

Teure Lärmschutzmaßnahmen sparte sich die Gemeinde, indem sie die oben vorbeiführende Straße von 100 auf 50 Stundenkilometer herunterstufte – das Ortsschild wanderte dazu ein Stück stadtauswärts. Ohnehin lässt die neue Bebauung mit ihren grünen Zwischenräumen wohl viele Autofahrer auf die Bremse treten, formt sie doch einen ebenso unaufdringlichen wie spannenden Dorfeingang.

Die einzelnen Baukörper der Wohnhöfe sorgen auch für je nach Standpunkt unterschiedliche Ausblicke. © Peter Szekacs, Architektur: Felix+Jonas Architekten

Serielles Bauen auf dem Land

So intelligent und identifikationsstiftend geht serielles Bauen, auch auf dem Land. Die von Felix+Jonas über die Leistungsphasen 1 bis 9 geplante kleine Siedlung mit 4.575 Quadratmetern Wohnfläche (rund 10.600 Quadratmeter BGF) kostete 14,5 Millionen Euro brutto in den Kostengruppen 3 und 4. Die verschieden großen Wohnungen werden für elf Euro pro Quadratmeter vermietet.

Fazit: Drei Beispiele für gute Sozialwohnungen

Die drei, übrigens alle im Standard KfW 55 realisierten, total unterschiedlichen Beispiele zeigen, wie bezahlbarer Wohnungsbau heute qualitätvoll zu realisieren ist, ja, wie er immer noch Maßstäbe für das übrige Bauen setzen kann – so wie das schon einmal, in den Zwanzigerjahren des letzten Jahrhunderts, möglich war.

Christoph Gunßer

Freier Fachautor

Christoph Gunßer ist für das DAB vor allem in Süddeutschland unterwegs. Nach Architekturstudien in Hannover, Stuttgart und den USA wurde er erst Redakteur, dann freier Fachautor, der einige Bücher zu wegweisenden Wohnbauten publiziert hat.

Mit Basis in Hohenlohe, wo er für seine Familie ein altes Hospital ausgebaut hat, berichtet er heute vor allem aus dem Süden und der Mitte Deutschlands für das DAB und andere, darunter die Bundesstiftung Baukultur und die KfW. Auch Kritiken und Essays zum Architekturgeschehen schreibt er gern. Am liebsten klappert er aber zu Fuß oder mit dem Fahrrad neue Projekte in Stadt und Land ab.